Отдельностоящее здание
Челюскинцев, 9 Показать на карте
Челюскинцев, 9 Показать на карте
Площадь Гарина-Михайловского, 5 мин
Новосибирск
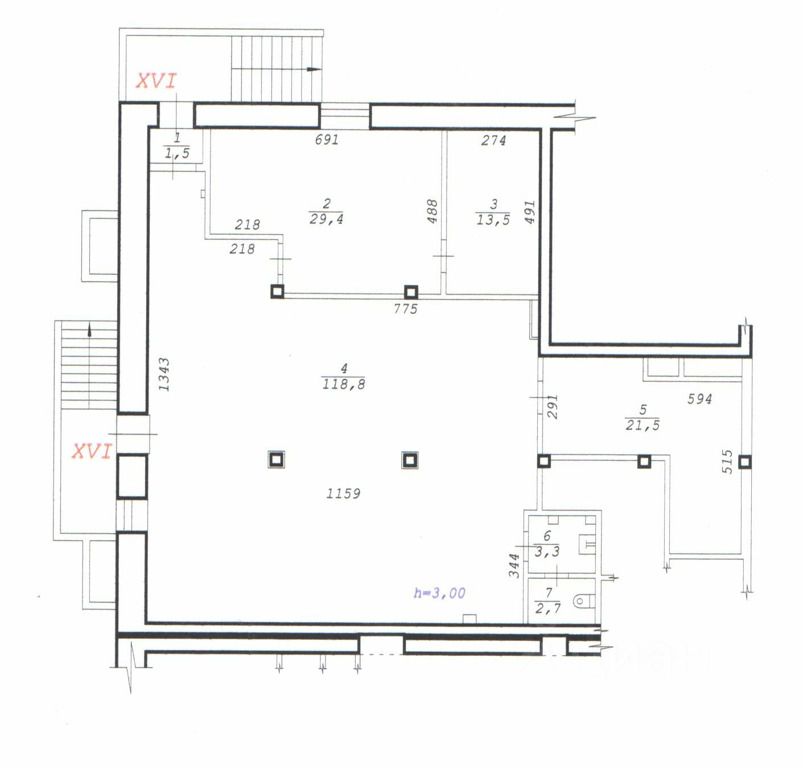
Акционерное общество Железнодорожная торговая компания в лице Сибирского филиала проводит открытый аукцион по продаже объектов недвижимого имущества - (здание свободного коммерческого назначения общей площадью 3283. 4 м² с кадастровым номером 54:35:021080:40, расположено на участке площадью 4707 м² (кадастровый номер 54:35:021080:21)находящихся в собственности владельца актива, по адресу: г. Новосибирск, ул. Челюскинцев, д. 9. В цену лота также входит автоматическая пожарная и пожарно-охранная сигнализация.Здание имеет два этажа, а входы организованы со стороны улицы и со двора, что удобно для клиентов и сотрудников. Для автомобилистов предусмотрен наземный паркинг с отдельным въездом на территорию. Объект подходит под различные виды коммерческой деятельности: торговлю, офисы, склады и многое другое. На данный момент здание частично сдается под: сетевой магазин и общепит.В помещениях центральное отопление, электроснабжение, канализация, горячая и холодная вода.Расположение объекта в самом центре Железнодорожного района с прекрасной транспортной развязкой и доступностью к метро Гарина-Михайловского (3 минуты), Железнодорожный вокзал с пригородными поездами и поездами дальнего следования. Аукцион.По вопросу осмотра объекта необходимо обратиться по телефону, указанному в объявлении.Дата проведения аукциона - 05. 05. 2026 в 11:00 по МСКДата окончания приема заявок - 24. 04. 2026 в 11:00 по МСКМесто и форма проведения аукциона: электронная торговая площадка ''РТС-Тендер''.Номер процедуры на сайте ''РТС-Тендер'': 242132Подробная информация на сайтах: Проперти РЖД, железнодорожная торговая компания в разделе ''Тендеры''.Это отличный вариант для тех, кто ищет готовое решение для ведения коммерческой деятельности в удобном месте с развитой инфраструктурой. Не упустите возможность приобрести выгодный актив!
3283 м2
- Показать контакты
- Добавить в избранное
3283 м2
316 294 900
96 332 /м2
