Универсальное помещение
Котовского, 40/2 Показать на карте
Котовского, 40/2 Показать на карте
Ленинский район, Сад Кирова
Новосибирск
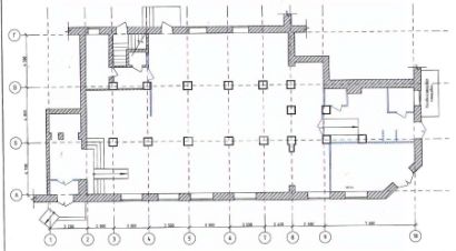
Продаётся помещение - 367 м²Пpeимущеcтвa лoкации: Расположение на цокольном этаже жилого дома Три независимых входа с улицы Возможность зонирования и автономных рабочих потоков Универсальное назначение помещенияПривлекательность объекта: Просторная площадь 367 м² Высота потолков 3 метра Проектная мощность 40 кВт Готовность под индивидуальную планировку Отсутствие чистовой отделки (свобода реализации проектов)Потенциал объекта: Идеально под производственный комплекс Подходит для складского помещения Оптимально для торгового зала Возможность разделения на автономные зоныОписание объекта: Общая площадь 367 м² Цокольный этаж жилого дома Частная собственность (более 10 лет) 40 кВт эл. энергии Без чистовой отделки Свободная планировкаУсловия сделки: Юридическая чистота документов Быстрый выход на сделку Долгов и обременений нет Дополнительно оплачивается комиссия с покупателя.Код пользователя: 1245797423Номер в базе: 9788412
367 м2
- Показать контакты
- Добавить в избранное
367 м2
6 600 000
17 984 /м2
