Универсальное помещение
Каинская, 8б Показать на карте
Каинская, 8б Показать на карте
Октябрьская, 11 мин
Новосибирск
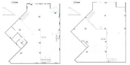
Код объекта: 1790288.Уникальное предложение в уютном месте, в начале Красного проспекта. Этот объект станет идеальным выбором для вашего бизнеса благодаря своей универсальности и превосходному состоянию.Помещение расположено на первом этаже, отдельный вход и свободный доступ обеспечивают удобство как для посетителей, так и для сотрудников. На площади в 78,5 кв. м уже предусмотрены все необходимые коммуникации. Дизайнерский ремонт выполнен с учётом последних тенденций, что позволяет сразу начать работу без дополнительных вложений. Расположение помещения на углу здания обеспечивает хорошую видимость и привлекательность для клиентов.
78 м2
- Показать контакты
- Добавить в избранное
78 м2
14 000 000
178 344 /м2
