Отдельностоящее здание
Затонского, 118 Показать на карте
Затонского, 118 Показать на карте
Садовый
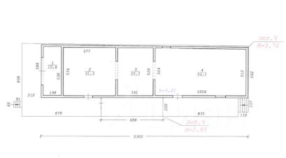
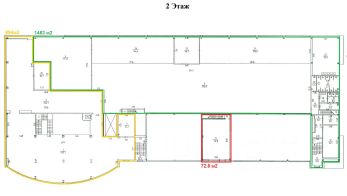
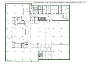
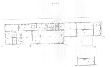
Инвестиционный объект с высоким потенциалом доходности в центре ЖК МалахитПредлагается к продаже отдельно стоящее капитальное здание общей площадью 1505 м² на земельном участке 50 соток (участок разделён на 4 самостоятельных кадастровых единицы). Дополнительно — гараж на 3 бокса 200 м² с тремя въездами.Объект расположен в сердце активно формирующегося жилого кластера — ЖК Малахит и окружён коттеджной застройкой с постоянным проживанием. Это редкая возможность занять ключевую позицию в локации, где спрос на коммерческую инфраструктуру уже сформирован, а предложение — практически отсутствует.Архитектура и конструктивЗдание построено с соблюдением высоких стандартов качества:* кирпичная основа с утеплением (пеноплекс) и облицовочным кирпичом* фундамент: ленточный, армированный, глубиной 4,5 м* перекрытия: железобетонные плиты (9 и 12 м)* кровля: утеплённая, мягкая (Docke)* 65 окон (трёхкамерные стеклопакеты) — максимальная естественная освещённостьФункциональность и гибкость* 4 отдельных входа (по одному с каждой стороны здания) — идеальная база для деления под нескольких арендаторов* предусмотрены мокрые точки по периметру* свободная планировка 3-го этажа — адаптация под любой формат бизнеса* подвал + помещение с бассейном (с подведёнными коммуникациями)* возможность сдачи данной части под занятия детей плаваньем.Инженерия* центральное водоснабжение + собственная скважина* центральная канализация + переливной септик (20 м)* газ подключён (в гараже)* территория полностью огорожена капитальным заборомЛокация и инфраструктураЖК Малахит — современный жилой комплекс комфорт-класса, где инфраструктура находится на стадии активного развития.* остановка транспорта — 200 м* метро Заельцовская — 2030 минут* школы, детские сады, медицина — 10 минут на автомобилеКлючевое преимущество:На сегодняшний день жители комплекса и окружающего частного сектора испытывают острую потребность в базовой коммерческой инфраструктуре — от повседневных сервисов до досуговых и медицинских учреждений.Инвестиционные сценарииОбъект идеально подходит под:* торговый центр / retail* продуктовый якорь + галерея арендаторов* медицинский центр / клинику / реабилитационный комплекс* фитнес-клуб / wellness-пространство* частный детский сад / образовательный центр* Детский Бассейн.* мультиформатную аренду (разделение на блоки)Это не просто здание — это возможность стать первым и ключевым оператором инфраструктуры в растущем жилом массиве.Объекты с подобным потенциалом формируют стабильный арендный поток и растут в цене по мере развития района.Предусмотрена комиссия агентства с покупателя.Бесплатная помощь в получении ипотеки.Полное юридическое сопровождение.
1505 м2
- Показать контакты
- Добавить в избранное
1505 м2
80 000 000
53 156 /м2
