Универсальное помещение
Октябрьская, 49 Показать на карте
Октябрьская, 49 Показать на карте
Площадь Ленина, 7 мин
Новосибирск
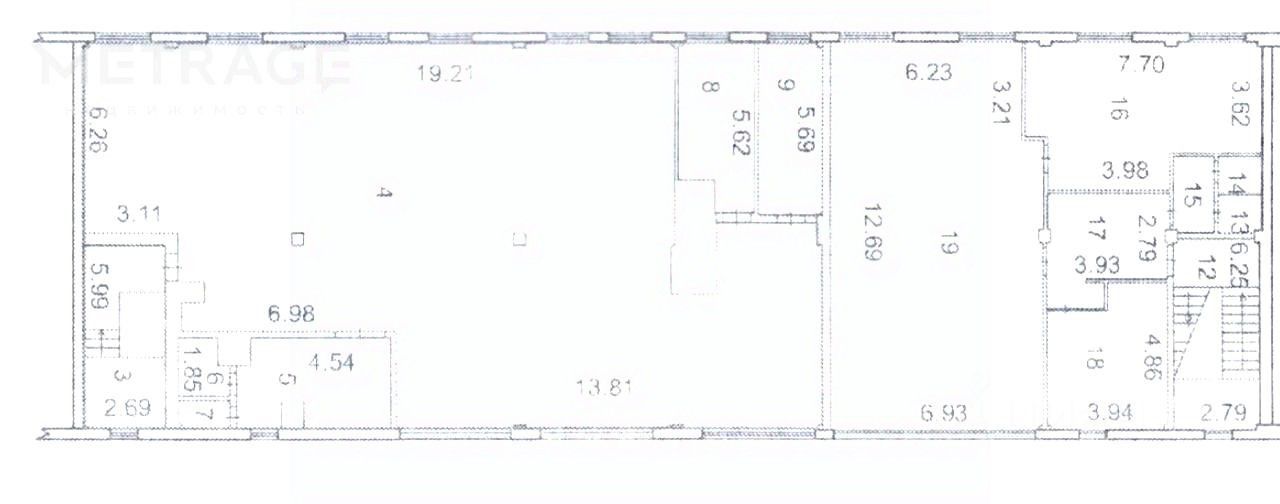
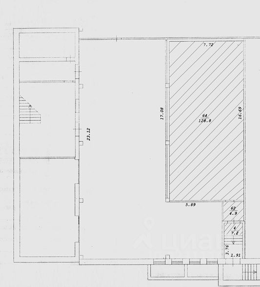
Аренда 271 кв.м под клинику, СПА салон, представительство, банк в самом центре Новосибирска.Объект находится в Центральном районе городе Новосибирска, буквально в 2х шагах от въезда на главную площадь города: пл. Ленина, на крупнейшем перекрестке улиц: Октябрьская магистраль, Серебренниковская и Октябрьская, являясь своеобразными воротами, забирая на себя все внимание.Здесь сосредоточены знаковые компании, бизнесы, учреждения и организации, многие из которых, работают в сегментах: устойчивый бизнес, премиум или luxury (Мультибрендовый универмаг Lukse, гостиничный комплекс DoubleTree by Hilton с бизнес-центром класса ''А'' Double Hill, бизнес-центр класса ''А'' Аргентум, бизнес-центр класса ''В'' Капитал, здание головного офиса Сбер, здание Новосибирского метрополитена, кафе-бар Якитория, Академический молодежный театр Глобус, знаковый объект городского масштаба - ''Шарик'', торговая галерея в домах по ул. Красный проспект, 30 и Октябрьская, 49). Близость метро и остановок общественного транспорта.Фасад помещения выходит на ул. Октябрьскую. Объект имеет свою витражную зону на 1 этаже и место для вывески.Адрес: г. Новосибирск, Центральный район, ул. Октябрьская, 49Общая площадь (кв.м): 271 (возможность аренды меньшей площади - 128 кв.м)1 этаж - 128 кв.м2 этаж - 143 кв.мЭтаж: 1 и 2 со стороны ул. ОктябрьскойСостояние ремонта: после демонтажа, черноваяВысота потолка (м): 2,7 - 2,8В настоящий момент архитектурное бюро OPEN A детально прорабатывает все аспекты возможного развития объекта. В планах самым кардинальным образом изменить не только фасад помещения, сделав его стильным, представительским, но и данную локацию в принципе, чтобы она стала еще более узнаваемой и ярко выраженной, стала центром притяжения горожан. До конца 2025 года будет выбрана и согласована окончательная концепция изменений.Планировка на первом этаже состоит из двух залов, витражной группы, комнатки охраны, на втором этаже два просторных зала, два кабинета.Ранее в помещении действовал полиграфический центр и офис. Их деятельность обеспечивала система приточно-вытяжной вентиляции, потолочного кондиционирования, достаточное количество электрических мощностей (90 кВт). Понятно, что все системы требуют обновления, но наличие технических характеристик и возможностей дает хорошие заделы для успешного вхождения в объект, практически, любому виду деятельности.Арендатору предоставляются арендные каникулы на ремонт (срок по договоренности).Возможность заключения долгосрочного договора аренды.Размер обеспечительного платежа: 2 месяца.Ставка аренды (руб./кв.м в месяц): 4 000, плюс НДС 5%Коммунальные и эксплуатационные платежи оплачиваются дополнительно к арендной плате.
271 м2
- Показать контакты
- Добавить в избранное
271 м2
1 084 000 /мес.
4 000 /м2
