Универсальное помещение
Галущака, 2а Показать на карте
Галущака, 2а Показать на карте
Заельцовская, 13 мин
Новосибирск
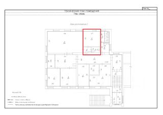
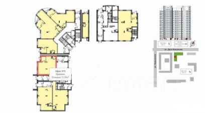
В САМОМ ЦЕНТРЕ Заельцовского района в ТРЦ ''Олимпия'' сдам на длительный срок стильное, просторное, светлое офисное помещение универсального назначения площадью 96, 4 кв.м. - в 15-ти минутах ходьбы от метро ''Гагаринское''. Здание, в котором расположено данное помещение, располагается в деловом районе города, в окружении офисов, банков, кафе и ресторанов. Рядом находятся: метро, остановки общественного транспорта, что делает офис легко доступным для всех сотрудников и клиентов.Для сотрудников и клиентов предусмотрены парковочные места рядом со зданием.Офис находится на 4-м этаже, что обеспечивает комфортный доступ как для сотрудников, так и для клиентов. Здание оборудовано современным лифтом, а также удобными лестничными пролётами.Офис готов к использованию без необходимости дополнительных вложений. Стены, полы и потолки находятся в идеальном состоянии. Помещение оборудовано всем необходимым для комфортной работы: •высокоскоростной интернет,•современная система электрической разводки, обеспечивающей достаточное количество розеток для подключения офисной техники, •отопление и вентиляция, позволяющие поддерживать комфортную температуру в любое время года,•кондиционер.Благодаря функциональной планировке помещения, пространство можно легко и без особых дополнительных вложений адаптировать под любые нужны Вашего бизнеса, будь то: •офис, •студия дизайна, йоги, пилатеса или танцев, •массажный или маникюрный салон, •образовательный центр или рекламное агентство или IT - компания,•или что-то другое, что обязательно станет идеальным местом для успешной работы и развития Вашей компании.В помещении много света и пространства:•Помещение имеет удобную планировку, что позволяет эффективно использовать всю площадь по Вашему усмотрению,•Помещение позволяет обеспечить комфортные условия для работы сотрудников, проведения встреч и организации деловых мероприятий, •Благодаря высоким потолкам (3 м.), большим окнам во всю стену и дополнительному освещению (много разных ламп и все можно включать и выключать под свои предпочтения, а так же свет на витрине) помещение наполнено естественным светом в течение всего рабочего дня. Это создаёт уютную и продуктивную атмосферу, благоприятную для работы.По условиям сдачи: ежемесячный платеж 75 000 руб. (за месяц вперёд ) + коммунальные платежи,оплата комиссии агентства - 40 000 руб.Офисное помещение сдается по выгодной цене. Оно станет отличным вложением в Ваш бизнес и обеспечит все условия для его успешного развития. Звоните прямо сейчас и записывайтесь на просмотр!
96 м2
- Показать контакты
- Добавить в избранное
96 м2
75 000 /мес.
778 /м2
