2-к, Сухарная, 96/3 Показать на карте
Заельцовский район, Сухарная
Новосибирск, Жилой комплекс «Сосны»
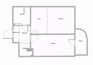
Ищите просторную евродвушку?! Важно жить рядом с лесом и возле центра?! Отличный вариант для Вас.В продаже большая двухкомнатная квартира-студия с видом на реку. Правильное зонирование площади: на входе гардеробная 4,2 кв.м. и место под шкаф, раздельный сан узел 6,2 кв.м. с постирочной 2,6 кв.м., отдельная спальня 14 кв.м. и кухня-гостиная 32 кв.м. Угловая лоджия 6,6 кв.м. с видом во двор и на Обь. Панорамные окна в каждой комнате. Квартира готова к воплощению ремонта Вашей мечты, ключи сразу на сделке. Комплексное благоустройство территории включает в себя ландшафтное оформление, современную детскую площадку, зону ''воркаут'', футбольное и баскетбольное поле. Здесь жители не тратят время на поиски парковки вечером и прогрев машины зимним утром, а спускаются в двухуровневый подземный паркинг на бесшумном лифте.Комплекс находится в Заельцовском парке, где можно гулять, кататься на велосипедах, устраивать пикники и наслаждаться сибирской природой.В шаговой доступности ключевые объекты инфраструктуры: Детский сад 10, Средняя общеобразовательная школа 43, Поликлиника 27. В доме на первом этаже расположены продуктовые магазины, аптеки и пункты выдачи. Рассмотрим обмен на Вашу недвижимость.Подходит под ипотеку и материнский капитал. Помощь в оформлении решения по ипотеке, дополнительная скидка к ставке 0,2% нашим клиентам. Не упустите эту возможность, звоните сейчас! Дополнительно оплачивается комиссия с покупателя.Код пользователя: 48182Номер в базе: 9727734
До центра ~ 35 мин
Приблизительное время на общественном транспорте до Площадь Ленина – 35 мин
68 м2
12 / 25 этаж
Кирпич
- Показать контакты
- Добавить в избранное
68 м2
12 / 25 этаж
Кирпич
8 749 000
127 909 /м2
Новостройка,
дом сдан
дом сдан
