1-к, Николая Островского, 58 Показать на карте
Маршала Покрышкина, 10 мин
Новосибирск, Апартаменты Land Lord (Апартаменты Лэнд Лорд)
Апартаменты Land Lord. В современном мире каждый ищет способы получения пассивного дохода. В последнее пятилетие одним из самых простых и надежных вариантов доходных инвестиций стали апартаменты и другая коммерческая недвижимость.Проект предусматривает строительство 3х башен. В первом этапе строительства реализуется Башня А - 29 этажей, 712 апартаментов. Башня В - 24 этажа, 123 офиса, со сроком сдачи в 3 кв. 2026 года.Башня А - апартаменты для жизни и бизнеса. Вы можете выбрать тот вариант, который подойдет именно под ваши запросы: апартаменты без ремонта, апартаменты по программе ''Гарантированный доход'' или апартаменты с готовым ремонтом и частичной меблировкой.Башня В boost-офисы для компаний. Бизнес-центр класса B+ с офисами для компаний, которые мыслят широко и на перспективу. Офисы в Land Lord адаптируются под специфику вашего бизнеса объединение лотов, покупка этажами, качественная шумоизоляция, контроль доступа на этаж, лобби с зонами для переговоров и многое другое для развития вашей компании. Здесь может быть ваш бизнес!Потенциал места очевиден. Land Lord расположен в сердце делового Новосибирска - в пешей доступности сразу от 4 станций метро и главная транспортная артерия Красный проспект. Здесь воедино собрана вся необходимая инфраструктура для ведения дел и проживания от банков до детских садов.
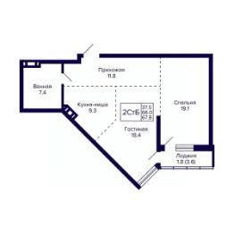
31 м2
28 / 29 этаж
Кирпич - монолит
- Показать контакты
- Добавить в избранное
31 м2
28 / 29 этаж
Кирпич - монолит
8 668 000
275 000 /м2
Новостройка,
дом сдан
дом сдан
