3-к, Плющихинская, 1 Показать на карте
Октябрьский район, Плющихинский ж/м
Новосибирск
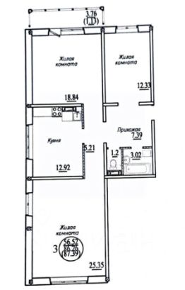
Просторная 3-комнатная квартира под самоотделку на МЖК!Обратите внимание - квартир такой планировки очень мало! Все три комнаты изолированные, планировка на две стороны - распашонка. Площадь квартиры 87,39 м²Просторная прихожая, раздельный санузел, удобная кухня - планировка максимально комфортная для жизни. Квартира расположена на среднем 4 этаже.Район с развитой инфраструктурой:В шаговой доступности школы, детские сады, магазины, аптеки, остановки общественного транспорта.До станции метро Золотая Нива — 15 минут на машинеКому подойдет эта квартира?Семья с детьми. Трёхкомнатная квартира площадью 87,4 м² с тремя изолированными комнатами идеально подходит для семьи с несколькими детьми (каждому — своя комната). Большой санузел и просторная кухня-гостиная позволяют удобно разместиться всей семье. Улицы МЖК ''Восточный'' и ''Плющихинский жилмассив'' обладают развитой инфраструктурой: в микрорайоне ''Восточный'' есть 4 детских сада и 3 школы, рядом — магазины и парк (озеро Собачье). Покупая эту квартиру, семья с детьми получит большую квартиру для постоянного проживания, могут использовать материнский капитал (если есть ребёнок). Отличный вариант для семьи — просторная квартира, в которой можно реализовать собственный дизайн и стиль, так как квартира под самоотделку. Не нужно переплачивать за чужие идеи ремонта.Молодая семья. Пары без детей или с одним ребёнком могут рассматривать 3комнатную квартиру как перспективу на будущее (выделить комнату под детскую, кабинет или гостиную). при покупке данной квартиры молодая семья получит современный дом (2018 г. постройки) и свободную планировку ''под чистовую отделку'', дающая свободу интерьера. Поскольку квартира без готового ремонта, она заинтересует тех, кто готов вложиться в ремонт по своему вкусу. Приобретайте большую по площади квартиру по приемлемой цене!Инвесторы и покупатели под сдачу в аренду. Вложение в 3комнатную может быть интересным для тех, кто ориентирован на долгосрочную аренду. Спрос на аренду жилья в Новосибирске значительно вырос в 2024 году: интерес к долгосрочной аренде квартир прибавил 38%, в том числе на 3комнатные плюс 17%. Средняя месячная арендная ставка для 3-комнатной квартиры в этой локации 35-45 тыс. руб.Звоните! Успевайте купить эту прекрасную квартиру!Арт. 104155129Номер объекта: #1/541772/24710
87 м2
4 / 10 этаж
Панель
- Показать контакты
- Добавить в избранное
87 м2
4 / 10 этаж
Панель
5 990 000
68 543 /м2
