3-к, Аэропорт, 25 стр. Показать на карте
Заельцовский район, Городской аэропорт
Новосибирск, Авиатор
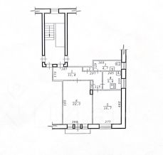
Просторная 3-комн. квартира с предчистовой отделкой в Квартал ''Авиатор'' на 1 этаже. Общая площадь: 126.5 кв.м. Высота потолков 2.72 м. Дом монолитный, двухподъездный, переменной этажности, от 16 до 18 этажей. Квартира находится в 1-й секции высотой 16 этажей в корпусе ГП1. На этаже 6 квартир. В подъезде 2 пассажирских и 1 грузовой лифт. На сегодняшний день строительство завершено, дом сдан в 3 квартале 2023 года. Оформление сделки по договору купли-продажи. Трехкомнатная квартира в квартале Авиатор. Особенности планировки: вид во двор, второй санузел, второй свет, гардеробная, двухуровневая, мастер-спальня, окна в пол, окна на две стороны, отдельный вход, постирочная, разнесённые спальни, с ремонтом, с цокольным этажом, терраса, цокольный этаж. квартиры в нашей базе: АВ1-ГП1-4-001. Квартал ''Авиатор'' расположен на пересечении улицы Аэропорт и Мочищенского шоссе, рядом с остановками ''Байкальская'', ''Жуковского'' и ''Городской аэропорт'', в 7 минутах ходьбы от сквера им. Чаплыгина и 10 минутах от крупной транспортной магистрали — Красного проспекта. До станции метро ''Заельцовская'' и площади ''Калинина'' — около 10 минут на автомобиле. Квартал связан выездами с Мочищенским шоссе, улицами Жуковского, Аэропорт и Георгия Колонды. Сформированная инфраструктура локации — школы, детские сады, магазины, спортивный стадион — делают жизнь в квартале комфортной. Квартал состоит из восьми домов. Вдоль улицы Аэропорт расположено 6-18-этажное здание с видовыми квартирами. Оно защищает внутреннее пространство от шума и пыли. В центре — четыре 7-9-этажные урбан-виллы. Для них характерны увеличенная площадь квартир, повышенная приватность и малое соседство (30 — 40 квартир). Завершают комплекс два полузакрытых блока высотой 8-16 этажей с фасадами фисташкового цвета и подземной парковкой. Благодаря переменной высотности застройка приобретает человеческий масштаб, во дворы проникает больше света, а число квартир, из которых открывается красивый вид, значительно увеличивается. Первые этажи вдоль Мочищенского шоссе и улицы Аэропорт мы отдали под полезные сервисы и магазины. Активный фронт позволил интегрировать квартал в городской контекст. На территории ''Авиатора'' расположен многофункциональный спортивный комплекс с открытым амфитеатром, который станет центром притяжения всего района. Если Вы - риелтор, пожалуйста, за более подробной информацией обратитесь на горячую линию на нашем официальном сайте.
До центра ~ 30 мин
Приблизительное время на общественном транспорте до Площадь Ленина – 30 мин
126 м2
1 / 16 этаж
Монолит
- Показать контакты
- Добавить в избранное
126 м2
1 / 16 этаж
Монолит
21 700 000
171 542 /м2
Новостройка,
дом сдан
дом сдан
