Дом, Капитанская, 59а Показать на карте
Ленинский район, Затон
Новосибирск
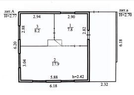
Код объекта: 2168290.Продаётся уютный и современный дом в Новосибирске, на Капитанской улице, 59А, микрорайон Затон. Построен в 2021 году, подходит для круглогодичного проживания. Дом имеет общую площадь 133 кв. м, из которых 87 кв. м — жилая площадь. В доме пять комнат, просторная кухня площадью 10 кв. м и два совмещённых санузла. Дом построен из качественных материалов: каркас — деревянный, кровля покрыта металлочерепицей, перекрытия — деревянные. Есть все необходимые коммуникации: электричество, водоснабжение, канализация. Отопление твёрдотопливный котел и электрическое. Участок площадью 4,55 соток имеет статус индивидуального жилищного строительства. Дом подойдёт для тех, кто ценит комфорт и уют. Это отличное предложение для тех, кто ищет современное жильё в живописном районе Новосибирска. Звоните нам прямо сейчас, чтобы узнать больше и записаться на просмотр. Мы гарантируем безопасную сделку и юридическую поддержку нашим Клиентам. Поможем одобрить ипотеку с сниженной ставкой.
133 м2
2 этажа
- Показать контакты
- Добавить в избранное
133 м2
2 этажа
6 000 000
45 113 /м2
