Коттедж, Солнечный микрорайон, 57 Показать на карте
Озерный
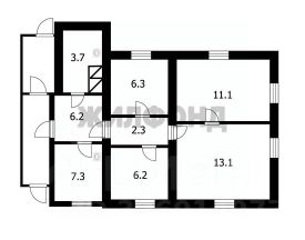
Вашему вниманию предлагается уютный загородный дом в живописном поселке Озёрный мкр., идеальное место для семейного отдыха и комфортного проживания вдали от городской суеты.Основные преимущества:Удобное расположение вблизи Краснояровского шоссе обеспечивает быстрый доступ до центральных районов города всего за 20 минут.Комфортный участок площадью 12,3 сотки с правильно очерченными границами, готовый для обустройства зоны барбекю, террасы и бассейна.Просторная жилая зона общей площадью 108 м² с возможностью расширения на 80 м² благодаря удобной архитектуре мансарды.Полноценный набор коммуникаций: городское водоснабжение, центральное газовое отопление, электрификация, подключение интернета и удобная канализационная система.Прекрасная инфраструктура: магазины (Ярче, Пятерочка, Магнит), детские сады, школа, остановки общественного транспорта и собственный детский автобус для доставки ребенка в учебное заведение.Дополнительные удобства включают встроенную бытовую технику, благоустроенный двор с автоматическими воротами и удобным въездом для двух машин, надежную охрану и видеофиксацию.Окружающая природа: река Обь доступна менее чем за четверть часа, чистый воздух, обустроенная прогулочная территория с детской площадкой и спортивными объектами.Дом построен из качественного материала, оснащен качественной мебелью и техникой, готов принять новых владельцев сразу же после оформления сделки. Оформление возможно с использованием семейной ипотеки или средств материнского капитала.Это предложение идеально подойдет семьям, ценящим домашний уют, природу и спокойную жизнь вне шумного мегаполиса. Не упустите возможность приобрести комфортабельный и функциональный дом своей мечты!приглашаем к просмотру и покупке!
109 м2
1 этаж
Дерево
- Показать контакты
- Добавить в избранное
109 м2
1 этаж
Дерево
16 699 000
153 202 /м2
