N1.RU — новая улучшенная версия НГС.Недвижимость
Хорошо
Чтобы вернуться на старый сайт НГС.Недвижимость, перейдите по ссылке в нижней части сайта N1.RU
Понятно
Продажа
Аренда
Новостройки
Журнал
Компании
Оценка
Шаблоны документов
Налоговый вычет
Еще
Личный кабинет
Вход
Регистрация
Новосибирск
Добавить объявление
Недвижимость в Новосибирске
Продажа
Коммерческая
Офисные помещения
Для работы с клиентами
13
продам офисное помещение
, Вокзальная магистраль
, 15
34 880 000 ₽
18 июля 2021
Дата публикации объявления
Обн. 18 июля 2021
Дата обновления объявления
90
Количество просмотров (+ просмотры за сегодня)
80 000 ₽/м²
Параметры
Тип здания
Бизнес-центр
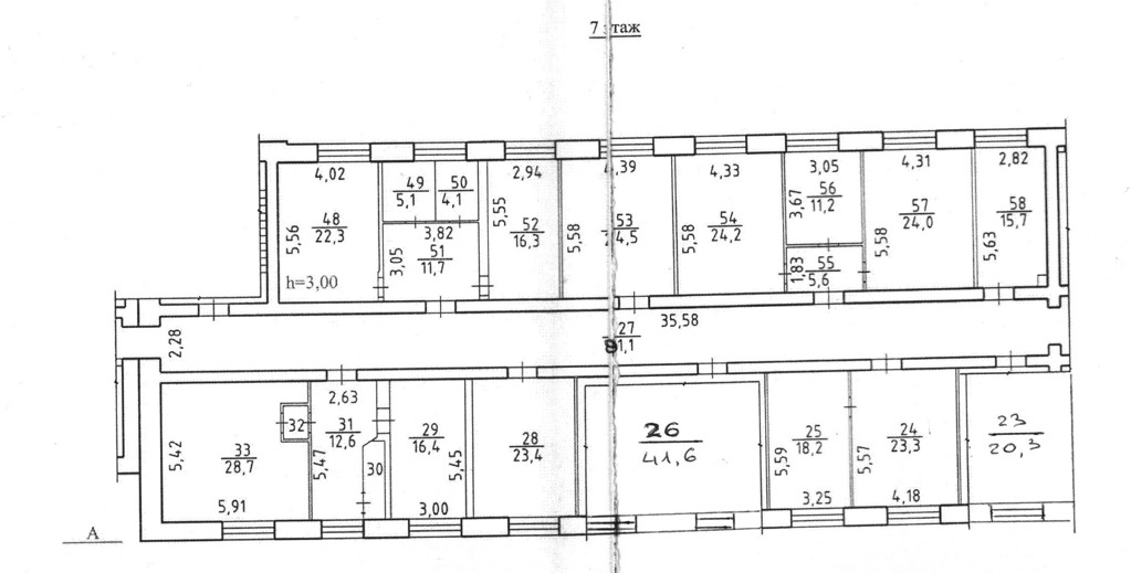
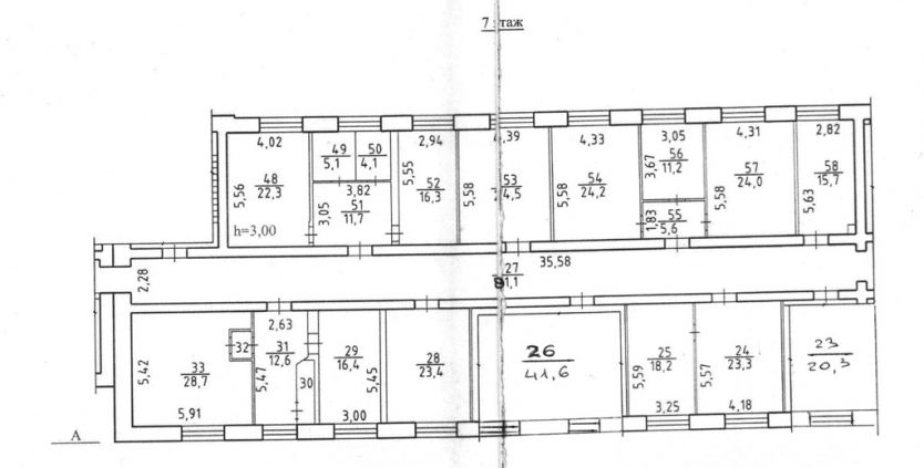
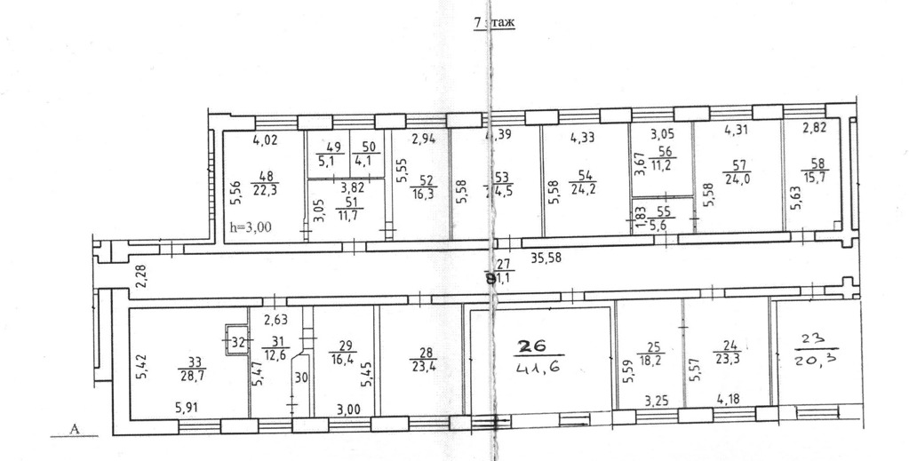
Общая площадь
436 м
2
Этаж
7
Высота потолков
3 м
Мощность электросети
30 кВт
Отдельный вход
есть
Парковка, количество мест
11-20
Интернет
есть
Назначение помещения
для работы с клиентами
- Офисное помещение общей площадью 436 кв.м.
- Расположено на 7 этаже в административном здании по ул. Вокзальная магистраль 15.
- Рядом метро и остановки общественного транспорта.
- Помещение в хорошем состоянии.
- Цена указана с НДС.