3-к, Сиреневая, 23 Показать на карте
Советский район, Шлюз
Новосибирск
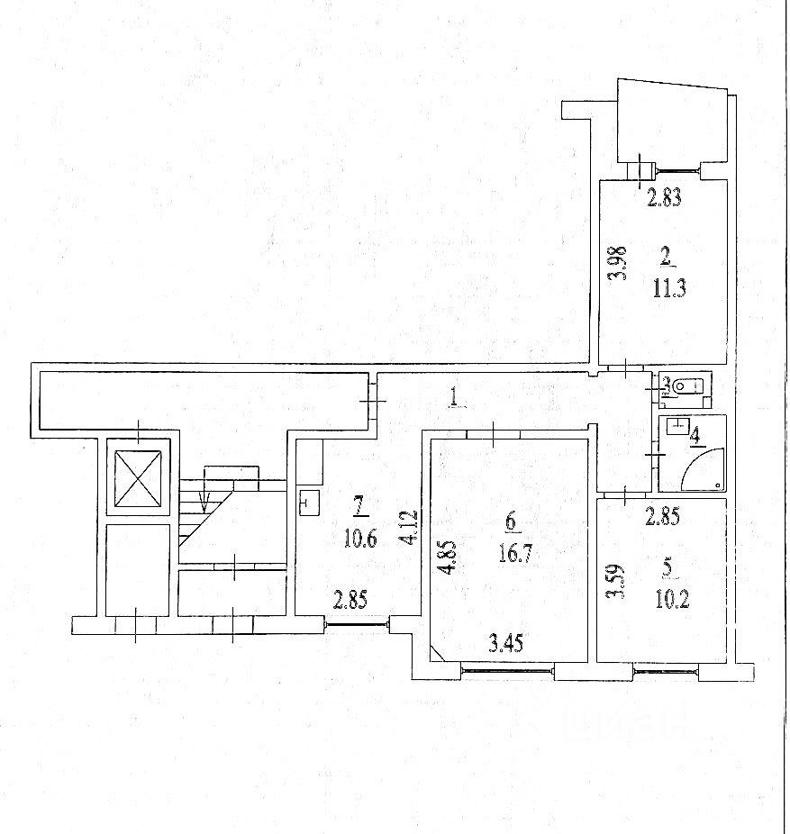
Код объекта: 2149978.Просторная трехкомнатная квартира на первом этаже ждет своих новых хозяев.Дом расположен в зеленой зоне микрорайона. Рядом есть лесной массив с озером.Инфраструктура хорошо развита, в радиусе 700 метров есть различные магазины, супермаркеты и аптеки, так же во дворе стоматологическая клиника. На расстоянии до 1 км есть детские сады: 33, 156 Сказка, 258 Дельфинчик, 442 Кораблик. Средняя школа 119, в которой расположен Клуб боевых искусств тхэквондо ''Легион Ткд'', Академическая Средняя школа 121. Через дорогу остановка общественного транспорта с маршрутами 36,52,141,717е. У квартиры планировка типа ''распашонка'', окна выходят на разные стороны дома, так же на детскую площадку. Выполнен косметический ремонт, комнаты изолированы, просторная, утепленная лоджия обшита вагонкой и пластиковыми панелями, застеклена и закрыта решеткой. В лоджии есть погреб, в котором можно хранить заготовки. В квартире остается кухонный гарнитур, шкаф в прихожей. (по желанию покупателя)
63 м2
1 / 9 этаж
Панель
- Показать контакты
- Добавить в избранное
63 м2
1 / 9 этаж
Панель
6 900 000
108 661 /м2
