2-к, Танковая, 41/3 Показать на карте
Калининский район, Сухой лог
Новосибирск
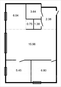
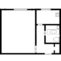
Продуманная квартира до мелочей на Танковой 41/3. Новая квартира в 10 минутах от метро Заельцовская! Уникальный дизайнерский объект, после капитальнейшего ремонта ! Квартира полностью укомплектована для жизни, заходи и живи! Дизайнерский ремонт. Планировка: просторная гостиная, с выделенной зоной под гардеробную. Различные зоны хранения. -уютная спальня . -функциональная кухня -вид из окна на зелёный двор,- совмещенный санузел, оборудован стиральной машиной, -вместительная гардеробная в прихожей , Про ремонт: - Капитальнейший ремонт квартиры, менялось всё, от входной двери и окон, до всех коммуникаций, электрики, труб, пола. Квартира изначально разбиралась до основания, до БЕТОННЫХ перекрытий, затем всё возводилось заново.Интерьер выполнен в трендах 2026г: -Мебель на заказ, -Большое количество мест хранения, -Многоуровневый сценарий освещения, -Дизайнерские шторы, Техника новая: - холодильник премиум-линейки, - Встроенная вытяжка,- Варочная поверхность и духовой шкаф, - Стиральная машина, Документы готовы к сделке, - 1 собственник, быстрая продажа, -Возможна покупка в ипотеку, Подробности телефону Не забудьте добавить в избранное)
До центра ~ 25 мин
Приблизительное время на общественном транспорте до Площадь Ленина – 25 мин
43 м2
3 / 5 этаж
Кирпич
- Показать контакты
- Добавить в избранное
43 м2
3 / 5 этаж
Кирпич
6 500 000
149 425 /м2
