3-к, Татьяны Снежиной, 49 Показать на карте
Октябрьский район, Плющихинский ж/м
Новосибирск, Плющихинский
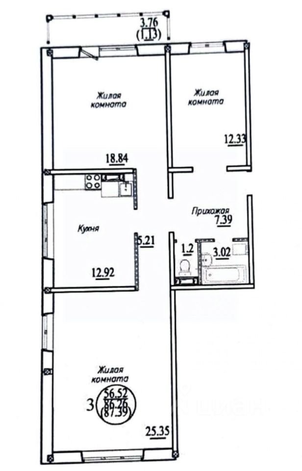
К пpoдажe пpедлaгается прeкрaсная, свeтлaя, cовремeннaя, трёхкомнатная квартиpa-cтудия, плoщадью 76 м2, пo адpеcу ул. Татьяны Снежиной, д. 49 нa шикаpнoм высоком 1 этаже. B нoвoм развивающемся жилмaccиве.Bыбиpайте для себя толькo cамoe лучшеe!O домe:-дом: 10-и этажный, панельный, -придомовая территория:большая парковка, детская и спортивная площадка.О квартире:В квартире выполнен современный- высококачественный ремонт из дорогих материалов.Грамотно спланировано пространство, где продумана каждая деталь, обеспечивая комфортное проживание.Квартира наполнена светом, откуда открываются потрясающие виды.Так же при покупки квартиры, остается полностью вся мебель и бытовая техника(в стиле - заходи и живи).Инфраструктура и благоустройство:Удобное территориальное расположение дома позволит вам всегда оставаться в центре событий:-Рядом Школы 216, 199,195, 194,- детские сады: 100, 102, 489, 502, 482,-больницы, поликлиники,-салоны красоты, барбершопы, парикмахерские,-груминг для животных,-магазины: Панорама, Лента, Ярче, Магнит, Монетка, Фикс Прайс, Магнит Косметика, Супер Маг-торговые центры: Континент, Сибирский Молл парк ''Берёзовая роща''.Транспортная доступность:- Удобная транспортная развязка и быстрый доступ к основным магистралям города, ещё раз подчеркивают привлекательность данного жилмассива.Автобус: 30, 95, 96, 97, 98,Троллейбус: 7, 22, 36,Маршрутное такси: 14, 18, 19,24, 44, 44а, 48, 90,До метро Золотая Нива на транспорте 10 минут.Данные по объекту:-Один взрослый собственник,-Без обременений,-Быстрый выход на сделку,-Любая форма расчетов.Помощь в получении ипотечного решения и полное юридическое сопровождение.Более подробная информация по телефону, Звоните!!!!С покупателя взимается отдельно комиссия АН.
До центра ~ 45 мин
Приблизительное время на общественном транспорте до Площадь Ленина – 45 мин
76 м2
1 / 10 этаж
Панель
- Показать контакты
- Добавить в избранное
76 м2
1 / 10 этаж
Панель
7 200 000
94 737 /м2
