1-к, Красный проспект, гп 2 Показать на карте
Заельцовская, 13 мин
Новосибирск, Оскар
ОСКАР уютные резиденции для новых историй.Большая премьера от компании ''Новый мир'' - создателя дома ''Нобель'' (победителя Urban Awards 2025 и 2024, финалиста Proestate@Toby Awards 2023). Беспроцентная рассрочка на квартиры в ''Оскаре'' на 2 года.Ежемесячный платеж от 70 000 рублей.Успейте зафиксировать условия!Жилой комплекс ОСКАР создает компания ''Новый мир'' — один из крупнейших девелоперов Сибири с 20-летней успешной историей работы в строительной отрасли и опытом реализации масштабных проектов — ЖК ''Лев Толстой'', ''Дом на Немировича'', ЖК ''История'', квартал ''Беринг'', дом ''Нобель''. Все проекты компании становятся победителями и финалистами отраслевых профессиональных премий. Компания является продуктовым лидером и входит в ТОП-3 в регионе по потребительским свойствам проектов, по версии ЕРЗ.Концепция Представьте, что вы живете в мире, где не нужно выбирать между красивым, удобным и оптимальным. Станьте главным режиссером своей жизни, и прочувствуйте СВОЙ НОВЫЙ СЦЕНАРИЙ. В Сибири много талантливых людей с уникальной историей успеха, и их ждет ОСКАР.Жилой комплекс из трех роскошных башен от 20 до 24 этажей объединен единым концептом с декоративной колоннадой. ОСКАР выполнен в стилистике ар-деко роскошном архитектурном стиле, призванном создать новые истории о жизни в столице Сибири. Что это будет блокбастер о герое-одиночке или теплая семейная сага решать только вам. ЛокацияЦентр все рядом! Заельцовский район самый зеленый район Новосибирска. Район парков, аллей, свежего воздуха. ЖК ''ОСКАР'' продолжает нобелевскую плеяду жилых комплексов на главной улице Новосибирска - Красном проспекте. Именно здесь на улице успешных и амбициозных развиваются новые сюжеты. ''Новый мир'' создает в этой локации целый квартал, в котором близость станции метро сочетается с уютной тишиной еловой аллеи. В основу проекта заложены вечные ценности: интеллигентность, уважение к культуре. В пешей доступности от ОСКАРА вузы, театры, банки, детские сады, рестораны и большие магазины. Главные преимуществаВысотные башни дома ОСКАР дарят окрыляющее чувство успеха и вдохновения. ОСКАР дом, в котором все преимущества собраны в одном доме: центр Новосибирска, роскошная архитектура, новые технологии, ассистент-сервис, элегантные лобби. Дом новых возможностей! • Кинематографичная архитектура - элегантный и уютный одновременно • Собственное мобильное приложение с заказом услуг — еды, такси, клининга, бронирования билетов, мероприятий с кейтерингом и т. д. • Два скоростных лифта в каждой башне • Консьерж-сервис • Функциональные планировки • Кофейня, кондитерская и spa-салон на первом этаже формируют уютный микромир с размеренным ритмом жизни и внимательным сервисом.Планировочные решения • Функциональные площади, где продуман каждый квадратный метр. • Планировочные варианты с мастер-спальней, кухней-гостиной, двумя ванными, гардеробными. • Обилие естественного света благодаря увеличенной площади остекления. • Надежные авторские двери, не требующие зам
До центра ~ 25 мин
Приблизительное время на общественном транспорте до Площадь Ленина – 25 мин
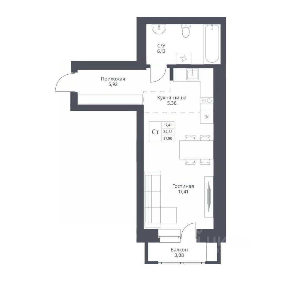
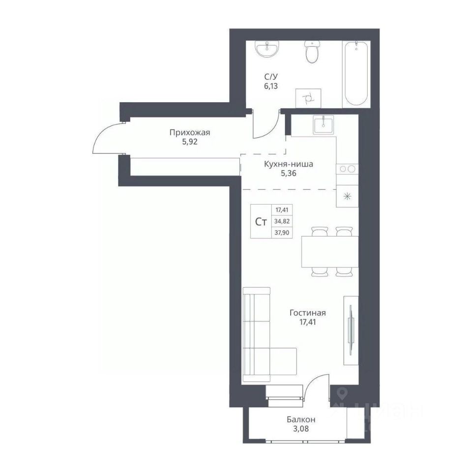
26 м2
19 / 24 этаж
Кирпич - монолит
- Показать контакты
- Добавить в избранное
26 м2
19 / 24 этаж
Кирпич - монолит
6 825 000
255 618 /м2
Новостройка,
III-2028
III-2028
