Мы объединились! Теперь объявления сразу на двух сайтах. Ищите там, где удобно
Приложение Циан
Личный кабинет
Сообщения
Избранное
  • Добавить объявление
  • Ипотека
  • Подбор риелтора
  • Журнал
  • Шаблоны документов
  • Продажа
  • Аренда
  • Новостройки
  • Коммерческая
  • Бизнес-центры
  • Дачи, участки
  • Земля
  • Гаражи

Продажа квартир в микрорайоне Просторный ж/м в Новосибирске

201 объяв.
1/25
4 400 000 ₽
1-к, Виктора Шевелева, 28
Просторный ж/м, Кировский район
40 м² · Этаж 7 из 10
Построен в 2021
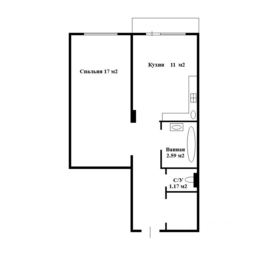
В ЗАДАТКЕ! Продается уютная однокомнатная квартира, на улице Виктора Шевелёва, 28. Общая площадь квартиры — 40.9 кв. м, жилая — 17 кв. м, кухня — просторные 11 кв. м. Квартира расположена на 7 этаже 10-этажного панельного дома, построенного в 2014 году. Высота потолков — 2.6 метра, что создает ощущение простора. В квартире сделан качественный ремонт, поэтому вы сможете сразу переехать и наслаждаться уютом. Удобная планировка включает в себя просторную кухню с выходом на балкон, просторная спальня. Большой плюс наличие встроенной гардеробной и раздельного сан узла. Из окон открывается вид во двор, что гарантирует тишину и спокойствие. При продаже остается кухонный гарнитур, варочная поверхность, духовой шкаф, вытяжка, встроенный шкаф в спальне и в коридоре, кровать+матрас. Дом в хорошем состоянии, имеется грузовой лифт, что удобно для перевозки крупногабаритных вещей. На территории дома расположена наземная парковка, вы всегда найдете место для своего автомобиля. В шаговой доступности от дома находятся детские сады и магазины. До метро ''Студенческая'' можно добраться за 20 минут на автомобиле, что обеспечивает удобное транспортное сообщение с другими районами города. Квартира продается по договору купли-продажи, возможна ипотека. Все документы готовы к сделке, обременений нет. Записывайтесь на просмотр, чтобы оценить все преимущества этой квартиры лично. Мы будем рады ответить на все ваши вопросы и помочь с оформлением сделки.
1/22
2 899 000 ₽
1-к, Николая Сотникова, 14
Просторный ж/м, Кировский район
32 м² · Этаж 10 из 10
Построен в 2019
За объект уже внесли аванс За объект внесен задаток!!!!Цена действительна до нового года!!!!Просторная студия, в современном доме, по привлекательной цене Преимущества: - произведен хороший ремонт -дополнительных вложений не нужно! - Отличный вариант, как для личного проживания, так и для сдачи в аренду, основная мебель остается в подарок новому собственнику - установлен бойлер - добропорядочные соседи - зеленый уютный двор, оснащен детским игровым оборудованием для разных возрастов - установлено придомовое видеонаблюдение - в шаговой доступности все необходимое для комфортной жизни: остановка общественного транспорта, детские сады, школы, супермаркеты, 3 торговых центра, KFC, парк для прогулок внутри района, а так ж парк им. Синягина с завораживающими видами и т.д. - построена новая большая школа и поликлиника - быстрый выход на сделку, документы в порядке, чистая продажа, подходит под все виды расчетов - звоните все подробно расскажу и покажу!!!!
1/9
6 300 000 ₽
3-к, Александра Чистякова, 4
Просторный ж/м, Кировский район
72 м² · Этаж 16 из 17
Построен в 2021
Квартира расположена по улице Александра Чистякова, дом 4, на 16 этаже. Площадь квартиры 72.2 кв.м. В непосредственной близости от дома находятся школы, детские сады, поликлиники, торговые центры, магазины, аптеки, парки и зоны отдыха. Развитая инфраструктура района обеспечивает комфортное проживание для семей с детьми и одиноких людей. Удобная транспортная доступность позволяет быстро добраться до любой точки города. Благоустроенный двор с детской площадкой и парковочными местами. В районе хорошо развита общественная инфраструктура, есть все необходимое для комфортной жизни. Возможен обмен на вашу недвижимость. Возможна продажа в рассрочку. Комплексная услуга для покупателя с полной финансовой ответственностью агентства При звонке, пожалуйста, сообщите номер варианта - JV003054126226 Дополнительно оплачивается комиссия с покупателя. Пожалуйста, дождитесь ответа специалиста при звонке. Время дозвона до владельца объявления увеличено из-за использования подменных номеров на сайте Циан.
1/12
3 450 000 ₽
1-к, Виктора Шевелева, 20
Просторный ж/м, Кировский район
32 м² · Этаж 9 из 10
Построен в 2020
Просторная солнечная квартира-студия 32,4кв.м .с качественным современным ремонтом! комната правильной формы с уже выделенной кухонной зоной, остальное пространство можно зонировать по своему усмотрению- что является несомненным плюсом! рядом с домом расположены необходимые объекты инфраструктуры: магазины, аптеки, детские сады и школа. в шаговой доступности находятся остановки общественного транспорта, что обеспечивает удобную транспортную доступность к любой точке города. для жителей дома предусмотрены все удобства: детская площадка, парковка для автомобилей, документы готовы к быстрому выходу на сделку! по юридической части все отлично: один взрослый собственник, обременений нет, полная стоимость в договоре. звоните!смотрите! покупайте и живите счастливо в вашей квартире!!! . . . . . . . . . . . . . . . . . . . . . . . . . . . . . . . . . . . . . . . . . . . . . . . . . . . . . . . . . . . . . . . . . . . . . . . . . . . . . . . . . . . . . . . . . . . . . . . . . . . . . . . . . . . . . . . . . . . . . . . . . . . . . . . . . . . . . . . . . . . . . . . . . . . . . . . . . . . . . . . . . . . . . . . . . . . . . . . . . . . . . . . . . . . . . . . . . . . . . . . . . . . . . . . . . . . . . . . . . . . . . . . . . . . . . . . . . . . . . . . . . . . . . . . . . . . . . . . . . . . . . . . . . . . . . . . . . . . . . . . . . . . . . . . . . . . . . . . . . . . . . . . . . . . . . . . . . . . . . . . . . . . . . . . . . . . . . . . . . . . . . . . . . Рядом с объектом находятся: 4 продуктовых магазина, 1 спортивное учреждение. Возможен обмен на вашу недвижимость. Возможна продажа в рассрочку. Комплексная услуга для покупателя с полной финансовой ответственностью агентства При звонке, пожалуйста, сообщите номер варианта - JV001054192209 Дополнительно оплачивается комиссия с покупателя. Пожалуйста, дождитесь ответа специалиста при звонке. Время дозвона до владельца объявления увеличено из-за использования подменных номеров на сайте Циан.
1/22
7 000 000 ₽
3-к, Дмитрия Шмонина, 3
Просторный ж/м, Кировский район
66 м² · Этаж 4 из 10
Новостройка, сдана
Код объекта: 1950135. Уникальное предложение на рынке недвижимости Новосибирска — просторная трёхкомнатная квартира в одном из самых перспективных районов города! Квартира расположена на улице Дмитрия Шмонина, 3, в доме, построенном в 2020 году. Общая площадь квартиры составляет 66,8 квадратных метров, из которых 58,3 квадратных метра — жилая площадь. Евроремонт позволит вам сразу заселиться и наслаждаться комфортом нового дома. Изолированные комнаты создают ощущение уюта и уединения, а окна, выходящие на улицу, обеспечивают естественное освещение и приятный вид. Угловая планировка квартиры способствует хорошей вентиляции и создаёт ощущение простора. В шаговой доступности от дома находятся остановки общественного транспорта, магазины, школы и детские сады. Рядом расположена наземная парковка, где вы всегда сможете найти место для своего автомобиля. Не упустите шанс стать владельцем этой прекрасной квартиры! Позвоните нам прямо сейчас, чтобы узнать больше и записаться на просмотр. Мы гарантируем безопасную сделку и юридическую поддержку нашим Клиентам. Поможем одобрить ипотеку с сниженной ставкой.
1/11
5 750 000 ₽
2-к, Николая Сотникова, 12
Просторный ж/м, Кировский район
63 м² · Этаж 10 из 10
Построен в 2017
Предлагаю к продаже просторную, светлую двухкoмнaтную квaртиру: - один взрослый собственник, - без обременений, - просторная и уютная квартира с солнечный стороны, - в квартире остаётся кухонный гарнитур, - готовы быстро выйти на сделку, Инфраструктура района развита: в шаговой доступности детские сады, школа, а в непосредственной близости завершается строительство современной поликлиники. Остановка общественного транспорта находится в двух минутах ходьбы, обеспечивая быстрый выезд в центр города и к основным магистралям. Это предложение представляет собой оптимальное сочетание уютного частного пространства, безопасности, транспортной доступности и перспектив развития района. Дополнительно оплачивается комиссия с покупателя. Код пользователя: 193833 Номер в базе: 10551378

Подбор риелтора

Риелтор поможет купить или продать любую недвижимость

Оставить заявку
1/21
4 000 000 ₽
2-к, Николая Сотникова, 5
Просторный ж/м, Кировский район
48 м² · Этаж 10 из 10
Новостройка, сдана
Срочно! ЦЕНА СНИЖЕНА ДО 31.12! Ключи сразу после сделки! Просторная квартира с ремонтом. Планировка изменена и стала более функциональной: кухня-гостиная 21 кв.м, спальня 13,8 кв.м. и гардеробная. - Ванная комната, где установлена большая ванна-джакузи. - Раздельный санузел с биде, унитазом, умывальником и местом для стиральной машинки. - Установлены дополнительные розетки, светильники. - Разведена и улучшена вентиляция, добавлена вытяжка в ванной и зоне кухни. Ремонт выполнен из качественных материалов. На полу линолеум, в санузлах кафель, в прихожей на стенах декоративная штукатурка, натяжные потолки по всей квартире, установлены качественные межкомнатные и входная двери. В квартире никто не жил. Над квартирой находится технический этаж. Удобное расположение квартиры на площадке. Доступны два грузопассажирских лифта. Рядом с домом расположен детский сад, магазины, торговые центры, остановка общественного транспорта. Звоните, покажем в удобное время! Рядом с объектом находятся: 1 детский сад, 1 продуктовый магазин, 2 спортивных учреждения. Возможен обмен на вашу недвижимость. Возможна продажа в рассрочку. Комплексная услуга для покупателя с полной финансовой ответственностью агентства При звонке, пожалуйста, сообщите номер варианта - JV010541105751 Дополнительно оплачивается комиссия с покупателя. Пожалуйста, дождитесь ответа специалиста при звонке. Время дозвона до владельца объявления увеличено из-за использования подменных номеров на сайте Циан.
1/19
7 150 000 ₽
3-к, Николая Сотникова, 9/1
Просторный ж/м, Кировский район
71 м² · Этаж 2 из 18
Новостройка, сдана
Продаётся просторная 3-комнатная квартира в новом доме по адресу: Новосибирск, улица Николая Сотникова, 9/1. Общая площадь — 71.9 кв. м, жилая — 30 кв. м, кухня — 25 кв. м. Квартира расположена на 2 этаже 18-этажного дома, построенного в 2023 году. До станции метро ''Студенческая'' всего 12 минут на автомобиле. В квартире выполнен косметический ремонт, что позволяет вам сразу въехать и жить с комфортом. Просторная кухня станет идеальным местом для семейных ужинов и встреч с друзьями. Санузел раздельный, что добавляет удобства в повседневной жизни. В квартире есть балкон, окна выходят на улицу, поэтому помещение наполняется естественным светом. Дом оборудован пассажирским и грузовым лифтами, а также пандусом для удобства маломобильных жителей. На территории есть наземная парковка, поэтому вы всегда найдёте место для своего автомобиля. Дом новый, а значит, все коммуникации и инфраструктура не требуют дополнительных вложений. Рядом с домом находятся школы, детские сады и магазины, что делает эту квартиру отличным вариантом для семей с детьми. Все необходимые объекты инфраструктуры находятся в шаговой доступности, поэтому можно сэкономить время на повседневные дела и покупки. Квартира продаётся без обременений, от собственника. Возможна покупка в ипотеку, что облегчает процесс приобретения. Дополнительно оплачивается комиссия с покупателя. Код пользователя: 193657 Номер в базе: 10533369
1/25
5 200 000 ₽
1-к, Дмитрия Шмонина, 1
Просторный ж/м, Кировский район
59 м² · Этаж 1 из 10
Новостройка, сдана
В продаже квартира на высоком первом этаже. Квартира очень теплая, функциональная планировка: - большая кухня с выходом на балкон (застеклен) - комната (поставили перегородку, тем самым разделив на две) - сан узел совмещен 7м кв - вместительная гардеробная - просторная прихожая В квартире сделан косметический ремонт, мебель остается по договоренности. Чистый подъезд, ухоженный двор с достаточным количеством парковочных мест. Удобное месторасположение с развитой инфраструктурой. В шаговой доступности: остановки общественного транспорта - возможность добраться в любую точку города детский сад и школа - идеально для семей с детьми магазины, аптеки, кафе - все необходимое рядом. Один взрослый собственник! Звоните, организуем просмотр в любое удобное время! Дополнительно оплачивается комиссия с покупателя. Код пользователя: 55361 Номер в базе: 7709806
1/31
6 990 000 ₽
3-к, Виктора Шевелева, 32
Просторный ж/м, Кировский район
86 м² · Этаж 10 из 10
Построен в 2022
Срочно!!! срочно!!!срочно!!! продаётся полноценная 3-комнатная квартира на микрорайоне ''просторный''. дом сдан, право зарегистрировано. подходит любая система расчетов! квартира находится на 10 этаже 10-ти этажного панельного дома, что обеспечивает шикарный вид из окна и отсутствие пыли и шума. в доме имеется технический этаж выше 10-го. ремонт свежий, почти завершён. везде сделана стяжка пола, стены подготовлены под оклейку обоями, в прихожей и на кухне натяжные потолки, установлена хорошая входная дверь. почти доделан санузел. имеются отделочные материалы для окон. можно заехать, жить и заниматься ремонтом. дом удачно расположен - рядом остановка, новый детский сад и школа, магазины, супермаркеты. во дворе - современная детская площадка, оборудована стоянка для автомобилей. звоните! показы по предварительной договоренности. торг!!! Рядом с объектом находятся: 3 продуктовых магазина. Возможен обмен на вашу недвижимость. Возможна продажа в рассрочку. Комплексная услуга для покупателя с полной финансовой ответственностью агентства При звонке, пожалуйста, сообщите номер варианта - JV003054129195 Дополнительно оплачивается комиссия с покупателя. Пожалуйста, дождитесь ответа специалиста при звонке. Время дозвона до владельца объявления увеличено из-за использования подменных номеров на сайте Циан.
1/22
6 800 000 ₽
3-к, Виктора Шевелева, 24
Просторный ж/м, Кировский район
86 м² · Этаж 8 из 10
Построен в 2020
Код объекта: 1376028. В продаже просторная 3-ком. квартира 86 кв. м., с популярной планировкой планировкой ''распашенка''! Большая квадратная кухня-гостиная, окна выходят на две стороны: восток-запад. Квартира светлая и уютная, частично выполнен ремонт, ламинат в комнатах, плитка в санузле, коридоре и на кухне, натяжной потолок в спальне. Большой балкон. Есть кладовая, что очень удобно. В квартире жарко, во всех комнатах поменяны радиаторы. В районе развитая инфраструктура - рядом с домом открылась новая школа и новый детский сад. Подходит под все виды расчета. Выгодный вариант для большой семьи! Звоните, приглашаем на просмотр! Появилась новая услуга Ремонт от АН ''Города'' скидка на данную услугу 10%, при покупке данной квартиры!!!
1/7
4 200 000 ₽
1-к, Виктора Шевелева, 34
Просторный ж/м, Кировский район
39 м² · Этаж 6 из 10
Построен в 2019
Код объекта: 1955382. Уникальное предложение для тех, кто ищет комфортное жильё в современном доме! Продаётся уютная студия в Новосибирске, расположена на шестом этаже десятиэтажного дома, построенного в 2019 году. Общая площадь квартиры составляет 39 квадратных метров. Окна выходят на улицу, а благодаря евроремонту вы сможете сразу заселиться и наслаждаться комфортом без дополнительных вложений. Квартира угловая, с балконом, где можно устроить уютное место для отдыха. Совмещённый санузел обеспечивает оптимальное использование пространства. Это отличное предложение для молодых специалистов, которые ценят комфорт и удобство. Не упустите шанс стать владельцем этой прекрасной студии! Позвоните нам прямо сейчас, чтобы узнать больше и записаться на просмотр. Мы гарантируем безопасную сделку и юридическую поддержку нашим клиентам. Поможем одобрить ипотеку с сниженной ставкой.
1/19
6 600 000 ₽
3-к, Виктора Шевелева, 18
Просторный ж/м, Кировский район
87 м² · Этаж 10 из 10
Построен в 2019
Уютная светлая, просторная квартира с изолированными комнатами, балкон. С хорошим ремонтом, по документам все отлично, собственники взрослые, без обременения, материнский капитал не использовался. ЖК Просторный - новый большой микрорайон, расположенный на Южно-Чемском жилмассиве в Кировском районе города Новосибирска. Есть несколько выездов с жилмассива, также остановки общественного транспорта. Множество торговых центров, магазинов. Во дворе есть детская площадка, Есть несколько детских садов, все новые, поликлиника , новая большая школа . Возле дома всегда есть свободные парковочные места.
1/41
3 800 000 ₽
1-к, Николая Сотникова, 16
Просторный ж/м, Кировский район
38 м² · Этаж 10 из 10
Построен в 2019
Очень Срочно! Уважаемый Покупатель, Вашему вниманию предлагается Уникальный вариант-квартира ПОД КЛЮЧ! Для тех, кто ценет своё время. Квартира полностью отделана и обустроена абсолютно новой мебелью и техникой. Всё, что представлено на фото остаётся новому собственнику. За квартиру реально не стыдно!!! Удобное расположение самого дома, в шаговой близости есть всё необходимое для комфортного проживания современного человека. На массиве: *Детский сад 154, *Школа 217, ведется строительство новой школы ( видно из окон), *Магазины: Монетка ( в доме), Продуктовый, Бристоль, Мария-ра, Магнит и другие. *Храм Ксении Петербургской,Православный приход. Для пеших прогулок рядом располагается красивейший Лесопарк имени академика И.И. Синягина. До остановки общественного транспорта пешком 5-7 минут . На придомовой территории, расположена детская площадка, оснащенная песочницей для самых маленьких и закрытое футбольное поле для деток постарше. Имеются парковочные карманы, что позволит поставить ваш автомобиль, даже в самое тёмное время суток. Один собственник, средних лет, без каких либо догов и обременений. Обменный вариант не нужен, в свободной продаже. Возможен онлайн показ. При необходимости окажем помощь в получении ипотечного решения. Просмотры по предварительной договоренности. Более подробную информацию Вы можете узнать по телефону . Объектом занимается Нетесова Вера Николаевна АН Обмен квартир, буду рада Вашему звонку! При отсутствии своего представителя со стороны покупателя, предусмотрена комиссия.
1/15
7 150 000 ₽
3-к, Николая Сотникова, 9/1
Просторный ж/м, Кировский район
71 м² · Этаж 2 из 18
Новостройка, сдана
Продаётся просторная 3-комнатная квартира в новом доме по адресу: Новосибирск, улица Николая Сотникова, 9/1. Общая площадь — 71.9 кв. м, жилая — 30 кв. м, кухня — 25 кв. м. Квартира расположена на 2 этаже 18-этажного дома, построенного в 2023 году. До станции метро ''Студенческая'' всего 12 минут на автомобиле. В квартире выполнен косметический ремонт, что позволяет вам сразу въехать и жить с комфортом. Просторная кухня станет идеальным местом для семейных ужинов и встреч с друзьями. Санузел раздельный, что добавляет удобства в повседневной жизни. В квартире есть балкон, окна выходят на улицу, поэтому помещение наполняется естественным светом. Дом оборудован пассажирским и грузовым лифтами, а также пандусом для удобства маломобильных жителей. На территории есть наземная парковка, поэтому вы всегда найдёте место для своего автомобиля. Дом новый, а значит, все коммуникации и инфраструктура не требуют дополнительных вложений. Рядом с домом находятся школы, детские сады и магазины, что делает эту квартиру отличным вариантом для семей с детьми. Все необходимые объекты инфраструктуры находятся в шаговой доступности, поэтому можно сэкономить время на повседневные дела и покупки. Квартира продаётся без обременений, от собственника. Возможна покупка в ипотеку, что облегчает процесс приобретения. Мы рады приветствовать семьи, которые ищут уютное и современное жильё в новом доме. Приезжайте на просмотр, чтобы лично оценить все преимущества этой квартиры. Записывайтесь на удобное для вас время, мы всегда рады показать вам ваш будущий дом.
1/10
4 200 000 ₽
2-к, Виктора Шевелева, 20
Просторный ж/м, Кировский район
48 м² · Этаж 1 из 10
Построен в 2020
В продаже просторная 2 комнатная квартира-студия в одноименном ЖК, на высоком первом этаже (фактически на втором, т.к внизу расположены магазины и офисы). Квартира очень тёплая и светлая, качественный ремонт, т.к делали для себя, удобная планировка с гардеробной и большим сан.узлом, кухней-гостиной и большой комнатой. Хорошие соседи, залог тишины и спокойной жизни. Жилмассив новый, но есть всё для комфортного проживания, дет.сад через дорогу, новая школа в шаговой доступности, множество магазинов, в доме ОZОN, Wilbеrriеs, стоматология, салон красоты и здоровья, оптика, пекарня. Недалеко мини парк и лесополоса для прогулок с детьми и домашними питомцами. Бонусом к квартире остаётся кухонный гарнитур, стенка, шкаф. Рядом с объектом находятся: 4 продуктовых магазина, 1 спортивное учреждение. Возможен обмен на вашу недвижимость. Возможна продажа в рассрочку. Комплексная услуга для покупателя с полной финансовой ответственностью агентства При звонке, пожалуйста, сообщите номер варианта - JV002054160270 Дополнительно оплачивается комиссия с покупателя. Пожалуйста, дождитесь ответа специалиста при звонке. Время дозвона до владельца объявления увеличено из-за использования подменных номеров на сайте Циан.
1/23
5 900 000 ₽
3-к, Николая Сотникова, 11
Просторный ж/м, Кировский район
73 м² · Этаж 16 из 18
Новостройка, сдана
Код объекта: 1376075. Предлагаем Вашему вниманию привлекательную трехкомнатную квартиру общей площадью 71,9 кв.м, расположенную в районе с развитой инфраструктурой. Вас порадует просторная жилая зона площадью 55 кв.м, где каждый найдет уголок по душе, и удобная кухня площадью 6 кв.м, готовая стать центром семейного общения. Светлое пространство наполнено атмосферой тепла и комфорта, создавая идеальный баланс между отдыхом и активностью. Есть выезды, как в сторону гипермаркета ''Мега'' через Северо-Чемской жилмассив, так и в сторону Советского шоссе на ВАСХНИЛ. Сегодня на микрорайон запущен общественный транспорт, работают магазины. Согласно генплана запроектированы школа, детский сад и поликлиника. Доп. описание: санузел раздельный, пластиковые окна, в доме есть: открытый двор, наземный паркинг, лифт пассажирский, грузовой, косметический ремонт, также имеются: телефон, интернет, кабельное телевидение, счетчики холодной и горячей воды, домофон, железная дверь. Приобретая любой объект недвижимости через компанию ''Города'' вы так же получаете сертификат безопасности сделки, который страхует вас от потери права собственности.
1/28
3 500 000 ₽
1-к, Виктора Шевелева, 24
Просторный ж/м, Кировский район
37 м² · Этаж 1 из 10
Построен в 2020
Код объекта: 1698984. Продаётся уютная очень просторная студия! Идеальный вариант для молодых специалистов или студентов — квартира расположена на улице Виктора Шевелёва, 24. Построена в 2021 году, имеет косметический ремонт, поэтому можно сразу заселяться или сделать интерьер по своему вкусу. Просторный коридор, и вместительная кладовая комната. По желанию можно убрать перегородку в кладовую и тем самым увеличить площадь комнаты. В квартире установлена сигнализация, в подъездах установлены камеры видеонаблюдения. А также сенсорные выключатели подключены к колонке Алисе, в ванной и в коридоре выключается и включается свет с помощью колонки Алисы. В шаговой доступности остановка общественного транспорта, садик и в 15 минутах ходьбы школа. В санузле всё подготовлено для ремонта, можете воплотить свои желания. Общая площадь квартиры — 37,8 кв. м. Квартира находится на первом этаже десятиэтажного панельного дома. Окна выходят на улицу. В доме есть наземная парковка. Имеется просторный балкон. Не упустите шанс стать обладателем этой прекрасной студии! Позвоните нам прямо сейчас, чтобы узнать больше и записаться на просмотр. Мы гарантируем безопасную сделку и юридическую поддержку нашим Клиентам. Поможем одобрить ипотеку с сниженной ставкой.
1/12
5 740 000 ₽
3-к, Николая Сотникова, 21
Просторный ж/м, Кировский район
71 м² · Этаж 9 из 18
Новостройка, сдана
Обратите внимание!!! Квартира с ремонтом - цена подарок! ДОМ СДАН! Документы на руках! Ипотека! Любые сертификаты! В продаже 3х комнатная квартира, с очень удобной и функциональной планировкой: большая кухня-гостиная 25м2, две спальни 11 и 18,5 м2, просторный холл, вместительная гардеробная и раздельный санузел. Квартира ооочень теплая! Есть большой балкон с двумя выходами: из гостиной и спальни. Везде натяжные потолки с точечным освещением, на полу ламинат. Установлены качественные межкомнатные двери. В санузле современный кафель, установлена чугунная ванна. Квартира расположена на комфортном среднем этаже с прекрасным видом на парк! Территория вокруг дома ухожена, всегда есть парковочные места. В районе развита инфраструктура: остановка транспорта в 5 мин. от дома. Два детских сада и школа 217 в шаговой доступности. Много кружков, секций и развивающих студий для детей. Магазины. Квартира без долгов, без обременений, без опеки и любых других сложностей! КЛЮЧИ В ДЕНЬ РАСЧЕТА! Помощь в получении кредитного решения! Рассмотрим Ваши предложения по цене! Рядом с объектом находятся: 3 продуктовых магазина. Возможен обмен на вашу недвижимость. Возможна продажа в рассрочку. Комплексная услуга для покупателя с полной финансовой ответственностью агентства При звонке, пожалуйста, сообщите номер варианта - JV003054128865 Дополнительно оплачивается комиссия с покупателя. Пожалуйста, дождитесь ответа специалиста при звонке. Время дозвона до владельца объявления увеличено из-за использования подменных номеров на сайте Циан.
1/8
4 550 000 ₽
1-к, Виктора Шевелева, 30
Просторный ж/м, Кировский район
48 м² · Этаж 10 из 10
Новостройка, сдана
В продаже однокомнатная полноценная квартира на 10 этаже 10 этажного дома. Что является преимуществом, т.к сверху полноценный технический этаж. В квартире очень тепло, светло и комфортно. Соседи спокойные, не доставляют неудобств. Просторная гардеробная восполняет отсутствие балкона. Ремонт свежий, делали для себя. Мебель остается по договоренности. Разумный торг уместен. Звоните, организуем просмотр в любое удобное для вас время. Ключи в агенстве.
1/30
7 800 000 ₽
3-к, Виктора Шевелева, 34
Просторный ж/м, Кировский район
93 м² · Этаж 9 из 10
Построен в 2019
Продается эксклюзивный вариант просторной квартиры с инвестиционным объектом. По документам 3-х комнатная, а фактически в квартире есть 5 изолированных комнат: 12.3 м2, 12.8 м2, 18.7 м2 и 25.2 м2, где выделен кабинет с окном. В общую стоимость и квадратуру входит еще соседнее с квартирой помещение 8.2 м2 оборудованное под жилую студию. РАСПОЛОЖЕНИЕ: Квартира солнечная, теплая, окна на три стороны (юго-западный торец дома), соседние дома в отдалении в наши окна никто не заглядывают, дом в глубине микрорайона (удален от шумной трассы), прямо за домом ухоженный парк, во дворе детская площадка. Микрорайон в чистой экологической зоне, рядом лесопарк им. Синягина, пешком можно дойти до Оби. РЕМОНТ: Сделан качественный ремонт. Выровненные полы (сухая стяжка), напольное покрытие светлая ПВХ-плитка, стены хорошо выровнены, отштукатурены и прошпаклеваны без изъянов, полностью заменена вся электрика, сделаны удобные розетки, разводка под интернет, обои под покраску (легко обновить цвет стен, если захочется), натяжные потолки, во всех комнатах люстры со сменой световых режимов с пульта. ТРАНСПОРТНАЯ ДОСТУПНОСТЬ: Хорошо ходит транспорт (маршрутки, троллейбус, автобусы), до остановки 5 минут ходьбы. До метро на машине 15-20 минут, на троллейбусе до пл. Маркса 30-40 минут в зависимости от скорости транспортного потока. ИНФРАСТРУКТУРА: Рядом МФЦ, четыре торговых центра, магазины у дома Красное и Белое, Монетка, Бристоль, два детских сада, уже построена поликлиника (скоро введут в эксплуатацию), есть частные медцентры, аптеки, большая школа и еще две строятся. УСЛОВИЯ СДЕЛКИ: Два взрослых собственника, без обременений, занижение не требуется, мат. капитал не использовался. Продажа от собственника, комиссий нет, просьба риелторов без реального покупателя не беспокоить. УНИКАЛЬНОСТЬ КВАРТИРЫ: Квартира в реальности 6-ти комнатная. Очень светлая, с балкона видно закат, а с другого окна встречаем рассвет. Небольшое помещение с отдельным входом рядом с квартирой, оборудовано всем необходимым для проживания и его можно сдавать, окупая квартплату. Ждем вас на просмотр
1/11
1 270 000 ₽
1-к, Виктора Шевелева, 30
Просторный ж/м, Кировский район
8 м² · Этаж 3 из 10
Новостройка, сдана
ПЕРСПЕКТИВНОЕ ВЛОЖЕНИЕ ДЕНЕГ! УДОБНЫЙ ВАРИАНТ ДЛЯ СДАЧИ В НАЕМ! ЧИСТАЯ СРОЧНАЯ ПРОДАЖА! Новый дом в новом развивающемся ЖК Кировского района. Рядом : школа, детсад, магазины ,остановка общественного транспорта. Предназначение НЕЖИЛОЕ. Масса вариантов для коммерческого использования, а также для проживания. Площадь 8,1 кв м, в студии есть душ и туалет. Приятным бонусом остаётся вся мебель и водонагреватель, бытовая техника по договорённости с продавцом. Один взрослый собственник, обременений нет, под ипотеку не подходит.
1/9
3 500 000 ₽
1-к, Александра Чистякова, 6
Просторный ж/м, Кировский район
32 м² · Этаж 5 из 10
Новостройка, сдана
Арт. 127065122 Настоящая жемчужина в ул. Чистякова, 6! В продаже уютная и очень светлая студия с остекленным балконом на 5-м этаже 10-этажного дома. Квартира полностью готова к проживанию — вам останется только завезти личные вещи, мебель и технику. Почему эта квартира — ваш идеальный выбор? • Без забот и рисков: Квартира оформлена в собственность. Всего 1 взрослый собственник, никаких обременений, долгов и использования маткапитала. Процесс покупки пройдет максимально гладко и безопасно. • Готовый ремонт: Не придется вкладываться в отделку! Ванная комната с кафелем до потолка, нейтральные обои на стенах, практичный ламинат и уютная кухонная зона с кафельным полом. • Простор и комфорт: Комфортная площадь жилой зоны в 25,4 кв.м. позволяет с легкостью разместить всю необходимую мебель. Идеальный вариант для молодой пары, для одного человека, ищущего свой уголок, или в качестве отличной инвестиции. • Выгодное расположение: Рядом с домом находится остановка общественного транспорта, что обеспечивает отличную транспортную доступность. В шаговой доступности вся необходимая инфраструктура: магазины, аптеки, кафе, детские сады и школа. Эта квартира — шанс обрести свой дом без лишних хлопот. Не упустите его! Звоните, чтобы назначить просмотр!
1/25
6 500 000 ₽
3-к, Александра Чистякова, 6
Просторный ж/м, Кировский район
59 м² · Этаж 8 из 10
Новостройка, сдана
Код объекта: 1366306. Предлагаем вашему вниманию уютную 3-комнатную квартиру. Подойдет, как для проживания семьи с детьми, так и для тех кто любит уют. После ремонта. Вся мебель остается в квартире. Квартира без обременений, без использования материнского капитала, один взрослый собственник. Возможность оформления сделки с использованием ипотеки и материнского капитала. Звоните, - проконсультирую! Дополнительно оплачивается комиссия с покупателя.
1/33
5 750 000 ₽
3-к, Николая Сотникова, 9/1
Просторный ж/м, Кировский район
72 м² · Этаж 11 из 18
Новостройка, сдана
О КВАРТИРЕ Отличная планировка: 2 изолированные комнаты, кухня-гостиная, раздельный санузел, гардеробная зона, просторный балкон с выходом из двух комнат (в указанной общей площади он не учтен!). Установлена новая хорошая входная дверь. Квартира продается под самоотделку. О ДОМЕ Квартира расположена на 11 этаже 18-этажного дома. Светлый чистый подъезд, два лифта (пассажирский и грузопассажирский). Ухоженная придомовая территория, наземная парковка. О МЕСТОПОЛОЖЕНИИ Дом расположен в районе с развитой инфраструктурой. В шаговой доступности школы, детские сады, магазины, поликлиника, аптеки, пункты выдачи маркетплейсов. До ближайшей остановки общественного транспорта пару минут ходьбы. Квартира подойдет людям, которым важно иметь рядом с домом все, что нужно для комфортной жизни. Звоните!
  • 7
  • 8
  • 9
  1. Недвижимость в Новосибирске
  2. Продажа
  3. Квартиры
  4. мкр. Просторный ж/м
  5. 201 объявление

Может быть полезно

Ипотека

Узнайте за 10 минут, какой кредит вам одобрят банки

Подбор риелтора

Риелтор поможет купить или продать любую недвижимость

Журнал

Турниры отменили — стадионы остались. Что будет с недостроенными объектами? Турниры отменили — стадионы остались. Что будет с недостроенными объектами?
Новосибирск космический: от «Бурана» до «Гагаринской» (часть 2) Новосибирск космический: от «Бурана» до «Гагаринской» (часть 2)
Женское лицо города: сибирячки (и не только), которые дали новосибирским улицам свои имена Женское лицо города: сибирячки (и не только), которые дали новосибирским улицам свои имена
От «Хлебопродукта» до аффинажного завода: экскурсия по космическому Новосибирску От «Хлебопродукта» до аффинажного завода: экскурсия по космическому Новосибирску
Овеянные временем: дома с историей, в которых можно купить квартиру Овеянные временем: дома с историей, в которых можно купить квартиру
Читать все статьи
Продажа квартир в Новосибирске
  • по районам
  • Дзержинский район
  • Железнодорожный район
  • Заельцовский район
  • Калининский район
  • Кировский район
  • Ленинский район
  • Октябрьский район
  • Первомайский район
  • Советский район
  • Центральный район
  • по метро
  • Площадь Маркса
  • Студенческая
  • Речной вокзал
  • Октябрьская
  • Площадь Ленина
  • Красный проспект
  • Гагаринская
  • Заельцовская
  • Площадь Гарина-Михайловского
  • Сибирская
  • Маршала Покрышкина
  • Берёзовая Роща
  • Золотая Нива

Некоторые материалы настоящего раздела могут содержать информацию, запрещенную для детей, не достигших шести лет.

Информация о возрастных ограничениях в отношении информационной продукции, подлежащая распространению на основании норм Федерального закона «О защите детей от информации, причиняющей вред их здоровью и развитию».

О компанииСправочный центрВакансииПрайс-лист
© ООО «Н1.РУ»  Правила использования

Некоторые материалы настоящего раздела могут содержать информацию, запрещенную для детей, не достигших шести лет.

Информация о возрастных ограничениях в отношении информационной продукции, подлежащая распространению на основании норм Федерального закона «О защите детей от информации, причиняющей вред их здоровью и развитию».

Новостройки
Студии
Однокомнатные
Двухкомнатные
Трехкомнатные
Четырехкомнатные
Многокомнатные
Каталоги
Выделение цветом
Спецпредложение
Топ
Турбо
Вторичка
Однокомнатные
Комнаты
Студии
Коттеджи
Дома
Аренда недвижимости
Квартиры
Комнаты
Студии
Коттеджи
Дома
Города
Архангельск
Екатеринбург
Красноярск
Новосибирск
Омск
Пермь
Тюмень
Челябинск
Все города
Карта сайта
 Купите квартиру в микрорайоне Просторный ж/м в Новосибирске - 201 объявление в каталоге жилой недвижимости на N1. Средняя цена продажи или покупки жилья составляет 5 млн ₽. Покупайте квартиры недорого на сайте N1.ru.