3-к, Южный микрорайон, 26 Показать на карте
Южный
Искитим
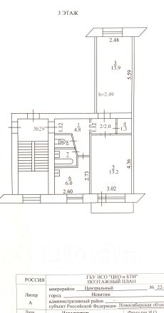
Продаётся уютная трёхкомнатная квартира площадью 57 квадратных метров на третьем этаже пятиэтажного панельного дома, расположенного в живописном районе города Искитима, микрорайон Южный, дом 26. Дом построен в 1991 году и окружён развитой инфраструктурой: рядом находятся школа, детский сад, парк и фитнес-центр, что делает это место идеальным для семей с детьми.Квартира имеет продуманную планировку: три комнаты предоставляют достаточно пространства для комфортного проживания всей семьи, а наличие балкона позволяет наслаждаться свежим воздухом без необходимости выходить из дома. Из окон открывается приятный вид на тихий двор, где расположена детская площадка отличное место для игр ваших детей.Жильё после косметического ремонта, что позволит новым владельцам сразу же заселиться без дополнительных вложений. Совмещённый санузел оборудован всем необходимым для повседневной жизни.Квартира продается частично с мебелью.Для вашего удобства во дворе предусмотрена парковка, а безопасность обеспечивается наличием домофона. Рядом с домом расположены средняя школа 11,средняя школа 9, детский сад 22, поликлиника 2, различные магазины и сервисы, такие как продуктовые супермаркеты Maria-Ra и Prodsib, а также парикмахерская Elixir, что значительно упрощает решение бытовых вопросов.Это прекрасный вариант для тех, кто ценит спокойствие и уединение, при этом желает оставаться в шаговой доступности от всех необходимых городских объектов. Приглашаем вас ознакомиться с этой замечательной квартирой и убедиться во всех её преимуществах лично!Документы готовы к продаже,1 собственник,нет обременений и долгов.Все вопросы по телефону,показ по договоренности,желательно за день предупредить.
57 м2
3 / 5 этаж
Панель
- Показать контакты
- Добавить в избранное
57 м2
3 / 5 этаж
Панель
4 800 000
82 902 /м2
