Складское помещение
Чемская, 1 Показать на карте
Чемская, 1 Показать на карте
Кировский район
Новосибирск
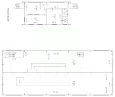
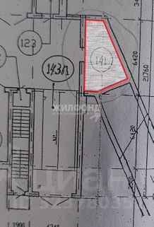
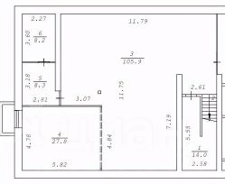
Продаётся отдельностоящее складское здание в отличной локации для ведения бизнеса различной направленности. Рядом большой жил массив, остановка общественного транспорта. - Площадь 950 кв м + антрисоль с тремя офисными кабинетми, - Размеры: 38*25 м, высота 8 м. - Четверо больших подъёмных ворот, безпылевой пол, - Земельный участок 2000 кв м в собственности, - Виды разрешенного использования: склад, СТО, коммунальное обслуживание, стоянки и пр. , - Электроэнергия 150 кВт, прямой договор с Энергосбыт, - Холодное водоснабжение, прямой договор с Горводоканал, - Водоотведение: септик, - Отопление автономное: твердотопливный котёл, Собственник: физ лицо. Наличие арендатора: здание полностью сдано в аренду. Под арендный бизнес: срок окупаемости 10 лет. По всем вопросам звоните. Комиссии с Покупателя нет.
950 м2
- Показать контакты
- Добавить в избранное
950 м2
88 000 000
92 632 /м2
