Коттедж, 5-й Гранатовый переулок, 8 Показать на карте
Кировский район
Новосибирск
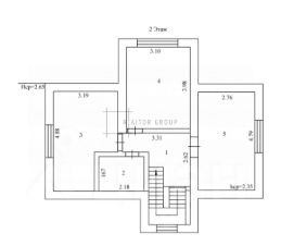
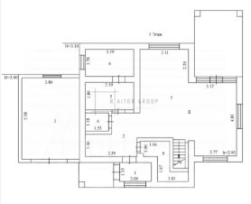
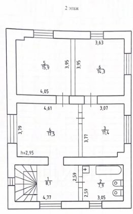
Продажа коттеджа 220 квадратных метров в коттеджном поселке в черте города, земля ИЖС, на границе с Краснообском, в шаговой доступности от дендропарка. Рядом магазины и остановка транспорта. Конструктив- надежные ж/б перекрытия на первом этаже, высокие потолки на двух этажах -2.9 м., просторная столовая-гостинная более 30 кв.метров, трехстворчатые пластиковые стеклопакеты, кирпичный балкон на втором этаже с видом на лес. Дом построен из газоблока, наружнее утепление 10 см из мин плиты достаточной жесткости, облицован металлическим сайдингом. Состояние- на втором этаже выполнен дизайнерский ремонт, на первом этаже ремонт частичный. Преимущество- первый этаж разделен на две половины по 55 кв метров каждая из которых, с одной стороны находится изолированная студия с отдельным входом- калиткой, крыльцом и сан.узлами. Студию можно использовать как домашний офис, творческую студию или жилую квартиру для взрослого ребенка. Рядом с домом капитальный гараж с автоматическими воротами Hormann, погребом и асфальтированная парковка на 3 машины. По периметру установлено видеонаблюдение. Вся мебель остается покупателю. Финансовые условия- единственный собственник без обременений. Ипотека возможна. Сделку купли- продажи можно провести через агенство недвижимости, что обеспечит вашу безопасность.В 2026 году планируется открытие школы и поликлиники в шаговой доступности от дома, соответственно вырастет стоимость квадратного метра. Коттеджный поселок освещается , дороги асфальтированы, канализация и вода центральные, зимой чистит город, проводятся мероприятия, дополнительных сборов нет, только все по счетчикам. Дом зарегистрирован, документы на участок и дом готовы. Продажа от собственника, агентов недвижимости просьба беспокоить при наличии конкретного покупателя.
220 м2
2 этажа
- Показать контакты
- Добавить в избранное
220 м2
2 этажа
16 100 000
73 182 /м2
