Коттедж, Маклая, 5 Показать на карте
Порт Пичуги КП
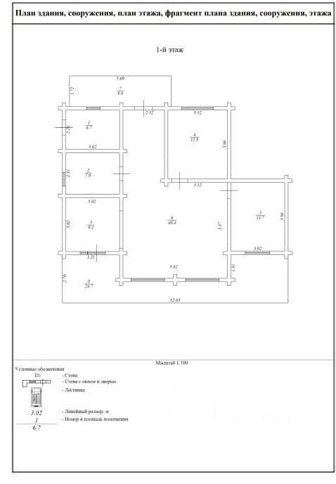
В продаже стильный, современный дом из бруса, 2024 года постройки. Дом готов к проживанию, требуется косметический ремонт по вкусу нового собственника.Все коммуникации заведены в дом и подключены, все функционирует.Отопление: газ, а так же есть резервный электрокотел. Установлены радиаторы.Водоснабжение: центральноеКанализация: септикЭлектричество: сделана разводка, установлены розетки и выключатели.В санузле установлен унитаз, сделана разводка коммуникаций для кухни.В доме две спальни и большая гостиная с кухонной зоной, есть летняя терасса.Дом расположен в коттеджном посёлке комфорт-класса Порт Пичуги. Рядом с домом есть продуктовый магазин. В поселке оборудована детская и спотивные площадки, для летнего отдыха есть пляж, где разместились лежаки и зонтики, кафе, в летнее время организованы киносеансы. Для любителей рыбалки на территории поселка есть озеро, где водится рыба. В поселке соседи проживают круглогодично, в с. Новопичугово есть школа и детский сад.Объект подходит под сельскую ипотеку
127 м2
1 этаж
Дерево
- Показать контакты
- Добавить в избранное
127 м2
1 этаж
Дерево
7 700 000
60 535 /м2
