Если цена в объявлении изменится, мы сразу сообщим вам об этом на электронную почту.
Нажимая «Подписаться», вы соглашаетесь с правилами.
продам дом, Зеленая Поляна ДНТ7 000 000 ₽
9 дек
Дата публикации объявления
Обн. вчера
Дата обновления объявления
5
Количество просмотров (+ просмотры за сегодня)
71 429 ₽/м²
Чистая продажа
Термин "Чистая продажа" означает, что в квартире никто не прописан или
есть куда выписаться и вывезти вещи. Это лучший вариант для покупателя.
Вероятность срыва сделки минимальна.
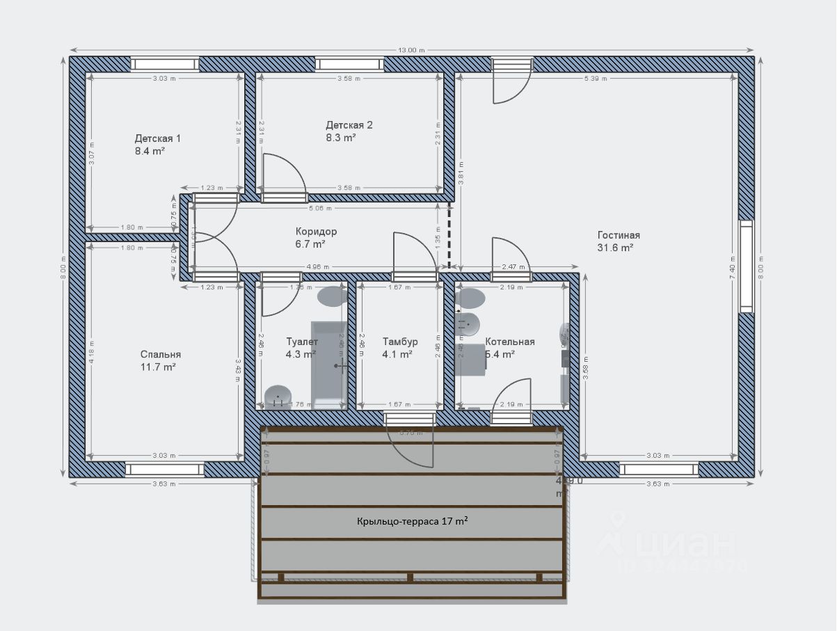
Этажей1
Площадь участка6 соток
Общая площадь98 м2
ЭлектричествоЕсть
Газоснабжениецентральное
Продается новый дом. Любой вид расчета.
Дом одноэтажный 13 м на 8 м, ровный участок 6 соток, но за участком построек не будет поэтому визуально и как лужайка территория пространства очень много за домом, которую можно использовать с целью отдыха и благоустройства не капитального. От площади Калинина/метро Заельцовская 35 минут езды до ДНТ, от Стрижей 20 минут дороги, вся дорога асфальтирована.
Площадь дома 81м2 + 17м2 (крыльцо-терраса), под отделку. Возможна перепланировка. Есть такой же дом-близнец, с ремонтом. Центральный водопровод, септик, газ идет по границе участка. Фундамент плита 30 см (бетон М350), стены Сибит 300 мм D500, утеплитель с оштукатуренным фасадом (Ceresit).
Продается новый дом. Любой вид расчета.
Дом одноэтажный 13 м на 8 м, ровный участок 6 соток, но за участком построек не будет поэтому визуально и как лужайка территория пространства очень много за домом, которую можно использовать с целью отдыха и благоустройства не капитального. От площади Калинина/метро Заельцовская 35 минут езды до ДНТ, от Стрижей 20 минут дороги, вся дорога асфальтирована.
Площадь дома 81м2 + 17м2 (крыльцо-терраса), под отделку. Возможна перепланировка. Есть такой же дом-близнец, с ремонтом. Центральный водопровод, септик, газ идет по границе участка. Фундамент плита 30 см (бетон М350), стены Сибит 300 мм D500, утеплитель с оштукатуренным фасадом (Ceresit). Межкомнатные стены толщиной 200-150 мм, тёплые полы по всему дому с терморегулятором (дистанционное управление с телефона), установлен водонагреватель. Крыша покрыта металлочерепицей, карнизы и водосточная система Docke. Окна Veka 5 камер заполненные аргоном, австрийская фурнитура Maco. Разведена черновая электрика, стены оштукатурены под обои.
Из окон вид на лес и луга, рядом река Обь, за участком территория застраиваться не будет, соседи только по бокам. Улицы зимой чистят регулярно, территория поселка охраняется, въезд через шлагбаум, обустроена пляжная зона и места для прогулок вдоль реки Оби, детские площадки, имеется место для спуска лодок, катеров. Просмотр по договоренности.