Универсальное помещение
Блюхера, 19 Показать на карте
Блюхера, 19 Показать на карте
Площадь Маркса, 5 мин
Новосибирск
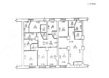
Сдаём коммерческое помещениеСвободного назначения - 201 м2Пpeимущеcтвa лoкации:- Сердце Левого берега- Высокий трафик- Пересечение улиц Блюхера и Ватутина- Напротив ТЦ ВерсальПривлекательность объекта:- Первый этаж жилого дома- Удобная планировка- Хорошо просматривается с дороги- Удобный подъезд Потенциал объекта:- Отличная локация для ведения бизнеса- Возможно использовать под различные виды бизнеса (предпочтительно под банк)- Огромный пешеходный и автомобильный трафик- В соседних помещениях три банкаОписание объекта:- Общая площадь 201 м2- Выделенная электроэнергия 15 кВт (можно увеличить)- Очень тёплое помещение- Есть кондиционер и система вентиляции- Есть эвакуационный выход- Полностью оборудовано под банкУсловия сделки:- Быстрый выход на сделку- Документы готовы- Помещение СВОБОДНО Коммерческая недвижимость, коммерческий объект! Дополнительно оплачивается комиссия с покупателя.Код пользователя: 1245797423Номер в базе: 10113543
201 м2
- Показать контакты
- Добавить в избранное
201 м2
400 000 /мес.
1 983 /м2
