Универсальное помещение
Ельцовская, 2/1 Показать на карте
Ельцовская, 2/1 Показать на карте
Заельцовский район, ДК Кирова
Новосибирск
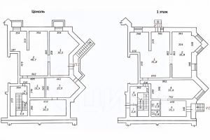
Сдается помещение свободного назначения долгосрочно1 ЭТАЖ С ОТДЕЛЬНЫМ ВХОДОМ 150 кв..мЛОКАЦИЯ: Ельцовская 2/1первая линияплощадь 150 кв.м.два входас ремонтом!по спецпроекту оборудован и оснащен кабинет директоракруглосуточный доступнесколько мокрых точекшикарная кухня для сотрудниковчистые санузлы, отдельный санузел в кабинете директора, в санузле для сотрудников установлена сушилка для руквентиляция вытяжная стандартная как в жилых помещениях, в санузлах и на кухне - с вытяжными вентиляторами. Установлены три кондиционера.Установлена пожарно-охранная сигнализация, помещение сдается на пульт, есть тревожная кнопка, договор на обслуживание ОПС имеется.Подходит для ведения медицинской деятельности.парковка открытая, много парковочный местудобный выезд на ул. Владимировскую, Дуси Ковальчук и СухарнуюОбратите внимание!Дополнительно к первому этажу можно снять цокольный этаж.Имеется лестница для спуска в цоколь внутри помещения, а также отдельный вход с улицы.Цоколь: вентиляция приточно-вытяжная с подогревом наружнего воздуха и рекуператором. В подвал кондиционер не нужен даже в сильную жару. Есть возможность отдельно арендовать каждый этаж.Цена договорная.Но желательно отдать помещение целиком в одни руки.Если есть дополнительные вопросы или хотите записаться на просмотр - звоните!Номер объекта: #1/542794/24710
150 м2
- Показать контакты
- Добавить в избранное
150 м2
150 000 /мес.
1 000 /м2
