Офисное помещение
Гоголя, 33/1 Показать на карте
Гоголя, 33/1 Показать на карте
Маршала Покрышкина, 5 мин
Новосибирск
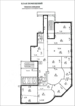
Сдаётся помещение 700м2 на первой линии.НА ФОТО ПРЕДСТАВЛЕНЫ ВАРИАНТЫ ПЛАНИРОВОК. ЕСТЬ ВОЗМОЖНОСТЬ АРЕНДОВАТЬ ПОМЕЩЕНИЕ ПЛОЩАДЬЮ ОТ 15 М² ДО 700 М² Особенности объекта - входа с улицы Гоголя . - Возможность установки вывески - Открытая территория, нет шлагбаумов - Без ограничений по видам деятельности - Прямоугольная форма, кабинетная планировка - Широкоформатные окна - Высокие потолки — 2,7 метра - Кондиционеры, мокрая точка Условия аренды: Договор аренды на 11 месяцев с дальнейшей пролонгацией )Обеспечительный платеж 100% Трафик и локация - Один из лучших потоков — до 500 человек в час - остановки общественного транспорта поблизости - В 5минутах метро В Пешем доступе ТЦ ''Галерея''. высокий уровень заселённостиПросмотр — когда вам удобно - Помещение идеально подходит для организации различных видов бизнеса, включая: аптека, ателье, швейное производство, банк, финансовые и страховые услуги, салон красоты, парикмахерская, ветеринарная клиника, груминг, медицинский центр, косметология, магазин, спортивный центр, образовательный центр, творческая студия, мастерская, фотостудия, массажный салон, тату-салон, химчистка, магазин, шоурум, бутик, галерея, пункт выдачи заказов ПВЗ (ОЗОН, ВАЛБЕРРИС, OZОN, Wildberries, Яндекс лавка), склад, турагентство, интернет-магазин, цветочный магазин, зоомагазин, цветы, канцелярия и хозяйственные товары, товары для дома, кондитерская, маникюрная студия, табачный бутик, Это помещение предоставляет отличные возможности для реализации вашего бизнеса Возможно, вы искали: аренда помещения, помещение с витринами, помещение на первой линии, аренда под торговлю в центре горорода. Просмотры в удобное для Вас время .
50 м2
- Показать контакты
- Добавить в избранное
50 м2
90 000 /мес.
1 800 /м2
