2-к, Красногорская, 25 Показать на карте
Заельцовский район, Городской аэропорт
Новосибирск, Ньютон
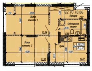
Ощутите гармонию пространства и тишины в новом доме. Ваше идеальное пространство с предчистовой отделкой ждет именно ваших идей!Основные характеристики:• Площадь: 53.4 м² свободного пространства для творчества• Комнаты: 2 светлые изолированные комнаты• Этаж: 9/19 — идеальная высота для вдохновляющего вида• Тип дома: теплый кирпичный (2026 год постройки)• Отделка: предчистовая — возможность воплотить любые дизайнерские решения• Санузел: практичный совмещенный• Балкон: просторная лоджия для отдыха и вдохновенияПочувствуйте преимущества:• Безмятежная тишина благодаря окнам во двор• Ощущение безопасности на закрытой территории• Комфорт передвижения (2 пассажирских, 1 грузовой лифт)• Спокойствие от чистой юридической истории (один взрослый собственник)• Доступность мечты через ипотечные программыПредставьте, как вы создаете интерьер своей мечты с нуля в квартире с предчистовой отделкой. Каждый сантиметр пространства можно оформить по вашему вкусу, не тратя время и деньги на демонтаж старого ремонта. Изолированные комнаты подарят каждому члену семьи личное пространство, а тихий двор за окном станет источником спокойствия и умиротворения.Звоните сейчас — такие предложения быстро находят своих счастливых обладателей! Дополнительно оплачивается комиссия с покупателя.Код пользователя: 195356Номер в базе: 11738493
До центра ~ 35 мин
Приблизительное время на общественном транспорте до Площадь Ленина – 35 мин
53 м2
9 / 19 этаж
Кирпич - монолит
- Показать контакты
- Добавить в избранное
53 м2
9 / 19 этаж
Кирпич - монолит
8 900 000
166 667 /м2
