3-к, Ясный Берег, 29 Показать на карте
Ленинский район, Лесоперевалка
Новосибирск, Жилой комплекс «Ясный берег»
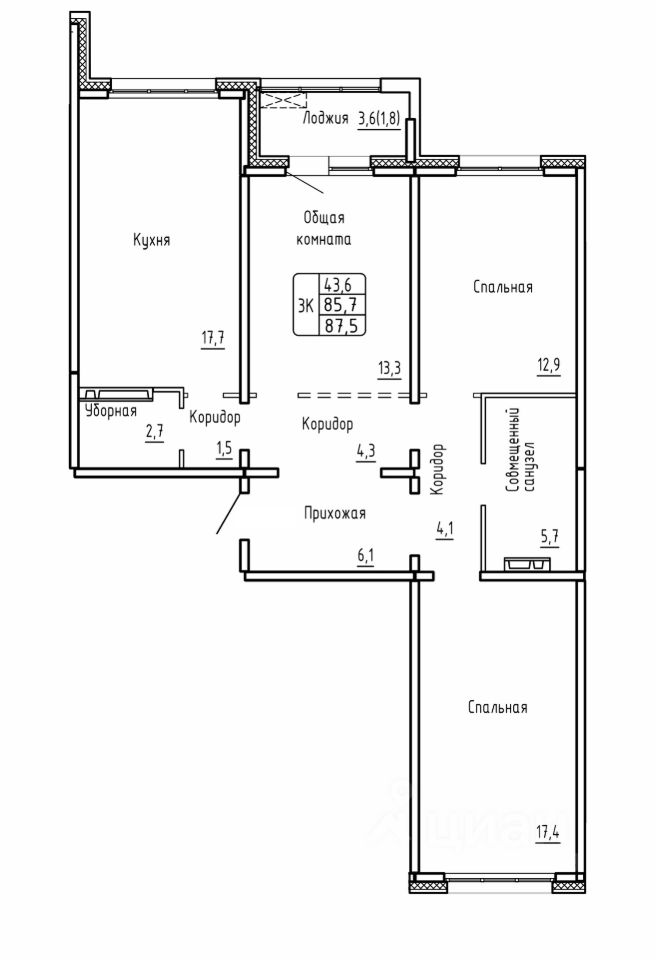
Продаётся 3-комнатная квартира в строящемся доме (Дом 19, секции 2-5), срок сдачи: IV-кв. 2027, общей площадью 102.17 кв.м., на 10 этаже. Расположение, транспортная доступностьНовый жилой комплекс комфорт-класса ''Город-парк Ясный Берег'' строится на левом берегу реки Обь, но при этом совсем недалеко от центра Новосибирска. Новый микрорайон расположится рядом с проездом Энергетиков, который переходит в Дмитровский мост. Добраться до самого центра мегаполиса совсем несложно: дорога на автомобиле займет всего десять минут в зависимости от загруженности магистралей (расстояние до исторического центра чуть больше 4 км).На общественном транспорте до центральных районов можно доехать за двадцать пять минут (время в пути зависит и от дорожного трафика, от выбранного маршрута и точного места назначения). В шаговой доступности от ЖК ''Город-парк Ясный Берег'' расположена остановка ''Мост'', откуда курсируют автобусы и маршрутные такси в разные районы Новосибирска.Рядом с новым ЖК проходят крупнейшие транспортные артерии города Октябрьский мост, проезд Энергетиков, улицы Ватутина, Котовского, Станционная и Немировича-Данченко, так что добраться в любую точку города не составит труда как на машине, так и на общественном транспорте.ИнфраструктураЛенинский район, где возводится ''Ясный Берег'', считается престижным, так что уже сейчас новые владельцы квартир города-парка смогут наслаждаться комфортной городской жизнью в тихом микрорайоне. В шаговой доступности: детские садики, общеобразовательные школы, магазины, аптеки, сетевые супермаркеты, кафе, аптеки, медицинские учреждения. За пять минут можно доехать до строительного гипермаркета ''Леруа Мерлен''. Вокруг много мест для отдыха, занятий спортом, прогулок с детьми.Впрочем, согласно концепции, в недалеком будущем жителям ''Города-парка Ясный Берег'' не понадобится часто покидать пределы любимого микрорайона, поскольку новый жилой комплекс будет представлять собой ''город в городе''. На территории ЖК будет большой парк с пешеходными и велосипедными дорожками, местами для отдыха, игровыми зонами. Отличительной особенностью станет детская гоночная трасса точный аналог сочинской ''Формулы-1''.На территории ''Города-парка Ясный Берег'' построят детские площадки с современным игровым оборудованием, школы, развивающие секции и кружки, детские сады (один построен и уже работает). В городе-парке будут и огороженные места для курения, и территории для прогулок с домашними питомцами. В микрорайоне предусмотрено много зон с wi-fi.Надежность застройщикаЗастройщиком проекта является СК ''Аква Сити'', основанная в 2012 году. Генеральным подрядчиком компания ''Метаприбор''. В 2016 году ''Метаприбор'' занял первое место в области по объемам введенного в эксплуатацию жилья (благодаря своевременной сдаче двух корпусов в ЖК ''Город-парк Ясный Берег'').Эти компании осуществляют полный цикл строительства от выбора участков под застройку до внутренней отделки, ввода в эксплуатацию и благоустройству территории новых ЖК.И ''Аква Сити'', и ''Метаприбор'' и
102 м2
10 / 17 этаж
Кирпич - монолит
- Показать контакты
- Добавить в избранное
102 м2
10 / 17 этаж
Кирпич - монолит
17 407 000
170 373 /м2
Новостройка,
IV-2027
IV-2027
