4-к, Промышленная, 7 Показать на карте
Дзержинский район, Проспект Дзержинского
Новосибирск, Промышленная 7
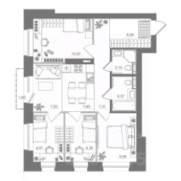
Продаётся 4-комнатная квартира в строящемся доме (Дом 1), срок сдачи: I-кв. 2026, общей площадью 58.99 кв.м., на 10 этаже. Новая жизнь в удобной локации Дзержинского района! Промышленная, 7 новый дом вблизи Березовой рощи!ИНФРАСТРУКТУРАПомимо станции метро и зелёного парка для прогулок, здесь можно найти большое разнообразие инфраструктуры: от семейных ресторанов до ТРЦ ''Сибирский молл''.ВНЕШНИЙ ВИДЭтажность дома и стиль фасада выделяют здание среди окружающей застройки. Кирпич разных оттенков, ночная подсветка, правильная геометрическая форма - архитектуру можно рассматривать и любоваться каждой деталью.ДВОР И ПРОСТРАНСТВА ОБЩЕГО ПОЛЬЗОВАНИЯЗакрытый, безопасный двор с функциональной детской площадкой и местами для отдыха и прогулок взрослых. Ландшафтное озеленение - всё для досуга на свежем воздухе. Входные группы светлые и стильные. Интерьер холлов соответствует текущим трендам дизайна, а безопасность обеспечивает круглосуточное видеонаблюдение.БОЛЬШОЙ ВЫБОР КВАРТИРПланировки радуют своими нестандартными решениями: лоджии с витражным остеклением и классической кирпичной кладкой, несколько санузлов, эркерные окна, низкие подоконники, потолки от 2.7 метров. Пространство максимально оптимизировано: минимум коридоров, максимум света.
До центра ~ 40 мин
Приблизительное время на общественном транспорте до Площадь Ленина – 40 мин
58 м2
10 / 17 этаж
Кирпич - монолит
- Показать контакты
- Добавить в избранное
58 м2
10 / 17 этаж
Кирпич - монолит
10 146 280
172 000 /м2
Новостройка,
I-2026
I-2026
