logo
N1.RU — новая улучшенная версия НГС.Недвижимость
Чтобы вернуться на старый сайт НГС.Недвижимость, перейдите по ссылке в нижней части сайта N1.RU
  • Продажа
  • Аренда
  • Новостройки
  • Журнал
  • Компании
  • Оценка
  • Шаблоны документов
  • Налоговый вычет
  • Еще
  • Личный кабинет
    • Вход
    • Регистрация
    • Новосибирск
  • Добавить объявление
Тип недвижимости
Новосибирск
Поиск в любом из этих мест
мкр. Сухарная, Новосибирск
  • Метро
  • Район и микрорайон
Количество комнат
Цена
  1. Недвижимость в Новосибирске
  2. Продажа
  3. Квартиры
  4. Новостройки
  5. Студия
  6. мкр. Сухарная
  7. 28 объявлений

Продажа квартир-студий в микрорайоне Сухарная в Новосибирске

  • 1-комнатные28
  • Без посредников1
За все время
Сортировка по умолчанию
СпискомСписком
ТаблицейТаблицей
На картеНа карте
Открыть поиск по карте

По вашему запросу объявлений не найдено

1/25
1-к, 2-я Сухарная, 109/2 Показать на карте
Заельцовский район, Сухарная
Новосибирск
Продаётся студия в строящемся доме (Дом 1), срок сдачи: IV-кв. 2026, общей площадью 25.2 кв.м., на 3 этаже. Квартал ''Страна.Береговая'' - новый проект компании ''Страна Девелопмент'', расположенный в Заельцовском районе Новосибирска по адресу: ул. 2-я Сухарная, 109/2.
25 м2
3 / 28 этаж
Панель
  • Показать контакты
  • Добавить в избранное
25 м2
3 / 28 этаж
Панель
6 300 000 
250 000 /м2
Новостройка,
IV-2026
1/32
1-к, Сухарная, 96/3 Показать на карте
Заельцовский район, Сухарная
Новосибирск, Жилой комплекс «Сосны»
Уважаемые покупатели!В продаже просторная квартира-студия в ЖК Сосны. Квартира без отделки, что предоставляет будущему владельцу полную свободу для реализации индивидуального дизайн-проекта с учетом личных предпочтений и бюджета. Планировка функциональна и включает большую лоджию, которую можно трансформировать в зону отдыха или дополнительное место для хранения, наслаждаясь при этом открывающимися природными пейзажами. Район отличается развитой повседневной инфраструктурой: в шаговой доступности расположены супермаркеты, аптеки, поликлиники, отделения банков, школы и детские сады. Большим преимуществом является непосредственная близость к рекреационным зонам — Заельцовскому бору, зоопарку и ботаническому саду, что обеспечивает высокое качество жизни и отдыха на природе. Транспортная доступность позволяет быстро добраться до центра Новосибирска и других ключевых районов города благодаря развитой сети общественного транспорта и выездам на основные магистрали. Чистая продажа.Приглашаем на просмотр! Дополнительно оплачивается комиссия с покупателя.Код пользователя: 220466Номер в базе: 12147225
До центра ~ 35 мин
Приблизительное время на общественном транспорте до Площадь Ленина – 35 мин
27 м2
4 / 25 этаж
Кирпич
  • Показать контакты
  • Добавить в избранное
27 м2
4 / 25 этаж
Кирпич
4 290 000 
155 435 /м2
Новостройка,
дом сдан
1/21
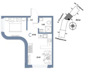
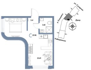
1-к, 2-я Сухарная, 109/2 Показать на карте
Заельцовский район, Сухарная
Новосибирск
Продаётся студия в строящемся доме (Дом 1), срок сдачи: IV-кв. 2026, общей площадью 29.98 кв.м., на 15 этаже. Квартал ''Страна.Береговая'' - новый проект компании ''Страна Девелопмент'', расположенный в Заельцовском районе Новосибирска по адресу: ул. 2-я Сухарная, 109/2.
29 м2
15 / 28 этаж
Панель
  • Показать контакты
  • Добавить в избранное
29 м2
15 / 28 этаж
Панель
7 810 000 
260 507 /м2
Новостройка,
IV-2026
1/21
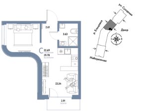
1-к, 2-я Сухарная, 109/2 Показать на карте
Заельцовский район, Сухарная
Новосибирск
Продаётся студия в строящемся доме (Дом 1), срок сдачи: IV-кв. 2026, общей площадью 29.98 кв.м., на 3 этаже. Квартал ''Страна.Береговая'' - новый проект компании ''Страна Девелопмент'', расположенный в Заельцовском районе Новосибирска по адресу: ул. 2-я Сухарная, 109/2.
29 м2
3 / 28 этаж
Панель
  • Показать контакты
  • Добавить в избранное
29 м2
3 / 28 этаж
Панель
7 810 000 
260 507 /м2
Новостройка,
IV-2026
1/21
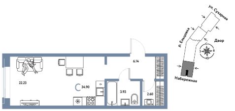
1-к, 2-я Сухарная, 109/2 Показать на карте
Заельцовский район, Сухарная
Новосибирск
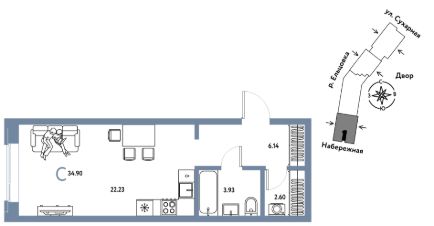
Продаётся студия в строящемся доме (Дом 1), срок сдачи: IV-кв. 2026, общей площадью 34.9 кв.м., на 3 этаже. Квартал ''Страна.Береговая'' - новый проект компании ''Страна Девелопмент'', расположенный в Заельцовском районе Новосибирска по адресу: ул. 2-я Сухарная, 109/2.
34 м2
3 / 28 этаж
Панель
  • Показать контакты
  • Добавить в избранное
34 м2
3 / 28 этаж
Панель
9 080 000 
260 172 /м2
Новостройка,
IV-2026
1/21
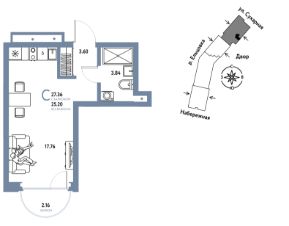
1-к, 2-я Сухарная, 109/2 Показать на карте
Заельцовский район, Сухарная
Новосибирск
Продаётся студия в строящемся доме (Дом 1), срок сдачи: IV-кв. 2026, общей площадью 25.2 кв.м., на 18 этаже. Квартал ''Страна.Береговая'' - новый проект компании ''Страна Девелопмент'', расположенный в Заельцовском районе Новосибирска по адресу: ул. 2-я Сухарная, 109/2.
25 м2
18 / 28 этаж
Панель
  • Показать контакты
  • Добавить в избранное
25 м2
18 / 28 этаж
Панель
6 300 000 
250 000 /м2
Новостройка,
IV-2026
1/25
1-к, 2-я Сухарная, 109/2 Показать на карте
Заельцовский район, Сухарная
Новосибирск
Продаётся студия в строящемся доме (Дом 1), срок сдачи: IV-кв. 2026, общей площадью 27.36 кв.м., на 14 этаже. Квартал ''Страна.Береговая'' - новый проект компании ''Страна Девелопмент'', расположенный в Заельцовском районе Новосибирска по адресу: ул. 2-я Сухарная, 109/2.
27 м2
14 / 28 этаж
Панель
  • Показать контакты
  • Добавить в избранное
27 м2
14 / 28 этаж
Панель
6 930 000 
253 289 /м2
Новостройка,
IV-2026
1/25
1-к, 2-я Сухарная, 109/2 Показать на карте
Заельцовский район, Сухарная
Новосибирск
Продаётся студия в строящемся доме (Дом 1), срок сдачи: IV-кв. 2026, общей площадью 24.6 кв.м., на 26 этаже. Квартал ''Страна.Береговая'' - новый проект компании ''Страна Девелопмент'', расположенный в Заельцовском районе Новосибирска по адресу: ул. 2-я Сухарная, 109/2.
24 м2
26 / 28 этаж
Панель
  • Показать контакты
  • Добавить в избранное
24 м2
26 / 28 этаж
Панель
6 700 000 
272 358 /м2
Новостройка,
IV-2026
1/25
1-к, 2-я Сухарная, 109/2 Показать на карте
Заельцовский район, Сухарная
Новосибирск
Продаётся студия в строящемся доме (Дом 1), срок сдачи: IV-кв. 2026, общей площадью 25.2 кв.м., на 22 этаже. Квартал ''Страна.Береговая'' - новый проект компании ''Страна Девелопмент'', расположенный в Заельцовском районе Новосибирска по адресу: ул. 2-я Сухарная, 109/2.
25 м2
22 / 28 этаж
Панель
  • Показать контакты
  • Добавить в избранное
25 м2
22 / 28 этаж
Панель
6 300 000 
250 000 /м2
Новостройка,
IV-2026
1/25
1-к, 2-я Сухарная, 109/2 Показать на карте
Заельцовский район, Сухарная
Новосибирск
Продаётся студия в строящемся доме (Дом 1), срок сдачи: IV-кв. 2026, общей площадью 24.6 кв.м., на 25 этаже. Квартал ''Страна.Береговая'' - новый проект компании ''Страна Девелопмент'', расположенный в Заельцовском районе Новосибирска по адресу: ул. 2-я Сухарная, 109/2.
24 м2
25 / 28 этаж
Панель
  • Показать контакты
  • Добавить в избранное
24 м2
25 / 28 этаж
Панель
6 700 000 
272 358 /м2
Новостройка,
IV-2026
1/25
1-к, 2-я Сухарная, 109/2 Показать на карте
Заельцовский район, Сухарная
Новосибирск
Продаётся студия в строящемся доме (Дом 1), срок сдачи: IV-кв. 2026, общей площадью 27.36 кв.м., на 10 этаже. Квартал ''Страна.Береговая'' - новый проект компании ''Страна Девелопмент'', расположенный в Заельцовском районе Новосибирска по адресу: ул. 2-я Сухарная, 109/2.
27 м2
10 / 28 этаж
Панель
  • Показать контакты
  • Добавить в избранное
27 м2
10 / 28 этаж
Панель
6 930 000 
253 289 /м2
Новостройка,
IV-2026
1/25
1-к, 2-я Сухарная, 109/2 Показать на карте
Заельцовский район, Сухарная
Новосибирск
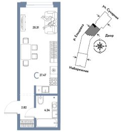
Продаётся студия в строящемся доме (Дом 1), срок сдачи: IV-кв. 2026, общей площадью 27.47 кв.м., на 14 этаже. Квартал ''Страна.Береговая'' - новый проект компании ''Страна Девелопмент'', расположенный в Заельцовском районе Новосибирска по адресу: ул. 2-я Сухарная, 109/2.
27 м2
14 / 28 этаж
Панель
  • Показать контакты
  • Добавить в избранное
27 м2
14 / 28 этаж
Панель
6 760 000 
246 087 /м2
Новостройка,
IV-2026
1/25
1-к, 2-я Сухарная, 109/2 Показать на карте
Заельцовский район, Сухарная
Новосибирск
Продаётся студия в строящемся доме (Дом 1), срок сдачи: IV-кв. 2026, общей площадью 34.9 кв.м., на 4 этаже. Квартал ''Страна.Береговая'' - новый проект компании ''Страна Девелопмент'', расположенный в Заельцовском районе Новосибирска по адресу: ул. 2-я Сухарная, 109/2.
34 м2
4 / 28 этаж
Панель
  • Показать контакты
  • Добавить в избранное
34 м2
4 / 28 этаж
Панель
9 080 000 
260 172 /м2
Новостройка,
IV-2026
1/25
1-к, 2-я Сухарная, 109/2 Показать на карте
Заельцовский район, Сухарная
Новосибирск
Продаётся студия в строящемся доме (Дом 1), срок сдачи: IV-кв. 2026, общей площадью 34.9 кв.м., на 2 этаже. Квартал ''Страна.Береговая'' - новый проект компании ''Страна Девелопмент'', расположенный в Заельцовском районе Новосибирска по адресу: ул. 2-я Сухарная, 109/2.
34 м2
2 / 28 этаж
Панель
  • Показать контакты
  • Добавить в избранное
34 м2
2 / 28 этаж
Панель
9 080 000 
260 172 /м2
Новостройка,
IV-2026
1/25
1-к, 2-я Сухарная, 109/2 Показать на карте
Заельцовский район, Сухарная
Новосибирск
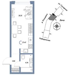
Продаётся студия в строящемся доме (Дом 1), срок сдачи: IV-кв. 2026, общей площадью 27.47 кв.м., на 21 этаже. Квартал ''Страна.Береговая'' - новый проект компании ''Страна Девелопмент'', расположенный в Заельцовском районе Новосибирска по адресу: ул. 2-я Сухарная, 109/2.
27 м2
21 / 28 этаж
Панель
  • Показать контакты
  • Добавить в избранное
27 м2
21 / 28 этаж
Панель
6 760 000 
246 087 /м2
Новостройка,
IV-2026
1/25
1-к, 2-я Сухарная, 109/2 Показать на карте
Заельцовский район, Сухарная
Новосибирск
Продаётся студия в строящемся доме (Дом 1), срок сдачи: IV-кв. 2026, общей площадью 32.69 кв.м., на 6 этаже. Квартал ''Страна.Береговая'' - новый проект компании ''Страна Девелопмент'', расположенный в Заельцовском районе Новосибирска по адресу: ул. 2-я Сухарная, 109/2.
32 м2
6 / 28 этаж
Панель
  • Показать контакты
  • Добавить в избранное
32 м2
6 / 28 этаж
Панель
7 840 000 
239 829 /м2
Новостройка,
IV-2026
1/25
1-к, 2-я Сухарная, 109/2 Показать на карте
Заельцовский район, Сухарная
Новосибирск
Продаётся студия в строящемся доме (Дом 1), срок сдачи: IV-кв. 2026, общей площадью 27.47 кв.м., на 20 этаже. Квартал ''Страна.Береговая'' - новый проект компании ''Страна Девелопмент'', расположенный в Заельцовском районе Новосибирска по адресу: ул. 2-я Сухарная, 109/2.
27 м2
20 / 28 этаж
Панель
  • Показать контакты
  • Добавить в избранное
27 м2
20 / 28 этаж
Панель
6 760 000 
246 087 /м2
Новостройка,
IV-2026
1/25
1-к, 2-я Сухарная, 109/2 Показать на карте
Заельцовский район, Сухарная
Новосибирск
Продаётся студия в строящемся доме (Дом 1), срок сдачи: IV-кв. 2026, общей площадью 24.6 кв.м., на 27 этаже. Квартал ''Страна.Береговая'' - новый проект компании ''Страна Девелопмент'', расположенный в Заельцовском районе Новосибирска по адресу: ул. 2-я Сухарная, 109/2.
24 м2
27 / 28 этаж
Панель
  • Показать контакты
  • Добавить в избранное
24 м2
27 / 28 этаж
Панель
6 700 000 
272 358 /м2
Новостройка,
IV-2026
1/25
1-к, 2-я Сухарная, 109/2 Показать на карте
Заельцовский район, Сухарная
Новосибирск
Продаётся студия в строящемся доме (Дом 1), срок сдачи: IV-кв. 2026, общей площадью 27.47 кв.м., на 23 этаже. Квартал ''Страна.Береговая'' - новый проект компании ''Страна Девелопмент'', расположенный в Заельцовском районе Новосибирска по адресу: ул. 2-я Сухарная, 109/2.
27 м2
23 / 28 этаж
Панель
  • Показать контакты
  • Добавить в избранное
27 м2
23 / 28 этаж
Панель
6 760 000 
246 087 /м2
Новостройка,
IV-2026
1/25
1-к, 2-я Сухарная, 109/2 Показать на карте
Заельцовский район, Сухарная
Новосибирск
Продаётся студия в строящемся доме (Дом 1), срок сдачи: IV-кв. 2026, общей площадью 27.47 кв.м., на 22 этаже. Квартал ''Страна.Береговая'' - новый проект компании ''Страна Девелопмент'', расположенный в Заельцовском районе Новосибирска по адресу: ул. 2-я Сухарная, 109/2.
27 м2
22 / 28 этаж
Панель
  • Показать контакты
  • Добавить в избранное
27 м2
22 / 28 этаж
Панель
6 760 000 
246 087 /м2
Новостройка,
IV-2026
1/21
1-к, 2-я Сухарная, 109/2 Показать на карте
Заельцовский район, Сухарная
Новосибирск
Продаётся студия в строящемся доме (Дом 1), срок сдачи: IV-кв. 2026, общей площадью 29.98 кв.м., на 17 этаже. Квартал ''Страна.Береговая'' - новый проект компании ''Страна Девелопмент'', расположенный в Заельцовском районе Новосибирска по адресу: ул. 2-я Сухарная, 109/2.
29 м2
17 / 28 этаж
Панель
  • Показать контакты
  • Добавить в избранное
29 м2
17 / 28 этаж
Панель
7 810 000 
260 507 /м2
Новостройка,
IV-2026
    1/29
    1-к, Сухарная, 96/3 Показать на карте
    Заельцовский район, Сухарная
    Новосибирск, Жилой комплекс «Сосны»
    Продам студию с хорошим, качественным ремонтом.Новый жилой комплекс ''Сосны'' находится рядом с Заельцовским парком.Развитая инфраструктура, рядом всё необходимое для комфортного проживания.В стоимость квартиры входит мебель и бытовая техника.Документы готовы к продажи.Быстрый выход на сделку.Бесплатно окажем помощь в получении ипотечного решения по самой низкой ставке.Звоните.
    До центра ~ 35 мин
    Приблизительное время на общественном транспорте до Площадь Ленина – 35 мин
    29 м2
    5 / 27 этаж
    Кирпич
    • Показать контакты
    • Добавить в избранное
    29 м2
    5 / 27 этаж
    Кирпич
    6 700 000 
    231 034 /м2
    Новостройка,
    дом сдан
      1/16
      1-к, Сухарная, 107/2 Показать на карте
      Заельцовский район, Сухарная
      Новосибирск, Бирюзовая жемчужина-4
      Принят задаток.В продаже студия. Дом сдан. Видовой этаж. Комплекс расположен в Заельцовском районе, в 2 минутах пешком от крупного парка. Район отличается развитой инфраструктурой: поблизости расположены детские сады, школы, кафе, поликлиники и магазины. В радиусе 10 минут на автомобиле находятся Новосибирский зоопарк и Дендропарк, станция метро Заельцовская — в 15 минутах. Территория комплекса располагает к активному образу жизни — во дворе предусмотрены спортивные площадки с тренажерами, скейт-парк, детские площадки и зоны для подвижных игр. Жителям также доступен фитнес-центр в соседнем доме. Безопасность обеспечивается системой видеонаблюдения, для владельцев автомобилей предусмотрен подземный паркинг.Дополнительно оплачивается комиссия с покупателя. Возможен обмен на вашу недвижимость. Звоните и записывайтесь на просмотр.
      До центра ~ 40 мин
      Приблизительное время на общественном транспорте до Площадь Ленина – 40 мин
      22 м2
      15 / 28 этаж
      Кирпич - монолит
      • Показать контакты
      • Добавить в избранное
      22 м2
      15 / 28 этаж
      Кирпич - монолит
      4 450 000 
      199 373 /м2
      Новостройка,
      дом сдан
        1/21
        1-к, 2-я Сухарная, 109/2 Показать на карте
        Заельцовский район, Сухарная
        Новосибирск
        Продаётся студия в строящемся доме (Дом 1), срок сдачи: IV-кв. 2026, общей площадью 29.98 кв.м., на 16 этаже. Квартал ''Страна.Береговая'' - новый проект компании ''Страна Девелопмент'', расположенный в Заельцовском районе Новосибирска по адресу: ул. 2-я Сухарная, 109/2.
        29 м2
        16 / 28 этаж
        Панель
        • Показать контакты
        • Добавить в избранное
        29 м2
        16 / 28 этаж
        Панель
        7 810 000 
        260 507 /м2
        Новостройка,
        IV-2026
        1/50
        1-к, Сухарная, 96/3 Показать на карте
        Заельцовский район, Сухарная
        Новосибирск, Жилой комплекс «Сосны»
        Продается уютная студия площадью 29 кв. м в новом кирпичном доме на Сухарной улице, 96/3 в Новосибирске. Квартира расположена на 7 этаже 25-этажного здания. Высота потолков составляет 2.7 метра, что придает пространству дополнительный объем. До станции метро ''Площадь Гарина-Михайловского'' всего 6 минут на автомобиле, что очень удобно для ежедневных поездок.Квартира без ремонта, что позволяет вам воплотить все ваши дизайнерские идеи и создать пространство своей мечты. Это студия с жилой площадью 17 кв. м и кухней 3 кв. м, которая идеально подойдет для одного человека или пары. В квартире есть совмещенный санузел и лоджия, окна выходят во двор, создавая уютную атмосферу.Дом построен в 2024 году из кирпича, что обеспечивает хорошую тепло- и звукоизоляцию. На территории дома предусмотрена наземная парковка. Для вашего удобства в доме работают два пассажирских и два грузовых лифта, поэтому можно легко добраться до своей квартиры даже с тяжелыми вещами.Рядом с домом находятся школы и детские сады, что будет особенно удобно для семей с детьми. В шаговой доступности множество магазинов, где можно приобрести все необходимые товары. Квартира продается по договору купли-продажи. Обременений нет, документы готовы к сделке. Возможна покупка в ипотеку.Приглашаем вас на просмотр этой замечательной студии. Записывайтесь на удобное для вас время, чтобы оценить все ее преимущества лично!дополнительно оплачивается комиссия 1.5% для всех.
        До центра ~ 35 мин
        Приблизительное время на общественном транспорте до Площадь Ленина – 35 мин
        29 м2
        7 / 25 этаж
        Кирпич
        • Показать контакты
        • Добавить в избранное
        29 м2
        7 / 25 этаж
        Кирпич
        4 700 000 
        162 069 /м2
        Новостройка,
        дом сдан
          • 1
          • 2
          • Следующая
          Распечатать
          Продажа квартир в новостройках в Новосибирске
          • по районам
          • Дзержинский район
          • Железнодорожный район
          • Заельцовский район
          • Калининский район
          • Кировский район
          • Ленинский район
          • Октябрьский район
          • Первомайский район
          • Советский район
          • Центральный район
          • по метро
          • Площадь Маркса
          • Студенческая
          • Речной вокзал
          • Октябрьская
          • Площадь Ленина
          • Красный проспект
          • Гагаринская
          • Заельцовская
          • Площадь Гарина-Михайловского
          • Сибирская
          • Маршала Покрышкина
          • Берёзовая Роща
          • Золотая Нива

          Вместе с этим также ищут:

          Продажа квартир в Новосибирске Продажа однокомнатных квартир в Новосибирске Продажа комнат в Новосибирске Продажа гаражей в Новосибирске Продажа вторички - квартиры в Новосибирске Квартиры в новостройках в Новосибирске

          🏠 Как купить квартиру в Новосибирске на N1?

          • ✔ В поисках объявления о продаже или покупке квартир в Новосибирске?
          • ✔ На N1 размещены 28 квартир
          • ✔ Чтобы купить или продать недвижимость, воспользуйтесь формой поиска, фильтрами или быстрыми ссылками.

          💸 Сколько стоит квартира в Новосибирске?

          • 🟢 Средняя цена продажи квартир - 6,73 млн ₽
          • 🟢 Минимальная стоимость за 1 м2: 237,83 тыс ₽

          📚 Какая площадь квартир?

          • Наибольшая площадь: 35 м²
          • Минимальная площадь: 22 м²