3-к, Чаплыгина, 3 стр. Показать на карте
Площадь Ленина, 11 мин
Новосибирск, Жилой комплекс «На Горького»
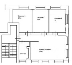
Продаётся 3-комнатная квартира в сданном доме (Дом 1), срок сдачи: I-кв. 2025, общей площадью 121.8 кв.м., на 13 этаже. Новый жилой комплекс ''На Горького'' от застройщика ГК Сибирьинвест расположен в г. Новосибирск в границах улиц Максима Горького, Революции и пр. Виктора Ващука.
До центра ~ 15 мин
Приблизительное время на общественном транспорте до Площадь Ленина – 15 мин
121 м2
13 / 28 этаж
Кирпич - монолит
- Показать контакты
- Добавить в избранное
121 м2
13 / 28 этаж
Кирпич - монолит
31 850 000
261 494 /м2
Новостройка,
дом сдан
дом сдан
