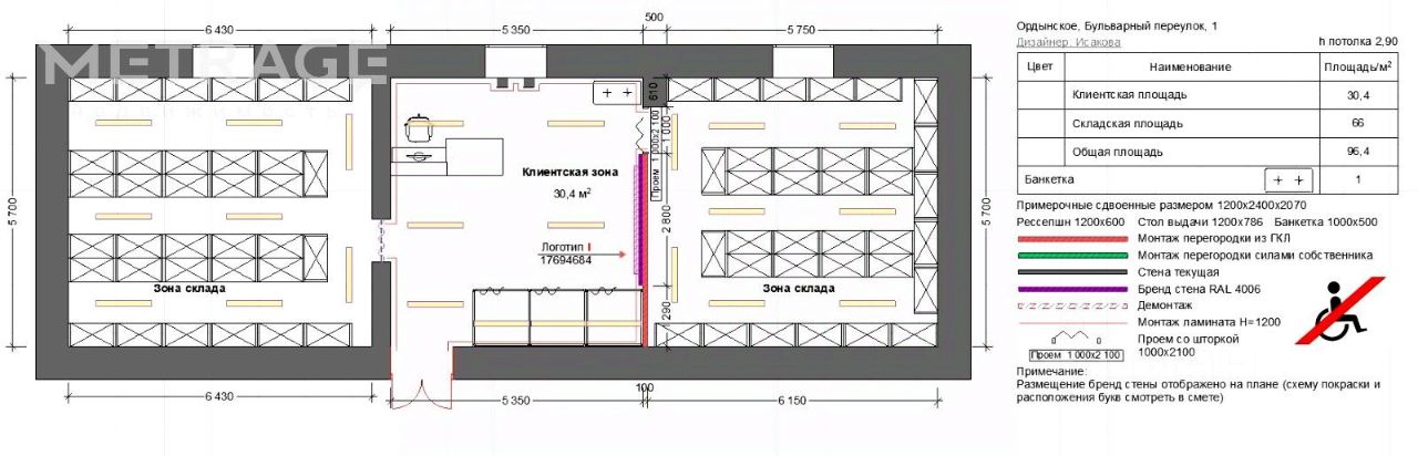
Универсальное помещение
Мира, 39 Показать на карте
Мира, 39 Показать на карте
Ордынское
Иной объект недвижимости, площадь 57,6 кв.м., назначение: Нежилое, количество этажей: 1, этаж: 1, адрес (местонахождение): Россия, обл Новосибирская, р-н Ордынский, рп Ордынское, ул Мира, дом 39, кадастровый (условный) номер: 54:20:010174:83,
57 м2
- Показать контакты
- Добавить в избранное
57 м2
1 268 949
22 030 /м2
