Таунхаус, Моисеенко, 20 Показать на карте
Первомайский район, Сто домов
Новосибирск
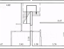
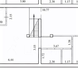
В продаже современный, стильный Таунхаус под отделку , расположенный в центре Первомайского района. Дом спроектирован и построен по всем строительным нормам, опытными специалистами с использованием дорогостоящих, современных, надежных строительных материалов. Фундамент дома основательный, ниже глубины промерзания земли, подвальных помещений нет. Перекрытия между этажами пустотные плиты, утепленные с двух сторон, чердачные перекрытия-комбинация плиты с деревом. Стены построены из газобетона 300 мм, утеплены базальтовым не горючим утеплителем, отштукатурен и обшит премиальной лиственницей, декоративный камень. Выполнена подземная система дождевой и ливневой канализации, благодаря которой на участке не задерживаются талые и дождевые воды. Установлены качественные пятикамерные стеклопакеты, входная дверь с функцией двойного терморазрыва, благодаря чему дверь не промерзает даже в сильные морозы. Благоустройство выполнялось по ландшафтному проекту: высажены пихты, декоративные травы, посеян газон. Забор изготавливался под заказ по дизайн-проекту, все швы заполимерены, благодаря чему срок службы в условия Сибирской зимы увеличен. В секции просторный гараж с автоматическими широкими воротами. Подъезд к дому асфальтирован.Главное преимущество - наличие всех центральных коммуникации: газ, вода, электричество и канализация. В секции свой газовый котел, электричество заведено необходима будет разводка на основании ваших пожеланий, сделаны выводы под канализацию.Рядом с домом расположен детский сад, остановка общественного транспорта в трех минутах, школа 10 минут. Лес. Лыжная база, спортивный клуб, бассейн ''Молодость'', магазины и все необходимое для комфортного проживания. Один взрослый собственник, НЕ ДОЛЯ !!! чистая продажа , без обременений ! Имеется вся техническая документация !
164 м2
2 этажа
- Показать контакты
- Добавить в избранное
164 м2
2 этажа
8 000 000
48 544 /м2
