Дом, 1-й Биатлонный переулок Показать на карте
Дзержинский район
Новосибирск
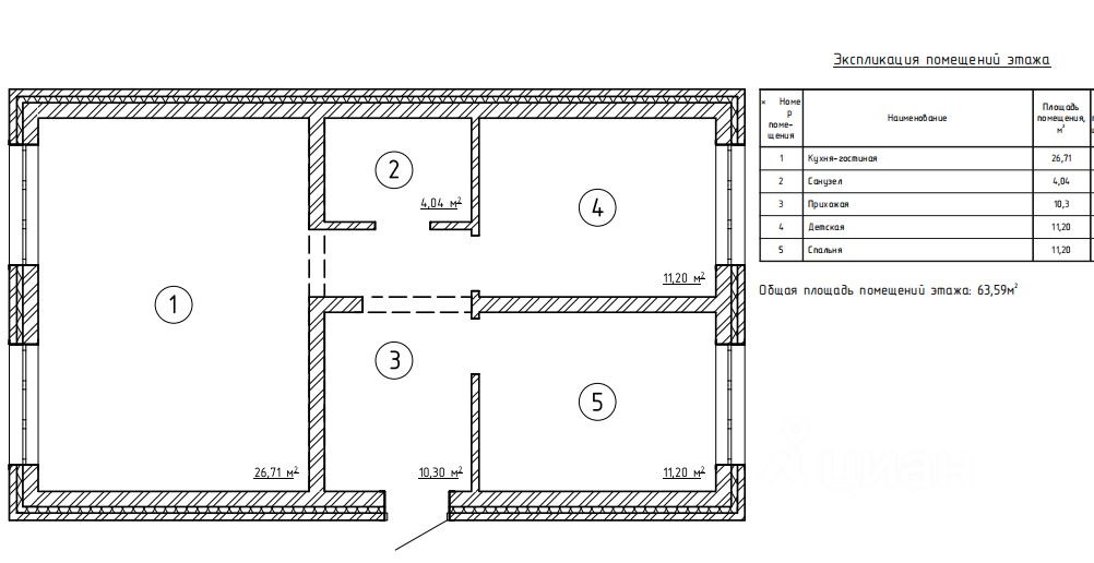
Код объекта: 2083779.Дом в городе по цене студии.Будет полностью готов в середине мая. При покупке за наличные, большая скидка.Уникальное предложение для тех, кто ищет собственный уголок в живописном районе Новосибирска! Продаётся уютный одноэтажный дом площадью 87 кв. м с четырьмя комнатами, идеально подходящий для комфортного проживания.Дом расположен в 1-м Биатлонном переулке, что обеспечивает удобный доступ ко всем необходимым инфраструктурным объектам города. Постройка выполнена из газобетонных блоков, кровля — из металлопрофиля, а высота потолков в 3 метра создаёт ощущение простора и свободы.Внутренняя планировка включает в себя 60 кв. м жилой площади, просторную кухню в 12 кв. м и два санузла — раздельный и совмещённый. Дом оснащён электричеством и водоснабжением, газ(по границе участка), а также имеет электрическое отопление, что гарантирует комфорт в любое время года. Есть возможно пристроить террасу.Участок площадью 5 соток с асфальтированным подъездом идеально подходит для дальнейшего благоустройства по вашему вкусу. Дом построен в 2026 году и готов к заселению — состояние пред чистовая отделка позволяет реализовать любые дизайнерские идеи.Не упустите шанс стать владельцем этого уютного дома в Новосибирске! Позвоните нам прямо сейчас, чтобы узнать больше и записаться на просмотр.Мы гарантируем безопасную сделку и юридическую поддержку нашим Клиентам. Поможем одобрить ипотеку с сниженной ставкой.
87 м2
1 этаж
- Показать контакты
- Добавить в избранное
87 м2
1 этаж
6 900 000
79 310 /м2
