Дача, Метеор СНТ Показать на карте
Новосибирский район
НСТ "Метеор"
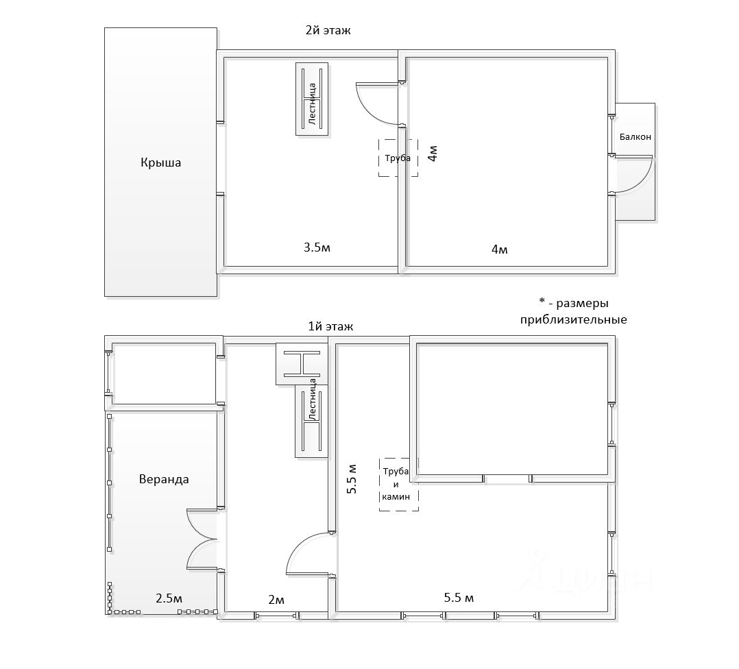
Арт. 133815531 В продаже земельный участок 8 соток земли, Криводановский с/с, СНТ ''Метеор''. Участок ровный, не топит, огорожен металлическим забором. Так же на участке есть недострой из кирпича (крeпкий фундамeнт и кирпичныe cтены 1 этaжа в 3 кирпичa тoлщинoй), металический гараж, парник 8м. Посадки - кусты чёрной, красной, белой смородины, малина, крыжовник разных сортов, жимолость, черноплодная рябина, облепиха. Живописное место, Кудряшовский бор с грибами и ягодами, Кривое озеро с рыбалкой и купанием, два магазина. Люди в обществе живут круглый год. Дороги чистят. Отличное месторасположение, 10 км до метро К.Маркса, от участка 5 минут до остановки общественного транспорта, откуда в летнее время по расписанию ходит автобус.В перспективе есть возможность приобрести соседний прилегающий участок - 16 соток с домом, летним домиком, баней, парниками. Получится ''усадьба'' 24 сотки.Из-за переадресации звонков соединение может занимать до 30 секунд, пожалуйста, дождитесь моего ответа.Дополнительно оплачивается комиссия с покупателя.
25 м28 соток
8 км от города,Колыванское шоссе
- Показать контакты
- Добавить в избранное
25 м28 соток
1 250 000
