Если цена в объявлении изменится, мы сразу сообщим вам об этом на электронную почту.
Нажимая «Подписаться», вы соглашаетесь с правилами.
продам дачу, Метеор СНТ2 500 000 ₽
24 фев
Дата публикации объявления
Обн. 26 мар
Дата обновления объявления
6
Количество просмотров (+ просмотры за сегодня)
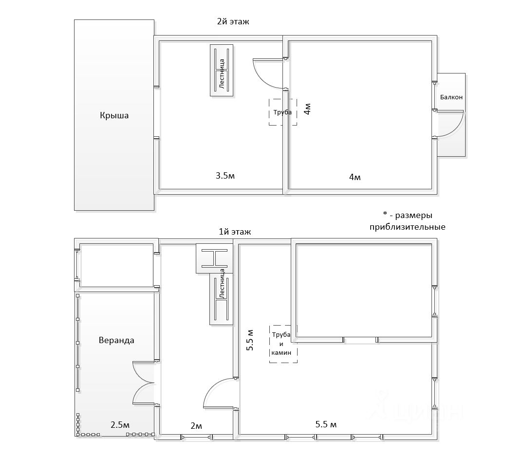
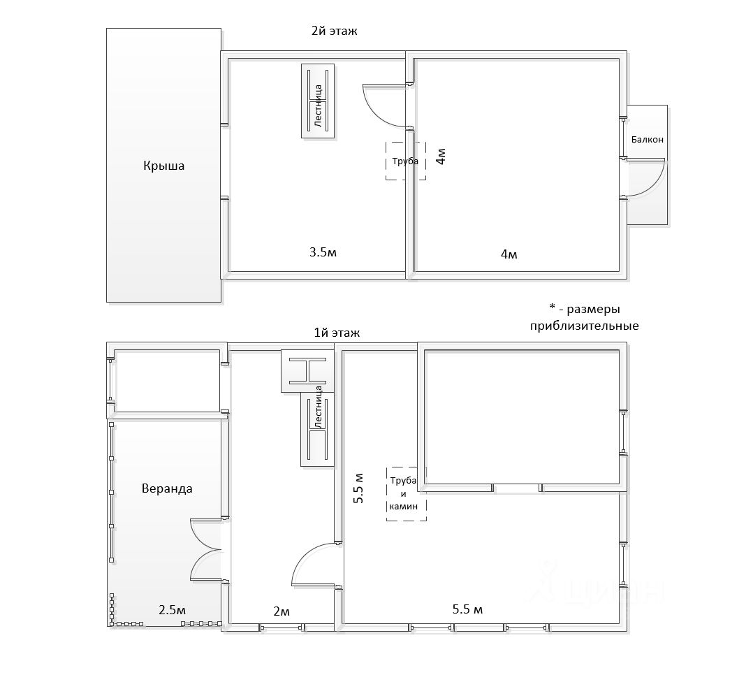
Описание участка
Площадь участка4,35 соток
Электроснабжениеесть
Водаесть
Постройки
Площадь дома71,25 м2
Год постройки2000
Теплицанет
Описание дачного общества
Доступ зимойесть
УЮТНАЯ ДАЧА ДЛЯ КОМФОРТНОГО ОТДЫХА!!! СНТ ''МЕТЕОР'' В ЭКОЛОГИЧЕСКИ ЧИСТОМ КУДРЯШОВСКОМ БОРУ !!! Рядом большое озеро! ДОМ 2000 ГОДА ПОСТРОЙКИ!!! Участок 4 сотки - ровный, газон с бетонными дорожками. На участке своя скважина. БОЛЬШОЙ ДОМ 2-х этажный 7,5*5,5 из бруса15*15. Фундамент надёжный, сухой. Кровля -металлопрофиль. В доме 2 этажа. 1 этаж: веранда, прихожая, 2 большие комнаты (большая кухня-гостиная с камином) и спальня. 2-ой этаж: просторная комната 16 м2 с балконом. Большой металлический ГАРАЖ 4 на 6 метров . Новые хоз.постройки. Оборудована мангальная зона. Есть теплица. В доме круглый год свет, вода чистая со скважины. Забор по периметру. Дорогу круглый год чистят, хороший проезд зимой.
УЮТНАЯ ДАЧА ДЛЯ КОМФОРТНОГО ОТДЫХА!!! СНТ ''МЕТЕОР'' В ЭКОЛОГИЧЕСКИ ЧИСТОМ КУДРЯШОВСКОМ БОРУ !!! Рядом большое озеро! ДОМ 2000 ГОДА ПОСТРОЙКИ!!! Участок 4 сотки - ровный, газон с бетонными дорожками. На участке своя скважина. БОЛЬШОЙ ДОМ 2-х этажный 7,5*5,5 из бруса15*15. Фундамент надёжный, сухой. Кровля -металлопрофиль. В доме 2 этажа. 1 этаж: веранда, прихожая, 2 большие комнаты (большая кухня-гостиная с камином) и спальня. 2-ой этаж: просторная комната 16 м2 с балконом. Большой металлический ГАРАЖ 4 на 6 метров . Новые хоз.постройки. Оборудована мангальная зона. Есть теплица. В доме круглый год свет, вода чистая со скважины. Забор по периметру. Дорогу круглый год чистят, хороший проезд зимой. В 5 метрах сосновый бор, озеро- в150 метрах . Ходят несколько автобусов в СНТ. Есть колхозный рынок, 2 магазина. Земля в собственности. Межевание сделано. Чистая продажа. ПРОСМОТР ПО ДОГОВОРЕННОСТИ.