Если цена в объявлении изменится, мы сразу сообщим вам об этом на электронную почту.
Нажимая «Подписаться», вы соглашаетесь с правилами.
продам коттедж, Мичуринец С/О, 2317 500 000 ₽
16 фев
Дата публикации объявления
Обн. сегодня
Дата обновления объявления
11
Количество просмотров (+ просмотры за сегодня)
105 485 ₽/м²
Чистая продажа
Термин "Чистая продажа" означает, что в квартире никто не прописан или
есть куда выписаться и вывезти вещи. Это лучший вариант для покупателя.
Вероятность срыва сделки минимальна.
Этажей2
Площадь участка7,4 соток
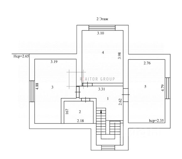
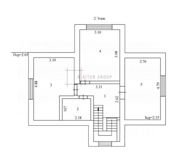
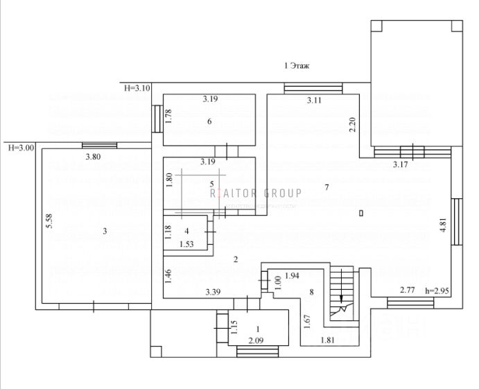
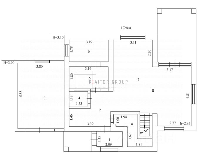
Общая площадь165,9 м2
ЭлектричествоЕсть
Газоснабжениецентральное
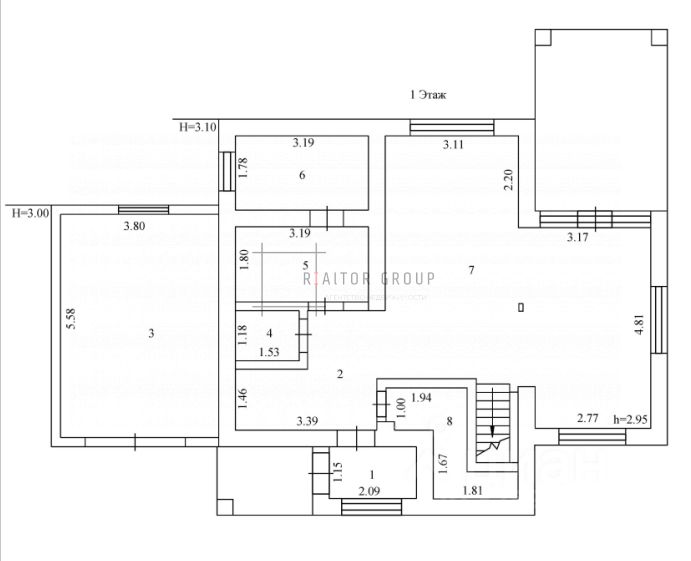
Арт. 83090064 В продаже уютный двухэтажный коттедж в 5 минутах от пл. Маркса 2019 года постройки. Дом находится в центре всей транспортной инфраструктуры левого берега.
В пешей доступности вся необходимая инфраструктура: магазины, торговые центры (Сан-Сити, Версаль, Калейдоскоп, GRANI, Гранит), аптеки, школы, гимназии, колледж, детские сады, НГТУ, СибУПК, НОККиИ, Новосибирское училище (колледж) олимпийского резерва.
Арт. 83090064 В продаже уютный двухэтажный коттедж в 5 минутах от пл. Маркса 2019 года постройки. Дом находится в центре всей транспортной инфраструктуры левого берега.
В пешей доступности вся необходимая инфраструктура: магазины, торговые центры (Сан-Сити, Версаль, Калейдоскоп, GRANI, Гранит), аптеки, школы, гимназии, колледж, детские сады, НГТУ, СибУПК, НОККиИ, Новосибирское училище (колледж) олимпийского резерва.
Общая площадь дома составляет 165,9 м2, из которых 21 м2 это теплый гараж
Дом обогревает надежный электрокотел на 12кВт Собственная скважина, с тройной системой фильтрации Теплый пол Большие окна Интерьерные радиаторы в том числе встроенные в пол Система кондиционирования Своя терраса с выходом из дома Гараж с автоматическими воротами Автоматические ворота на въезде Видеонаблюдение 2 въезда на территорию дома с разных сторон Периметр дома полностью огорожен Интернет
Участок ИЖС на 7,5 соток под дальнейший проект созданный ландшафтным дизайнером с благоустройством и озеленением. Во всем доме сделан современный ремонт, -Новая мебель и техника остается новым хозяевам. Заезжай и живи! -Все готово для безопасного и комфортного проживания