Если цена в объявлении изменится, мы сразу сообщим вам об этом на электронную почту.
Нажимая «Подписаться», вы соглашаетесь с правилами.
продам коттедж, Маклая, 57 700 000 ₽
7 янв
Дата публикации объявления
Обн. 6 мая
Дата обновления объявления
20
Количество просмотров (+ просмотры за сегодня)
60 535 ₽/м²
Чистая продажа
Термин "Чистая продажа" означает, что в квартире никто не прописан или
есть куда выписаться и вывезти вещи. Это лучший вариант для покупателя.
Вероятность срыва сделки минимальна.
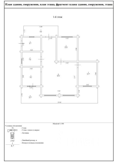
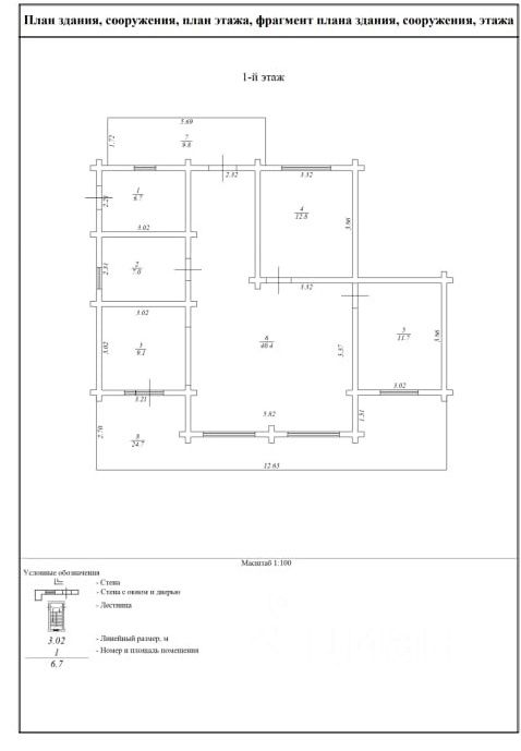
Этажей1
Площадь участка10 соток
Общая площадь127,2 м2
Материал домадерево
ЭлектричествоЕсть
Газоснабжениецентральное
В продаже стильный, современный дом из бруса, 2024 года постройки. Дом готов к проживанию, требуется косметический ремонт по вкусу нового собственника.
Все коммуникации заведены в дом и подключены, все функционирует.
Отопление: газ, а так же есть резервный электрокотел. Установлены радиаторы.
Водоснабжение: центральное
Канализация: септик
Электричество: сделана разводка, установлены розетки и выключатели.
В санузле установлен унитаз, сделана разводка коммуникаций для кухни.
В доме две спальни и большая гостиная с кухонной зоной, есть летняя терасса.
Дом расположен в коттеджном посёлке комфорт-класса Порт Пичуги. Рядом с домом есть продуктовый магазин.
В продаже стильный, современный дом из бруса, 2024 года постройки. Дом готов к проживанию, требуется косметический ремонт по вкусу нового собственника.
Все коммуникации заведены в дом и подключены, все функционирует.
Отопление: газ, а так же есть резервный электрокотел. Установлены радиаторы.
Водоснабжение: центральное
Канализация: септик
Электричество: сделана разводка, установлены розетки и выключатели.
В санузле установлен унитаз, сделана разводка коммуникаций для кухни.
В доме две спальни и большая гостиная с кухонной зоной, есть летняя терасса.
Дом расположен в коттеджном посёлке комфорт-класса Порт Пичуги. Рядом с домом есть продуктовый магазин. В поселке оборудована детская и спотивные площадки, для летнего отдыха есть пляж, где разместились лежаки и зонтики, кафе, в летнее время организованы киносеансы.
Для любителей рыбалки на территории поселка есть озеро, где водится рыба.
В поселке соседи проживают круглогодично, в с. Новопичугово есть школа и детский сад.