сдам торговые площади, Красный проспект, 182/385 000 ₽ в месяц
18 дек
Дата публикации объявления
Обн. 18 дек
Дата обновления объявления
1
Количество просмотров (+ просмотры за сегодня)
1499 ₽/м² в месяц
Параметры
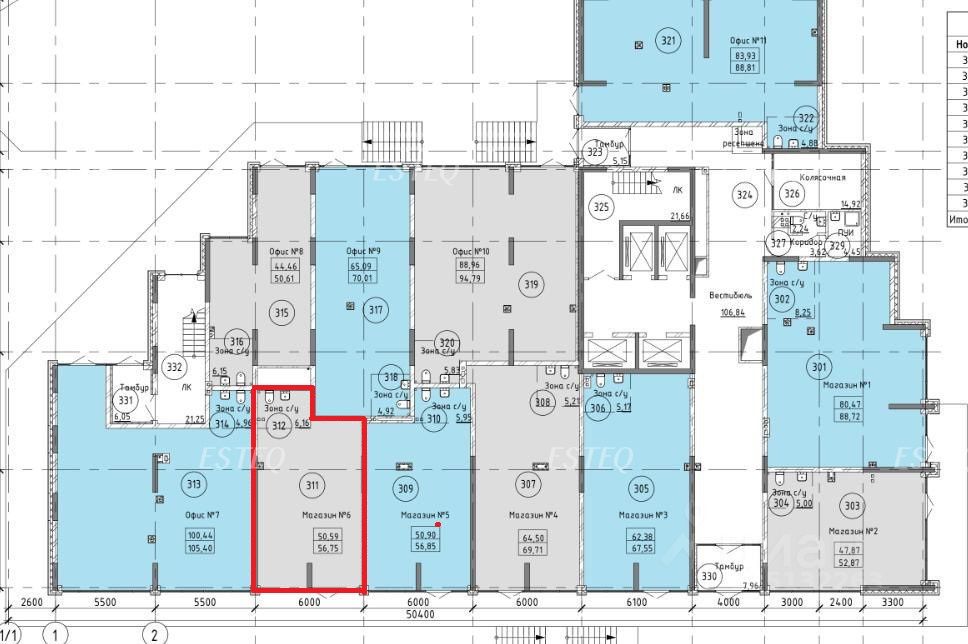
Общая площадь56,7 м2
Этаж1
Отдельный входесть
Предлагается к аренде помещение в ЖК Тайм Парк в центре города по адресу: ул. Красный Проспект, д. 180.
(4 минуты ходьбы от метро Заельцовская).
ОФИЦИАЛЬНЫЙ ПРЕДСТАВИТЕЛЬ СОБСТВЕННИКА!
Технические характеристики: - Общая площадь 56,7 м2, - 1 этаж, - Отдельная входная группа, - Витражное остекление - Помещение под отделку, - Электрическая мощность 20 кВт, - Помещение располагается практически на первой линии у дороги, вблизи улицы Красный Проспект, что обеспечивает большой поток потенциальных клиентов.
Коммерческие условия: - Стоимость арендной платы составляет 85 000 рублей в месяц, - Дополнительно оплачиваются все коммунальные платежи, - Обеспечительный платеж в размере одного месяца аренды.
Предлагается к аренде помещение в ЖК Тайм Парк в центре города по адресу: ул. Красный Проспект, д. 180.
(4 минуты ходьбы от метро Заельцовская).
ОФИЦИАЛЬНЫЙ ПРЕДСТАВИТЕЛЬ СОБСТВЕННИКА!
Технические характеристики: - Общая площадь 56,7 м2, - 1 этаж, - Отдельная входная группа, - Витражное остекление - Помещение под отделку, - Электрическая мощность 20 кВт, - Помещение располагается практически на первой линии у дороги, вблизи улицы Красный Проспект, что обеспечивает большой поток потенциальных клиентов.
Коммерческие условия: - Стоимость арендной платы составляет 85 000 рублей в месяц, - Дополнительно оплачиваются все коммунальные платежи, - Обеспечительный платеж в размере одного месяца аренды. - Арендные каникулы