Если цена в объявлении изменится, мы сразу сообщим вам об этом на электронную почту.
Нажимая «Подписаться», вы соглашаетесь с правилами.
продам дом, Сигма КП, 30921 000 000 ₽
10 дек
Дата публикации объявления
Обн. сегодня
Дата обновления объявления
72
Количество просмотров (+ просмотры за сегодня)
96 730 ₽/м²
Чистая продажа
Термин "Чистая продажа" означает, что в квартире никто не прописан или
есть куда выписаться и вывезти вещи. Это лучший вариант для покупателя.
Вероятность срыва сделки минимальна.
Площадь участка9 соток
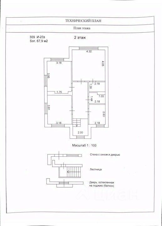
Общая площадь217,1 м2
Материал домакирпич
Предлагается к продаже двухэтажный коттедж с цоколем в ЖСК Сигма, расположенный в 3 км от Верхней зоны Академгородка. Общая площадь дома 217 кв.м., первый этаж-76,7 кв.м., второй этаж - 68 кв.м., цоколь - 72,5 кв.м. Н апервом этаже расположенна просторная кухня-гостиная площадью 35 кв.м., кабинет и санузел. На втором этаже три спальни и раздельный санузел с гардеробной.
Предлагается к продаже двухэтажный коттедж с цоколем в ЖСК Сигма, расположенный в 3 км от Верхней зоны Академгородка. Общая площадь дома 217 кв.м., первый этаж-76,7 кв.м., второй этаж - 68 кв.м., цоколь - 72,5 кв.м. Н апервом этаже расположенна просторная кухня-гостиная площадью 35 кв.м., кабинет и санузел. На втором этаже три спальни и раздельный санузел с гардеробной. Выполнена внутрення отделка и оснащение дома, на всех этажах установлены радиаторы: 1 этаж-пол керамогранит с подогревом по всему периметру этажа, кафель в санузле, санфаянс, потолки и стены полностью готовы, высота потолка 3 м, 2 этаж- пол ламинат, санузел выложен кафелем, установлена ванна, санузел раздельный, высота потолка 2,7 м, цоколь - проведены все внутренние работы, высота потолка 2,2 м. (помещение можно оборудовать под спортивный зал, мастерскую, подсобные помещения). Материалы стен кирпич, утеплитель и вент.фасады производства Японии (Knew). К дому примыкают два парковочных места для автомобилей с крытым навесом. Все коммуникации центральные: газ, холодное водоснабжение, канализация уже подключены, оплачивать их подключение не нужно. Отопление и горячее водоснабжение от газового котла. Преимущественные отличия данного дома в том, что это не просто коробка, а коттедж с выполненными внутренними отделочными работами и оборудован встроенным кухонным гарнитуром, что позволит въехать в дом сразу после покупки. Новому владельцу останется только установить межкомнатные двери и установить новую лестницу на второй этаж. Заезжай и живи! Все документы готовы, земельный участок и дом в собственности. Возможна сельская ипотека. Отличный дом в живописном месте ждет своего нового хозяина! Звоните, и будем смотреть! Преобретая данный объект через наше Агентство в подарок вы получаете сертификат на сумму 50000 рублей на покупку мебели и бытовой техники в известный гипермаркет Мебели. Дополнительно оплачивается комиссия с покупателя.