Арт. 89174989. Продажа земельного участка 4,8 Га под склад/производство в г. Новосибирске, в Калининском районе, ул. Солидарности
Месторасположение: - Участок расположен в черте города (район Пашино) - Первая линия от дороги - 100 метров до остановки общественного трансопрта
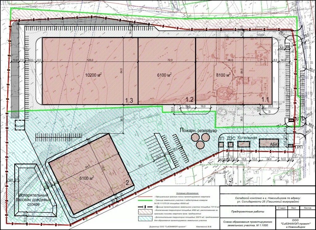
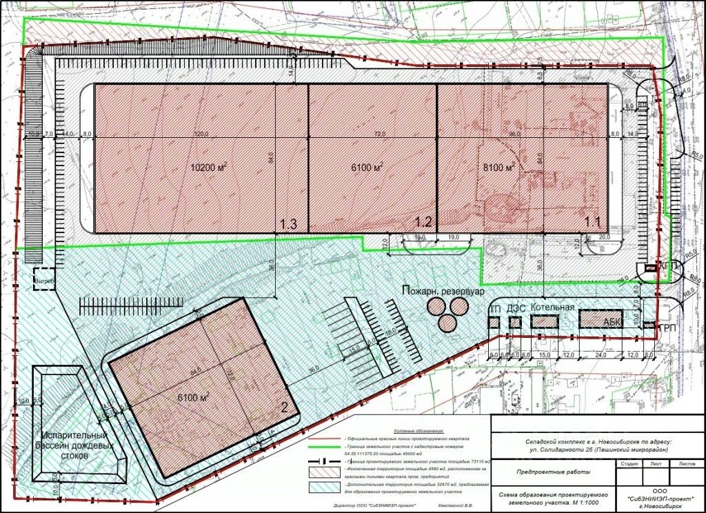
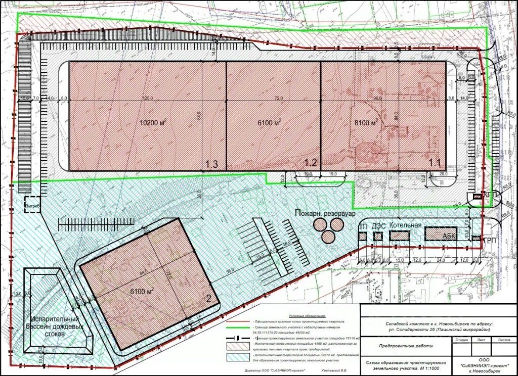
Характеристики участка: - общая площадь 48 000 кв.м. (4,8 Га), есть потенциал увеличить до 78 000 кв.м. (7,8 Га) - назначение - земли населенных пунктов - зона - П 1 (Зона производственных объектов с различными нормативами воздействия на окружающую среду) - вид разрешенного использование - для строительства нового цеха (можно изменить на Склады).
Арт. 89174989. Продажа земельного участка 4,8 Га под склад/производство в г. Новосибирске, в Калининском районе, ул. Солидарности
Месторасположение: - Участок расположен в черте города (район Пашино) - Первая линия от дороги - 100 метров до остановки общественного трансопрта
Характеристики участка: - общая площадь 48 000 кв.м. (4,8 Га), есть потенциал увеличить до 78 000 кв.м. (7,8 Га) - назначение - земли населенных пунктов - зона - П 1 (Зона производственных объектов с различными нормативами воздействия на окружающую среду) - вид разрешенного использование - для строительства нового цеха (можно изменить на Склады). - участок ровный - форма собственности - собственность - деление от 1 Га
Характеристики объекта (предварительная посдака): - Производственно складской комплекс класса ''А'' (есть концепт) - общая площадь по полу - 30 500 кв.м. - рабочая высота потолка 12,5 метров
Технические условия: - Электроснабжение - 960 кВт (оформлено) - ГРП (газ) на участка - 193 м3/час (можно увеличить) - Получены ТУ на подключение к центральному водоснабжению и канализации.
Коммерческие условия: - Схема сделки - прямая продажа - Собственник юридическое лицо, общая система налогооблажения - Стоимость объекта - 220 000 000 рублей НДС не предусмотрен.