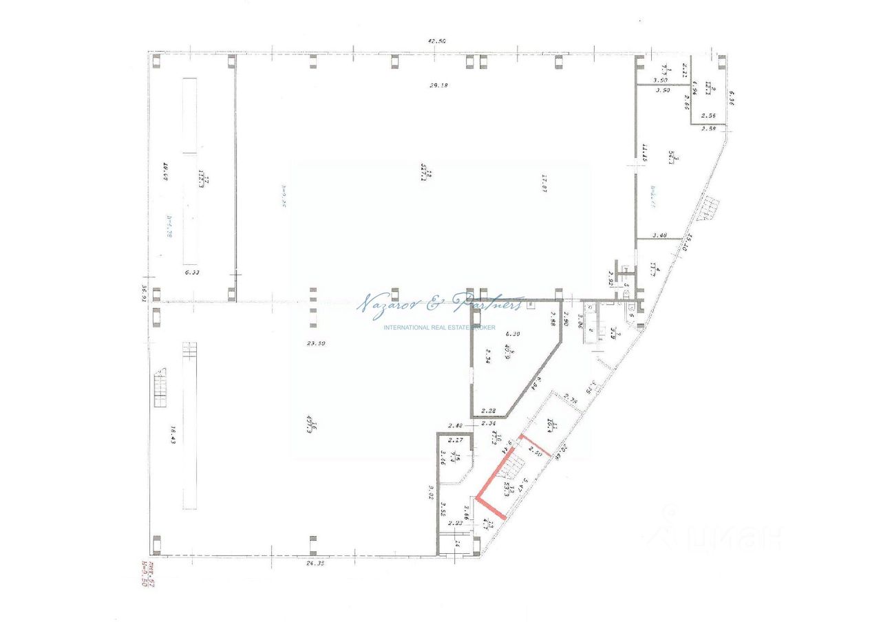
Аренда производственно-складского помещения класса ''В'' площадью 1629 кв.м., в Кировском районе, на 2 линии ул. Петухова
Помещение состоит из трех смежных производственно-складских помещений и административно-бытового блока с постом охраны.
Характеристики:
- Класс В, общая площадь 1629 кв.м, в том числе АБК 591,8 кв.м
Производственно-складское помещение - 407,9 кв.м
Производственно-складское помещение - 517,1 кв.м
Производственно-складское помещение - 112,3 кв.м
Административно-бытовой блок - 591,8 кв.м (3 этажа)
- Рабочая высота 9 м.
- Тип пола беспылевой, пол на уровне 0, нагрузка 7 т.
- Количество ворот 10, ворота секционные,
- Вытяжная вентиляция
- Кран балка 5т.
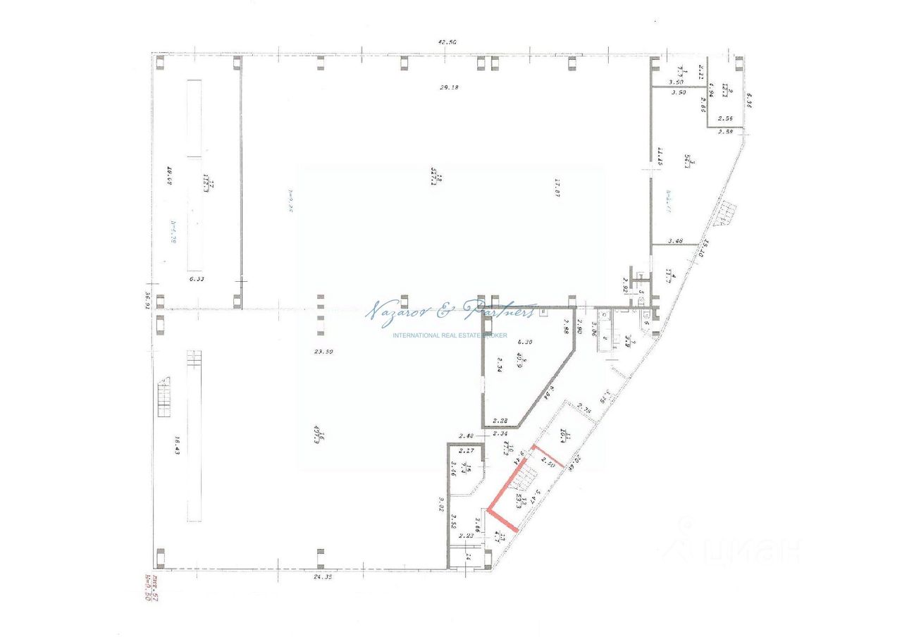
Аренда производственно-складского помещения класса ''В'' площадью 1629 кв.м., в Кировском районе, на 2 линии ул. Петухова
Помещение состоит из трех смежных производственно-складских помещений и административно-бытового блока с постом охраны.
Характеристики:
- Класс В, общая площадь 1629 кв.м, в том числе АБК 591,8 кв.м
Производственно-складское помещение - 407,9 кв.м
Производственно-складское помещение - 517,1 кв.м
Производственно-складское помещение - 112,3 кв.м
Административно-бытовой блок - 591,8 кв.м (3 этажа)
- Рабочая высота 9 м.
- Тип пола беспылевой, пол на уровне 0, нагрузка 7 т.
- Количество ворот 10, ворота секционные,
- Вытяжная вентиляция
- Кран балка 5т.
- Система контроля доступа, видеонаблюдение, интернет
Технические условия:
- Электроснабжение -
- Теплоснабжение -
- Водоснабжение - центральное
- Водоотведение - центральное
- Телекоммуникации (интернет, телефония)
Коммерческие условия:
- Схема сделки - прямая аренда
- Собственник юридическое лицо, общая система налогообложения
- Базовая ставка 650 руб. кв.м. (без учета НДС)
- Операционные расходы 100 руб. кв. м.
- Коммунальные платежи оплачиваются отдельно
- Индексация предмет переговоров
- Депозит 2 месяца