Если цена в объявлении изменится, мы сразу сообщим вам об этом на электронную почту.
Нажимая «Подписаться», вы соглашаетесь с правилами.
продам дом, Нестерова, 1718 000 000 ₽
9 июля 2025
Дата публикации объявления
Обн. 9 июля 2025
Дата обновления объявления
30
Количество просмотров (+ просмотры за сегодня)
114 650 ₽/м²
Чистая продажа
Термин "Чистая продажа" означает, что в квартире никто не прописан или
есть куда выписаться и вывезти вещи. Это лучший вариант для покупателя.
Вероятность срыва сделки минимальна.
Этажей1
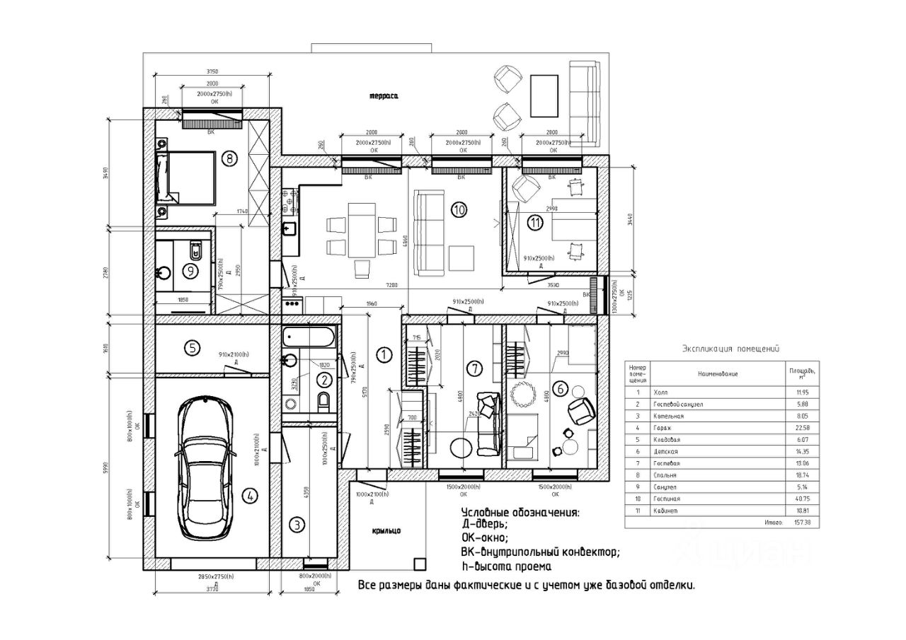
Площадь участка6,6 соток
Общая площадь157 м2
ЭлектричествоЕсть
Газоснабжениецентральное
Все планировки выполнены с минимально необходимой и достаточной для комфорта площадью, бесполезные площади в доме отсутствуют. Планировки создавались лично, для себя. Дом выполнен в 2-ух уровнях по высоте с целью выделения объема гостиной как основного помещения данного дома, где будет по большей части и концентрироваться все жители дома, а также гости. Материал вертикальных несущих конструкций: - наружные стены из газобетона толщиной 400 мм, - внутренние стены из газобетона толщиной 300 мм, Перегородки выполнены из газобетона толщиной 150 мм. Весь газобетон производства Сибит. Плиты перекрытия - пустотные из железобетона, устроенные по обвязочному армопоясу. Фундамент перекрестный ленточный фундамент из железобетона.
Все планировки выполнены с минимально необходимой и достаточной для комфорта площадью, бесполезные площади в доме отсутствуют. Планировки создавались лично, для себя. Дом выполнен в 2-ух уровнях по высоте с целью выделения объема гостиной как основного помещения данного дома, где будет по большей части и концентрироваться все жители дома, а также гости. Материал вертикальных несущих конструкций: - наружные стены из газобетона толщиной 400 мм, - внутренние стены из газобетона толщиной 300 мм, Перегородки выполнены из газобетона толщиной 150 мм. Весь газобетон производства Сибит. Плиты перекрытия - пустотные из железобетона, устроенные по обвязочному армопоясу. Фундамент перекрестный ленточный фундамент из железобетона. Полы по грунту, многослойные с верхним слоем из бетона (под устройство теплых полов) и выравнивающей стяжкой из наливных полов под устройство чистого пола. В проекте инженерных систем заложены следующие решения (данный проект передается при покупке дома и возможно рассмотрение при осмотре дома): - система принудительной вентиляции (с системой VAV и использованием датчиков СО2), - система кондиционирования, - система увлажнения с устройством форсунок и датчиков, - система протечек. На данный момент из инженерных систем выполнено: - полностью запитан дом в части электрики для всех бытовых нужд, в том числе выведены хвосты наружу под освещение фасадов, - смонтирована система увлажнения (основная трасса и форсунки) и хвосты закинуты в котельную под голову, - полностью протянут и функционирует интернет (Электронный город) по дому и подключен через роутер и маршрутизатор в котельной, - полностью протянута система VAV от датчиков в котельную, - смонтирована система водоснабжения во все мокрые точки (нагрев воды осуществляется через бойлер в 200 л, находящийся в котельной), - смонтирована система канализации с устройством наружных колодцев (включая переливной колодец), - полностью смонтирована котельная по проекту (за исключением головы под систему увлажнения). Имеется также резервный насос под систему вентиляции. Вся обвязка выполнена из стали/меди, - полностью смонтирована и функционирует система газоснабжения (основной котел Baxi Luna-3 на 24 кВт и резервный электрический котел Zota на 9 кВт), - смонтированы радиаторы отопления в котельной, гараже и в кладовой, - полностью смонтирована и функционирует система отопления (теплые полы) во всех помещениях. В гараже и кладовой теплые полы не предусмотрены. Теплые полы выполнены из труб uponor uni pipe plus 16х2.0, - смонтирована обвязка под радиаторные группы для помещений детской, гостевой, котельной, гаража и кладовой. Также выполнена обвязка под внутрипольные конвекторы в спальне, гостиной и кабинете. Вся обвязка выполнена из трубы rehau rautitan pink 20х.2.8 Все управление системой отопления, включая нагрев воды в бойлере, осуществляется посредством автоматического регулятора Zont Climatic, который уже установлен и функционирует. Управление может производиться через приложение.