4-к, Аэропорт, 27 стр. Показать на карте
Заельцовский район, Городской аэропорт
Новосибирск, Авиатор
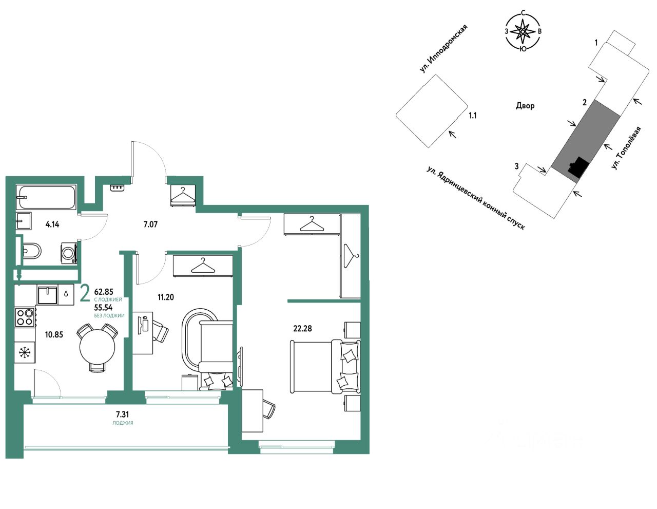
Четырехкомнатная квартира с предчистовой отделкой в Квартал ''Авиатор'' на 15 этаже. Многоуровневая квартира, на каждом этаже вы можете выделить различные функциональные зоны. Общая площадь: 120.08 кв.м., жилая: 46.2 кв.м., площадь просторной кухни-гостиной: 29.4 кв.м. Квартира угловая, очень светлая, естественная вентиляция при открытии окон. В квартире две лоджии, один совмещенный и один раздельный санузел. Терраса представляет собой роскошную зону отдыха, где вы на свой вкус можете создать атмосферу комфорта и уюта. Высота потолков 2.82 м. Дом монолитный, черырехподъездный, переменной этажности, от 9 до 15 этажей. Квартира находится в 3-й секции высотой 15 этажей в корпусе Дом 3. На этаже 7 квартир. В подъезде 1 пассажирский и 1 грузовой лифт. Окончание строительства - 1 квартал 2026 года. Оформление сделки по договору долевого участия. Двухуровневая квартира с кухней-гостиной и четырьмя спальнями в квартале Авиатор. Особенности планировки: второй санузел, гардеробная, двухуровневая, лоджия, мастер-спальня, предчистовая отделка, разнесённые спальни, терраса на крыше. квартиры в нашей базе: АВТ03-Ж3.15.6. Квартал ''Авиатор'' расположен на пересечении улицы Аэропорт и Мочищенского шоссе, рядом с остановками ''Байкальская'', ''Жуковского'' и ''Городской аэропорт'', в 7 минутах ходьбы от сквера им. Чаплыгина и 10 минутах от крупной транспортной магистрали — Красного проспекта. До станции метро ''Заельцовская'' и площади ''Калинина'' — около 10 минут на автомобиле. Квартал связан выездами с Мочищенским шоссе, улицами Жуковского, Аэропорт и Георгия Колонды. Сформированная инфраструктура локации — школы, детские сады, магазины, спортивный стадион — делают жизнь в квартале комфортной. Квартал состоит из восьми домов. Вдоль улицы Аэропорт расположено 6-18-этажное здание с видовыми квартирами. Оно защищает внутреннее пространство от шума и пыли. В центре — четыре 7-9-этажные урбан-виллы. Для них характерны увеличенная площадь квартир, повышенная приватность и малое соседство (30 — 40 квартир). Завершают комплекс два полузакрытых блока высотой 8-16 этажей с фасадами фисташкового цвета и подземной парковкой. Благодаря переменной высотности застройка приобретает человеческий масштаб, во дворы проникает больше света, а число квартир, из которых открывается красивый вид, значительно увеличивается. Первые этажи вдоль Мочищенского шоссе и улицы Аэропорт мы отдали под полезные сервисы и магазины. Активный фронт позволил интегрировать квартал в городской контекст. На территории ''Авиатора'' расположен многофункциональный спортивный комплекс с открытым амфитеатром, который станет центром притяжения всего района. Если Вы - риелтор, пожалуйста, за более подробной информацией обратитесь на горячую линию на нашем официальном сайте. #z5M74I
До центра ~ 30 мин
Приблизительное время на общественном транспорте до Площадь Ленина – 30 мин
120 м2
15 / 15 этаж
Монолит
- Показать контакты
- Добавить в избранное
120 м2
15 / 15 этаж
Монолит
22 600 000
188 208 /м2
Новостройка,
II-2026
II-2026
