Если цена в объявлении изменится, мы сразу сообщим вам об этом на электронную почту.
Нажимая «Подписаться», вы соглашаетесь с правилами.
продам коттедж, Лазурная, 1816 000 000 ₽
4 окт 2023
Дата публикации объявления
Обн. 17 авг
Дата обновления объявления
74
Количество просмотров (+ просмотры за сегодня)
80 000 ₽/м²
Чистая продажа
Термин "Чистая продажа" означает, что в квартире никто не прописан или
есть куда выписаться и вывезти вещи. Это лучший вариант для покупателя.
Вероятность срыва сделки минимальна.
Этажей2
Площадь участка6 соток
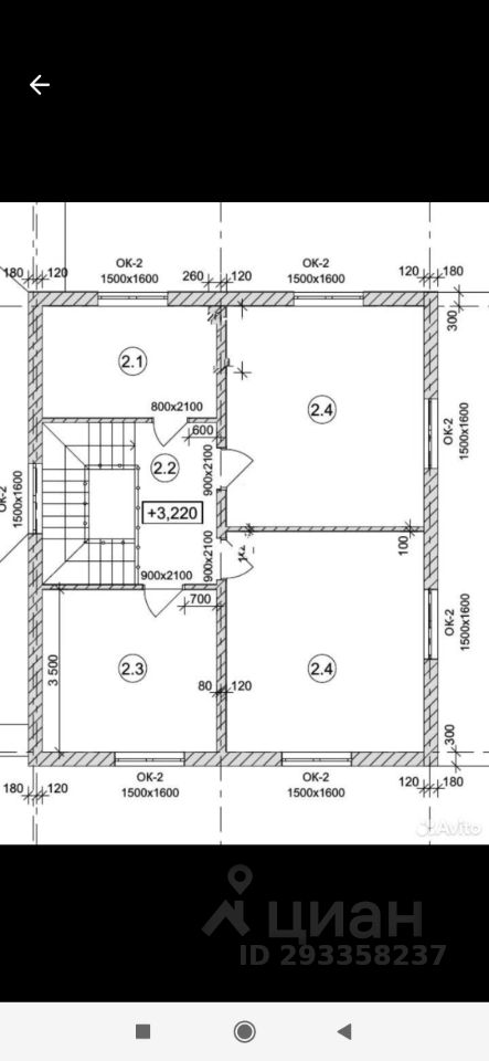
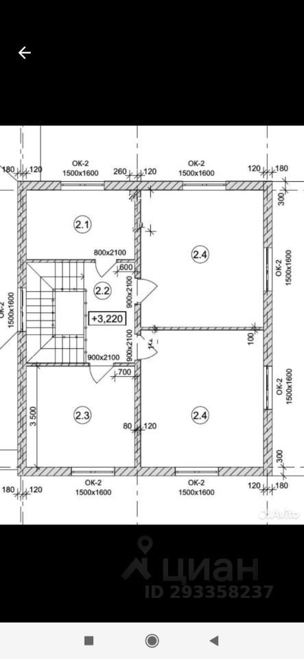
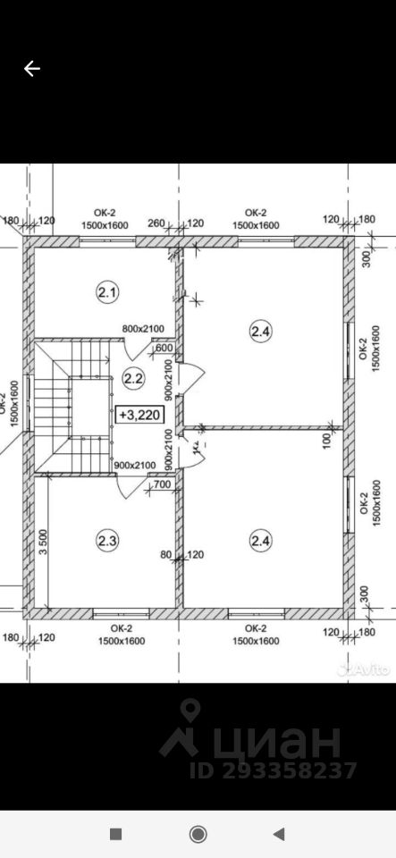
Общая площадь200 м2
ЭлектричествоЕсть
Газоснабжениецентральное
Продам дом из сибита по индивидуальному проекту, 2 полноценных этажа, высота потолков 3 метра, ленточный фундамент, 2 армопояса. Газовое отопление, водяные полы, ЦЕНТРАЛЬНОЕ водоснабжение, септик, электричество 380 Вт. Один собственник. На первом этаже: в санузле кафель, раковина, ванная, гигиенический душ, инсталляция, подвесной унитаз, кафель по всему полу первого этажа, стены краска, лестница из лиственницы на металлокаркасе. Второй этаж стены краска, отопление радиаторы, пол ламинат, санузел в кафеле, душ, раковина, инсталляция с подвесным унитазом, встроенные шкафы икеа пакс в детских. Отапливаемый гараж на две машины со смотровой ямой и санузлом. Яма и погреб выложены кирпичом.
Продам дом из сибита по индивидуальному проекту, 2 полноценных этажа, высота потолков 3 метра, ленточный фундамент, 2 армопояса. Газовое отопление, водяные полы, ЦЕНТРАЛЬНОЕ водоснабжение, септик, электричество 380 Вт. Один собственник. На первом этаже: в санузле кафель, раковина, ванная, гигиенический душ, инсталляция, подвесной унитаз, кафель по всему полу первого этажа, стены краска, лестница из лиственницы на металлокаркасе. Второй этаж стены краска, отопление радиаторы, пол ламинат, санузел в кафеле, душ, раковина, инсталляция с подвесным унитазом, встроенные шкафы икеа пакс в детских. Отапливаемый гараж на две машины со смотровой ямой и санузлом. Яма и погреб выложены кирпичом. Баня: кафель в мойке, тёплые полы, вагонка на стенах в комнате отдыха, есть зона кухни с раковиной и сливом. Дорога заасфальтирована.
Есть фото по каждому этапу строительства.
Один собственник, чистая продажа.
Все интересующие вопросы по телефону.
Также есть возможность купить дополнительные сотки земли у соседей за забором.