Если цена в объявлении изменится, мы сразу сообщим вам об этом на электронную почту.
Нажимая «Подписаться», вы соглашаетесь с правилами.
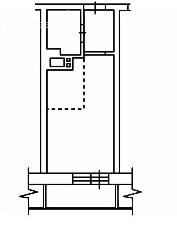
продам 1-к, Ударная, 25/13 850 000 ₽
3 мар
Дата публикации объявления
Обн. 16 апр
Дата обновления объявления
12
Количество просмотров (+ просмотры за сегодня)
Спецпредложение
Турбо x8
155 242 ₽/м²
Чистая продажа
Термин "Чистая продажа" означает, что в квартире никто не прописан или
есть куда выписаться и вывезти вещи. Это лучший вариант для покупателя.
Вероятность срыва сделки минимальна.
Застройщик - Группа компаний «Строй-Плюс». Проектная декларация опубликована на сайте застройщика
Арт - 27662 В продаже студия в кирпичном доме 2014 года постройки. Общая площадь 24,8 с учетом большой застекленной лоджии. Выполнен ремонт: с/у кафель, натяжные потолки по всему периметру квартиры с освещением, на полу качественный ламинат. Остается вся мебель и техника. Дом ухоженный , видеонаблюдение на каждом этаже , есть консьерж. Дом ухоженный. Отличное расположение - до метро Пл. К.Маркса 10 минут на автомобиле, любой вид транспорта - 15 мин до метро. Абсолютно все для жизни в шаговой доступности. На первом этаже дома есть продуктовый магазин.
Отличный вариант для проживания, также для сдачи в аренду - спрос будет всегда. Два взрослых собственника , без обременения , без использования материнского капитала, чистая продажа.
Арт - 27662 В продаже студия в кирпичном доме 2014 года постройки. Общая площадь 24,8 с учетом большой застекленной лоджии. Выполнен ремонт: с/у кафель, натяжные потолки по всему периметру квартиры с освещением, на полу качественный ламинат. Остается вся мебель и техника. Дом ухоженный , видеонаблюдение на каждом этаже , есть консьерж. Дом ухоженный. Отличное расположение - до метро Пл. К.Маркса 10 минут на автомобиле, любой вид транспорта - 15 мин до метро. Абсолютно все для жизни в шаговой доступности. На первом этаже дома есть продуктовый магазин.
Отличный вариант для проживания, также для сдачи в аренду - спрос будет всегда. Два взрослых собственника , без обременения , без использования материнского капитала, чистая продажа.
Приглашаем в любое удобное время на просмотр, КЛЮЧИ В АГЕНТСТВЕ! . Дополнительно оплачивается комиссия с покупателя