Если цена в объявлении изменится, мы сразу сообщим вам об этом на электронную почту.
Нажимая «Подписаться», вы соглашаетесь с правилами.
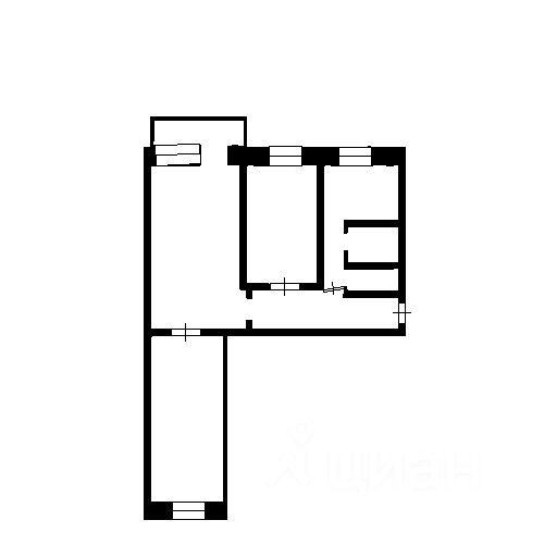
продам 3-к, Челюскинцев, 449 400 000 ₽
27 фев
Дата публикации объявления
Обн. 14 апр
Дата обновления объявления
77
Количество просмотров (+ просмотры за сегодня)
154 098 ₽/м²
Чистая продажа
Термин "Чистая продажа" означает, что в квартире никто не прописан или
есть куда выписаться и вывезти вещи. Это лучший вариант для покупателя.
Вероятность срыва сделки минимальна.
В продаже просторная трехкомнатная квартира в кирпичном доме - тепло и звукоизоляция гарантирована!
Kвартира после капитального ремонта!!! Заменены: электропроводка, радиатор отопления, сухая стяжка пола+ламинат 33 класс, канализационные трубы, разводка холодной и горячей воды, пятикамерные пластиковые окна с фурнитурой Rеhаu, балкон остеклённый пластиковыми окнами, внутри обшит вагонкой, отштукатурены и отшпаклеваны стены, флизелиновые обои, встроенная кухня с фартуком из керамогранита , в санузеле кафель современного образца, натяжные потолки. Новым владельцам квартиры в подарок: встроенная кухня , отличный угловой диван, двуспальная кровать, шкафы и другая мебель ! Заходи и живи! Квартира полностью готова к проживанию без дополнительных вложений.
В продаже просторная трехкомнатная квартира в кирпичном доме - тепло и звукоизоляция гарантирована!
Kвартира после капитального ремонта!!! Заменены: электропроводка, радиатор отопления, сухая стяжка пола+ламинат 33 класс, канализационные трубы, разводка холодной и горячей воды, пятикамерные пластиковые окна с фурнитурой Rеhаu, балкон остеклённый пластиковыми окнами, внутри обшит вагонкой, отштукатурены и отшпаклеваны стены, флизелиновые обои, встроенная кухня с фартуком из керамогранита , в санузеле кафель современного образца, натяжные потолки. Новым владельцам квартиры в подарок: встроенная кухня , отличный угловой диван, двуспальная кровать, шкафы и другая мебель ! Заходи и живи! Квартира полностью готова к проживанию без дополнительных вложений. Очень удобная планировка на две стороны - три изолированные комнаты, просторный балкон. Отдельного внимания заслуживает вместительная гардеробная отделена зеркальными купе-дверьми, все продумано до мелочей!
Отсечка на две квартиры - очень хорошие соседи! Подъезд чистый, новый лифт, парковка во дворе.
Дом находится в районе с развитой инфраструктурой, в шаговой доступности детские сады, школы, лицей, магазины, рынки, банки, Цирк, Нарымский сквер. До метро ''Красный проспект'' и ''Гарина-Михайловского'' пешком 5-7 минут. Рядом Ж/Д вокзал ''Новосибирск-Главный'', торговые центры, поликлиника. Удобная транспортная развязка, можно легко уехать в любую точку города. По документам нет никаких нюансов: 1 взрослый собственник, полная стоимость в договоре, без обременений, чистая продажа - переезд в другой город.
Квартира ждет своего покупателя ! Покажем в удобное время по договоренности!
Рядом с объектом находятся:
3 школы, 7 детских садов, 16 продуктовых магазинов, 4 спортивных учреждения, 1 гимназия, 2 лицея, 2 колледжа, 1 техникум, 1 образовательный центр.
Возможен обмен на вашу недвижимость. Возможна продажа в рассрочку.
Комплексная услуга для покупателя с полной финансовой ответственностью агентства При звонке, пожалуйста, сообщите номер варианта - JV003054143212
Дополнительно оплачивается комиссия с покупателя.
Пожалуйста, дождитесь ответа специалиста при звонке. Время дозвона до владельца объявления увеличено из-за использования подменных номеров на сайте Циан.