Если цена в объявлении изменится, мы сразу сообщим вам об этом на электронную почту.
Нажимая «Подписаться», вы соглашаетесь с правилами.
продам 3-к, Российская, 2118 700 000 ₽
10 фев
Дата публикации объявления
Обн. 15 апр
Дата обновления объявления
40
Количество просмотров (+ просмотры за сегодня)
184 436 ₽/м²
Чистая продажа
Термин "Чистая продажа" означает, что в квартире никто не прописан или
есть куда выписаться и вывезти вещи. Это лучший вариант для покупателя.
Вероятность срыва сделки минимальна.
Застройщик - Роснефтегазстрой-Академинвест, ООО. Проектная декларация опубликована на сайте застройщика
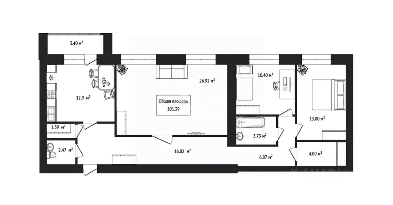
Код объекта: 1786271. Вашему вниманию предлагается просторная трёхкомнатная квартира в одном из самых живописных и экологически чистых районов Новосибирска — Академгородке. Расположенная на четвёртом этаже современного кирпично-монолитного дома, построенного в 2014 году, эта квартира станет идеальным выбором для семей, ценящих комфорт и безопасность.
Общая площадь квартиры составляет 101,39 кв. м, из которых 50,3 кв. м — жилая площадь. Три изолированные комнаты обеспечивают достаточное пространство для всех членов семьи.
Кухня площадью 12,9 кв. м идеально подходит для приготовления семейных ужинов, а наличие двух санузлов (раздельного и совмещённого) делает жизнь в этой квартире ещё более удобной.
Код объекта: 1786271. Вашему вниманию предлагается просторная трёхкомнатная квартира в одном из самых живописных и экологически чистых районов Новосибирска — Академгородке. Расположенная на четвёртом этаже современного кирпично-монолитного дома, построенного в 2014 году, эта квартира станет идеальным выбором для семей, ценящих комфорт и безопасность.
Общая площадь квартиры составляет 101,39 кв. м, из которых 50,3 кв. м — жилая площадь. Три изолированные комнаты обеспечивают достаточное пространство для всех членов семьи.
Кухня площадью 12,9 кв. м идеально подходит для приготовления семейных ужинов, а наличие двух санузлов (раздельного и совмещённого) делает жизнь в этой квартире ещё более удобной.
Квартира расположена в доме с подземной парковкой, что гарантирует безопасность вашего автомобиля.
Академгородок славится своей развитой инфраструктурой, которая включает в себя множество детских садов, школ, магазинов, спортивных комплексов и парков. Всё это находится в шаговой доступности от вашего будущего дома.
Не упустите возможность стать обладателем этой уютной квартиры! Звоните нам прямо сейчас, чтобы узнать больше и записаться на просмотр.
Мы гарантируем безопасную сделку и юридическую поддержку нашим клиентам. Поможем одобрить ипотеку с сниженной ставкой.