Если цена в объявлении изменится, мы сразу сообщим вам об этом на электронную почту.
Нажимая «Подписаться», вы соглашаетесь с правилами.
продам 2-к, Молодежи бульвар, 24 790 000 ₽
10 фев
Дата публикации объявления
Обн. 28 мая
Дата обновления объявления
66
Количество просмотров (+ просмотры за сегодня)
109 361 ₽/м²
Чистая продажа
Термин "Чистая продажа" означает, что в квартире никто не прописан или
есть куда выписаться и вывезти вещи. Это лучший вариант для покупателя.
Вероятность срыва сделки минимальна.
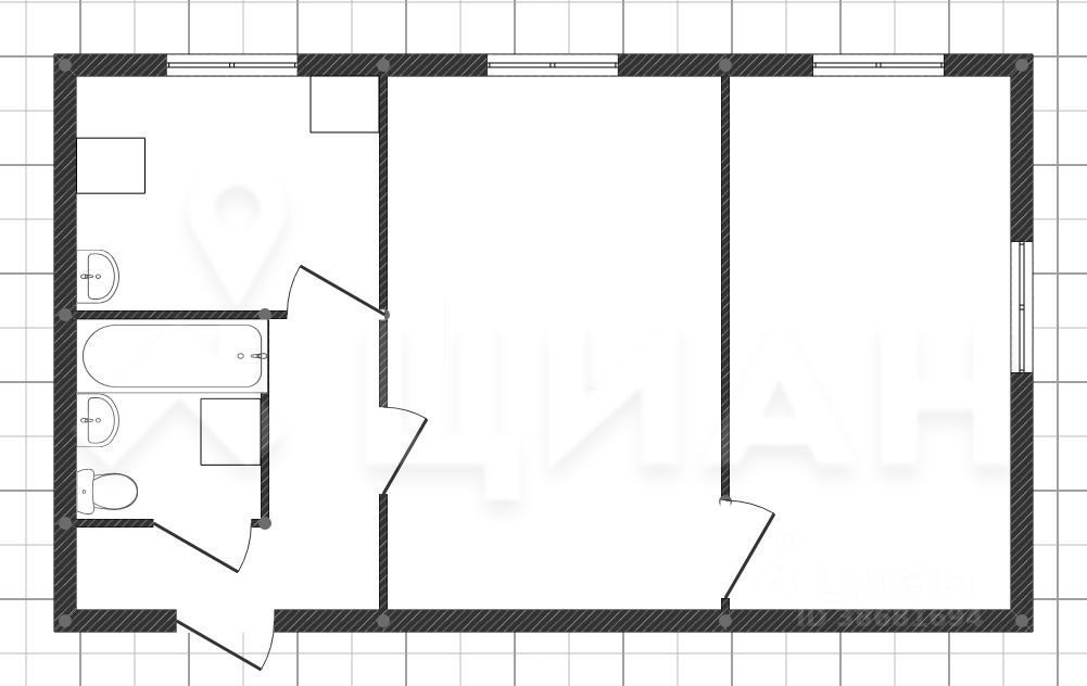
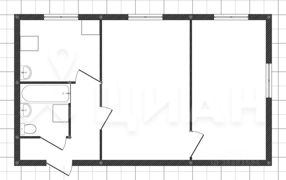
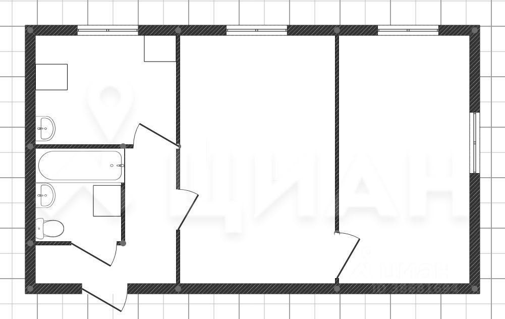
Квартира продается с мебелью и техникой. Уникальность планировки состоит в увеличенном жилом пространстве, засчет коридора ( который ранее вел в сторону кухни). А благодоря убранной стене между залом и кухней получилось место для обеденной зоны.
Квартира продается с мебелью и техникой. Уникальность планировки состоит в увеличенном жилом пространстве, засчет коридора ( который ранее вел в сторону кухни). А благодоря убранной стене между залом и кухней получилось место для обеденной зоны. сразу после покупки квартиры (в 2006 году) был сделан капитальный ремонт 1) поменяна вся проводка 2) снесены и заново построены все внутренние стены (они были деревянными с большим количеством штукатурки) 3) демонтирован деревянный пол и сделана бетонная стяжка 4) вся сантехническая разводка по квартире заменена 5) стояки отопления поменяны и замурованы в стену 6) все радиаторы отопления поменяны на итальянские с возможностью регулирования (квартира жаркая) 7) пластиковые окна в 2016 был проведен косметический ремонт кв-ры, поэтому Вам не придется вкладывать огромные деньги, что бы сделать косметический ремонт под себя! Ключи у агента недвижимости, поэтому есть возможность показать квартиру в удобное для Вас время. Дополнительно оплачивается комиссия с покупателя. Но самое важное, что реальному покупателю предоставится хороший торг !!!