Если цена в объявлении изменится, мы сразу сообщим вам об этом на электронную почту.
Нажимая «Подписаться», вы соглашаетесь с правилами.
продам 3-к, Дзержинского проспект, 36 350 000 ₽
3 фев
Дата публикации объявления
Обн. вчера
Дата обновления объявления
64
Количество просмотров (+ просмотры за сегодня)
96 651 ₽/м²
Чистая продажа
Термин "Чистая продажа" означает, что в квартире никто не прописан или
есть куда выписаться и вывезти вещи. Это лучший вариант для покупателя.
Вероятность срыва сделки минимальна.
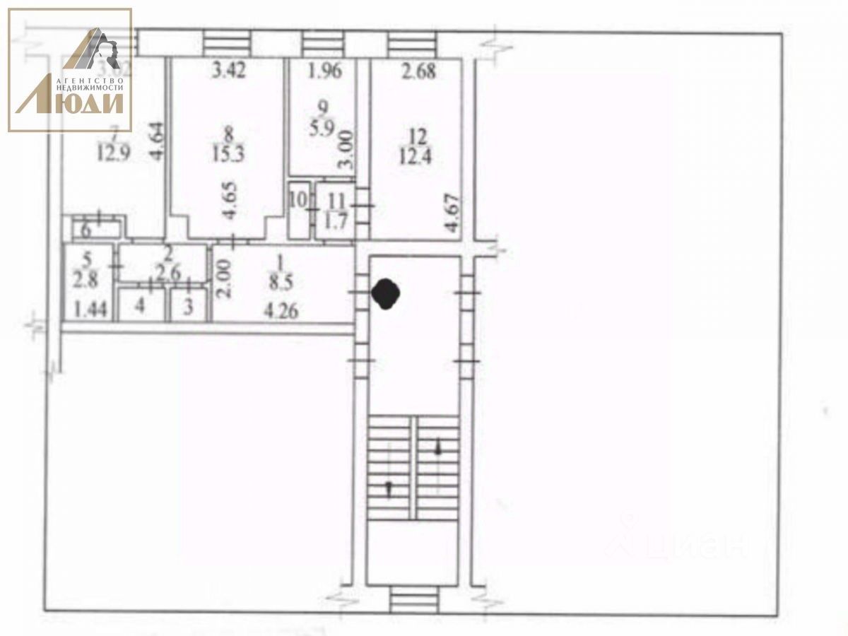
Продаётся 3-комнатная квартира-холст в Сталине. Лучшее расположение района + ваши дизайнерские идеи.
Золотая инвестиция или основа для дома вашей мечты! Квартира продаётся без ремонта — это уникальная возможность:
Для инвестора: Вы получаете лот в самом востребованном районе по отличной цене. После современного ремонта квартира принесет максимальную доходность как при продаже, так и при сдаче в аренду. Для новой семьи: Создайте интерьер с нуля, который будет идеально отвечать вашим вкусам и потребностям. Ничего не нужно ломать или переделывать — только творить.
Фундамент успеха — безупречная локация:
Всего 1 остановка или 5 минут пешком до метро ''Берёзовая роща''.
Продаётся 3-комнатная квартира-холст в Сталине. Лучшее расположение района + ваши дизайнерские идеи.
Золотая инвестиция или основа для дома вашей мечты! Квартира продаётся без ремонта — это уникальная возможность:
Для инвестора: Вы получаете лот в самом востребованном районе по отличной цене. После современного ремонта квартира принесет максимальную доходность как при продаже, так и при сдаче в аренду. Для новой семьи: Создайте интерьер с нуля, который будет идеально отвечать вашим вкусам и потребностям. Ничего не нужно ломать или переделывать — только творить.
Фундамент успеха — безупречная локация:
Всего 1 остановка или 5 минут пешком до метро ''Берёзовая роща''. Вся развитая инфраструктура района под рукой: магазины, аптеки, кафе.
Элитный образовательный округ — главный козырь для аренды и жизни:
Школа 111, Новосибирский еврейский лицей и Авиастроительный лицей — всё в шаговой доступности. Детский сад 381 в двух филиалах рядом. Район 1 для семей с детьми.
Почему это выгодно?
Район с максимальным спросом на аренду и покупку благодаря метро и школам. Чистовая отделка ''с нуля'' зачастую дешевле и проще, чем переделка старого ремонта. Свобода выбора: Вы сами определяете бюджет и стиль будущего ремонта.
Идеальная база для реализации любого проекта: будь то доходная аренда, выгодная перепродажа или семейное гнездо, обустроенное по вашему вкусу.
Не упустите шанс войти в самый перспективный район на самых выгодных условиях! Квартира ждёт нового хозяина с видением.
Звоните, чтобы оценить потенциал этого пространства!